Maison neuve, 109 m² - Pigny (18110)
224 000 €
Pigny (18110)
Proposée par MAISONS BRUNO PETIT MJB – 6 pièces - 4 chambres - terrain 811 m²
|
|
| MAISONS BRUNO PETIT MJB |
| (103 avis) |
- Demande d'information
- Prendre rendez-vous
MAISON À CONSTRUIRE : ceci est une annonce d'une maison neuve à construire.
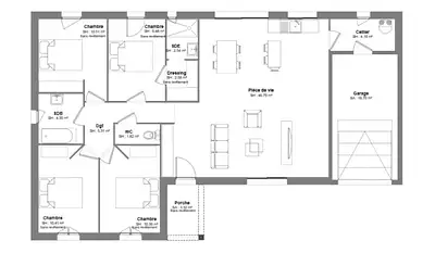
VENTE d'une maison de 6 pièces (109 m²) à Pigny
Proche de Bourges - À découvrir à Pigny (18110) : maison neuve 6 pièces en vente, 109 m² sur 811 m² de terrain. Son intérieur dispose de quatre chambres, d'une cuisine et de deux salles de bains.
À proximité : gares (Saint-Germain-du-Puy et Bourges), écoles. Autoroute A71 et nationales N142 et N151 à 16 km.
Le prix de vente de cette maison de 6 pièces est de 224 000 €.
. Maisons Bruno Petit MJB Bourges est là pour vous accompagner dans tous vos projets immobiliers.
Référence : DP2262380_8
Terrain proposé par un partenaire foncier selon disponibilités et autorisation de publicité au prix de 46 000 €. Hors droit d'enregistrement et frais de notaire. Maison proposée, avec un contrat de construction de maison individuelle, dans le cadre de la loi du 19/12/1990, au prix de 178 000 € (Hors branchements et raccordements, papiers peints, peintures, revêtement de sol dans les chambres, qui sont chiffrés dans les travaux qui restent à charge du client. Tarif modifiable sans préavis). Étiquette énergie : A. Différents modèles disponibles pour ce terrain. Assurances et garanties du constructeur comprises (RC professionnelle, décennale, dommage ouvrage).
Les informations sur les risques auxquels ce bien est exposé sont disponibles sur le site Géorisques : www.georisques.gouv.fr
Proche de Bourges - À découvrir à Pigny (18110) : maison neuve 6 pièces en vente, 109 m² sur 811 m² de terrain. Son intérieur dispose de quatre chambres, d'une cuisine et de deux salles de bains.
À proximité : gares (Saint-Germain-du-Puy et Bourges), écoles. Autoroute A71 et nationales N142 et N151 à 16 km.
Le prix de vente de cette maison de 6 pièces est de 224 000 €.
. Maisons Bruno Petit MJB Bourges est là pour vous accompagner dans tous vos projets immobiliers.
Référence : DP2262380_8
Terrain proposé par un partenaire foncier selon disponibilités et autorisation de publicité au prix de 46 000 €. Hors droit d'enregistrement et frais de notaire. Maison proposée, avec un contrat de construction de maison individuelle, dans le cadre de la loi du 19/12/1990, au prix de 178 000 € (Hors branchements et raccordements, papiers peints, peintures, revêtement de sol dans les chambres, qui sont chiffrés dans les travaux qui restent à charge du client. Tarif modifiable sans préavis). Étiquette énergie : A. Différents modèles disponibles pour ce terrain. Assurances et garanties du constructeur comprises (RC professionnelle, décennale, dommage ouvrage).
Les informations sur les risques auxquels ce bien est exposé sont disponibles sur le site Géorisques : www.georisques.gouv.fr
- Prix
-
- Prix total : 224 000 €
- Prix du modèle de maison : 178 000 €
- Prix du terrain : 46 000 €
- Terrain
-
- Surface : 811 m²
- Maison
-
- Surface : 109 m²
- Pièces : 6
- Chambres : 4
- Garage : 1
- Être rappelé par un conseiller
- Demander plus d’infos
- Demande d'information
Pigny (18110)
Maisons à proximité
Maison neuve, 115 m²
Pigny (18110)
Pigny (18110)
Maison de 6 pièces
Maison neuve, 71 m²
Pigny (18110)
Pigny (18110)
Maison de 4 pièces
Maison neuve, 83 m²
Pigny (18110)
Pigny (18110)
Maison de 5 pièces
Maison neuve, 85 m²
Pigny (18110)
Pigny (18110)
Maison de 4 pièces
Maison neuve, 82 m²
Pigny (18110)
Pigny (18110)
Maison de 5 pièces
Maison neuve, 98 m²
Pigny (18110)
Pigny (18110)
Maison de 5 pièces
Programmes à proximité
Le Clos d'Auron
Bourges (18000)
Bourges (18000)
Appartements de 2 à 3 pièces
Livraison 1er trimestre 2028
Dans un écrin historique à 8 min* du centre
Bourges (18000)
Bourges (18000)
Appartement de 2 pièces
Livraison 3ème trimestre 2026
Carré Voltaire
Bourges (18000)
Bourges (18000)
Appartements de 1 à 4 pièces
Livraison 1er trimestre 2028
Contacter MAISONS BRUNO PETIT MJB pour recevoir plus d'informations
Remplissez le formulaire ci-dessous, vos informations sont transmises directement au constructeur qui vous contactera par email ou par téléphone afin de traiter votre demande. En savoir plus.