Maison neuve, 84 m² - Pignans (83790)

290 000 €
Pignans (83790)

Proposée par MAISONS FRANCE CONFORT – 3 pièces - 3 chambres - terrain 900 m²

MAISONS FRANCE CONFORT
MAISONS FRANCE CONFORT
(191 avis)
  • Demande d'information
MAISON À CONSTRUIRE : ceci est une annonce d'une maison neuve à construire.
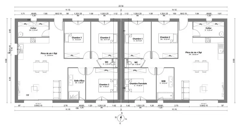
MAISONS FRANCE CONFORT La Farlède vous propose de réaliser pour vous cette maison de 84 m² de plain-pied.
Cette maison traditionnelle avec un toit trois pans répond aux dernières normes environnementales (RE2020).
L'intérieur se compose d'un bel espace de vie, de 3 chambres, d'une salle d'eau, d'un WC séparé et d'un cellier. Le système de chauffage se fait par PAC AIR/AIR Monosplit.
Contactez dès maintenant, Mikael PAILHES de l'agence Maisons France Confort La Farlède qui se fera un plaisir d'échanger sur votre projet de construction.
ESTIMATION PRIX MAISON HORS GARAGE, ADAPTATION AU SOL, VIABILITES, TAXES ET EVENTUELS AMENAGEMENTS SUPPLEMENTAIRES
Référence : MP2345301_2
Terrain proposé par un partenaire foncier selon disponibilités et autorisation de publicité au prix de 135 000 €. Hors droit d'enregistrement et frais de notaire. Maison proposée, avec un contrat de construction de maison individuelle, dans le cadre de la loi du 19/12/1990, au prix de 155 000 € (Hors branchements et raccordements, papiers peints, peintures, revêtement de sol dans les chambres, qui sont chiffrés dans les travaux qui restent à charge du client. Tarif modifiable sans préavis). Étiquette énergie : A. Différents modèles disponibles pour ce terrain. Assurances et garanties du constructeur comprises (RC professionnelle, décennale, dommage ouvrage).

Les informations sur les risques auxquels ce bien est exposé sont disponibles sur le site Géorisques : www.georisques.gouv.fr


Prix
  • Prix total : 290 000 €
  • Prix du modèle de maison : 155 000 €
  • Prix du terrain : 135 000 €

Terrain
  • Surface : 900 m²

Maison
  • Surface : 84 m²
  • Pièces : 3
  • Chambres : 3

  • Être rappelé par un conseiller
  • Demander plus d’infos
  • Demande d'information
Pignans (83790)

Programmes à proximité

Les Berges de Signon
Les Berges de Signon
Brignoles (83170)

Appartements de 2 à 4 pièces
Livraison 3ème trimestre 2027

VILLA FLORINE
VILLA FLORINE
La Londe-les-Maures (83250)

Appartements de 1 à 5 pièces
Livraison 4ème trimestre 2027

Azur Lodges
Azur Lodges
La Londe-les-Maures (83250)

Appartements de 4 pièces
Livraison 1er trimestre 2026

Valcélia
Valcélia
La Celle (83170)

Appartements de 2 à 4 pièces et maisons de 3 à 5 pièces
Livraison 2ème trimestre 2028

Castanea
Castanea
La Garde-Freinet (83680)

Appartements de 2 à 4 pièces
Livraison 1er trimestre 2028

LES PINS PARASOLS
LES PINS PARASOLS
Bormes-les-Mimosas (83230)

Appartement de 2 pièces
Livraison 2ème trimestre 2025

Contacter MAISONS FRANCE CONFORT pour recevoir plus d'informations

Remplissez le formulaire ci-dessous, vos informations sont transmises directement au constructeur qui vous contactera par email ou par téléphone afin de traiter votre demande. En savoir plus.

Voir tous nos programmes immobiliers neufs à Pignans