Maison neuve, 71 m² - Parthenay (79200)
171 496 €
Parthenay (79200)
Proposée par BABEAU SEGUIN AGENCE DE CHÂTELLERAULT (86100) – VI – 3 pièces - 2 chambres - terrain 485 m²
|
|
| Babeau Seguin Agence de Châtellerault (86100) – Vi |
- Demande d'information
- Prendre rendez-vous
MAISON À CONSTRUIRE : ceci est une annonce d'une maison neuve à construire.
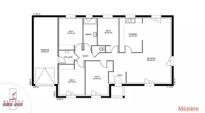
Sur ce terrain, nous vous proposons cette maison neuve, la Mézière Sud, conçue par Babeau-Seguin, constructeur offrant le meilleur rapport qualité/prix du marché. Superbe maison typique du sud, inspirée du modèle à succès Mézière de chez Maisons Babeau-Seguin, cette demeure de 71 m² présente un plan en L, avec un choix entre un toit à 2 pans ou 4 pans.
La Mézière Sud dispose de 2 chambres et de 3 pièces, offrant un espace de vie confortable et fonctionnel. Vous pourrez personnaliser votre maison selon vos envies, avec des options telles qu'un garage accolé, un sous-sol ou un porche.
Les caractéristiques principales de cette maison incluent des menuiseries en aluminium et la possibilité d'ajouter une piscine, des options très demandées par nos clients. De plus, cette maison neuve est basse consommation et conforme à la réglementation environnementale RE2020, garantissant une habitation éco-responsable et économique en énergie.
Véritable coup de cœur pour de nombreux clients Babeau-Seguin, la Mézière Sud répond aux besoins de nombreuses familles nous ayant fait confiance. Cette maison est facilement modifiable, ce qui justifie pleinement son succès.
N'attendez plus pour découvrir cette maison exceptionnelle et personnalisez-la selon vos envies pour en faire votre foyer idéal. Contactez-nous dès maintenant pour plus d'informations et pour planifier une visite.
Référence : 90256
Les informations sur les risques auxquels ce bien est exposé sont disponibles sur le site Géorisques : www.georisques.gouv.fr
La Mézière Sud dispose de 2 chambres et de 3 pièces, offrant un espace de vie confortable et fonctionnel. Vous pourrez personnaliser votre maison selon vos envies, avec des options telles qu'un garage accolé, un sous-sol ou un porche.
Les caractéristiques principales de cette maison incluent des menuiseries en aluminium et la possibilité d'ajouter une piscine, des options très demandées par nos clients. De plus, cette maison neuve est basse consommation et conforme à la réglementation environnementale RE2020, garantissant une habitation éco-responsable et économique en énergie.
Véritable coup de cœur pour de nombreux clients Babeau-Seguin, la Mézière Sud répond aux besoins de nombreuses familles nous ayant fait confiance. Cette maison est facilement modifiable, ce qui justifie pleinement son succès.
N'attendez plus pour découvrir cette maison exceptionnelle et personnalisez-la selon vos envies pour en faire votre foyer idéal. Contactez-nous dès maintenant pour plus d'informations et pour planifier une visite.
Référence : 90256
Les informations sur les risques auxquels ce bien est exposé sont disponibles sur le site Géorisques : www.georisques.gouv.fr
- Prix
-
- Prix total : 171 496 €
- Prix du modèle de maison : 134 496 €
- Prix du terrain : 37 000 €
- Terrain
-
- Surface : 485 m²
- Maison
-
- Surface : 71 m²
- Pièces : 3
- Chambres : 2
- Être rappelé par un conseiller
- Demander plus d’infos
- Demande d'information
Parthenay (79200)
Maisons à proximité
Maison neuve, 89 m²
Châtillon-sur-Thouet (79200)
Châtillon-sur-Thouet (79200)
Maison de 5 pièces
Maison neuve, 89 m²
Châtillon-sur-Thouet (79200)
Châtillon-sur-Thouet (79200)
Maison de 4 pièces
Maison neuve, 134 m²
Châtillon-sur-Thouet (79200)
Châtillon-sur-Thouet (79200)
Maison de 5 pièces
Maison neuve, 73 m²
Pompaire (79200)
Pompaire (79200)
Maison de 4 pièces
Maison neuve, 79 m²
Beaulieu-sous-Parthenay (79420)
Beaulieu-sous-Parthenay (79420)
Maison de 4 pièces
Maison neuve, 79 m²
Beaulieu-sous-Parthenay (79420)
Beaulieu-sous-Parthenay (79420)
Maison de 4 pièces
Programmes à proximité
Contacter BABEAU SEGUIN AGENCE DE CHÂTELLERAULT (86100) – VI pour recevoir plus d'informations
Remplissez le formulaire ci-dessous, vos informations sont transmises directement au constructeur qui vous contactera par email ou par téléphone afin de traiter votre demande. En savoir plus.