Maison neuve, 94 m² - Oraison (04700)
325 000 €
Oraison (04700)
Proposée par MAISONS FRANCE CONFORT – 4 pièces - 3 chambres - terrain 501 m²
|
|
| MAISONS FRANCE CONFORT |
- Demande d'information
- Prendre rendez-vous
MAISON À CONSTRUIRE : ceci est une annonce d'une maison neuve à construire.
Les Maisons France Confort construisent pour vous :
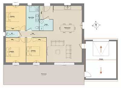
Villa plain pied de 94m², avec trois chambres et une belle pièce à vivre.
Projet accompagné d'un garage et d'une terrasse.
Emplacement de qualité dans un petit lotissement.
Terrain plat et viabilisé, belle exposition possible et proche de toutes les commodités.
Grâce à sa belle exposition et répondant à la Règlementation Environnementale 2020, profitez d'une résidence neuve, tout confort, réduisant votre consommation d'énergie.
Pour plus de renseignements, contactez votre conseiller Nicolas Van Brussel,
.
Annonce proposée par un Agent Commercial Partenaire.
Référence : JMD2292097_2
Terrain proposé par un partenaire foncier selon disponibilités et autorisation de publicité au prix de 110 000 €. Hors droit d'enregistrement et frais de notaire. Maison proposée, avec un contrat de construction de maison individuelle, dans le cadre de la loi du 19/12/1990, au prix de 215 000 € (Hors branchements et raccordements, papiers peints, peintures, revêtement de sol dans les chambres, qui sont chiffrés dans les travaux qui restent à charge du client. Tarif modifiable sans préavis). Étiquette énergie : A. Différents modèles disponibles pour ce terrain. Assurances et garanties du constructeur comprises (RC professionnelle, décennale, dommage ouvrage).
Les informations sur les risques auxquels ce bien est exposé sont disponibles sur le site Géorisques : www.georisques.gouv.fr
Villa plain pied de 94m², avec trois chambres et une belle pièce à vivre.
Projet accompagné d'un garage et d'une terrasse.
Emplacement de qualité dans un petit lotissement.
Terrain plat et viabilisé, belle exposition possible et proche de toutes les commodités.
Grâce à sa belle exposition et répondant à la Règlementation Environnementale 2020, profitez d'une résidence neuve, tout confort, réduisant votre consommation d'énergie.
Pour plus de renseignements, contactez votre conseiller Nicolas Van Brussel,
.
Annonce proposée par un Agent Commercial Partenaire.
Référence : JMD2292097_2
Terrain proposé par un partenaire foncier selon disponibilités et autorisation de publicité au prix de 110 000 €. Hors droit d'enregistrement et frais de notaire. Maison proposée, avec un contrat de construction de maison individuelle, dans le cadre de la loi du 19/12/1990, au prix de 215 000 € (Hors branchements et raccordements, papiers peints, peintures, revêtement de sol dans les chambres, qui sont chiffrés dans les travaux qui restent à charge du client. Tarif modifiable sans préavis). Étiquette énergie : A. Différents modèles disponibles pour ce terrain. Assurances et garanties du constructeur comprises (RC professionnelle, décennale, dommage ouvrage).
Les informations sur les risques auxquels ce bien est exposé sont disponibles sur le site Géorisques : www.georisques.gouv.fr
- Prix
-
- Prix total : 325 000 €
- Prix du modèle de maison : 215 000 €
- Prix du terrain : 110 000 €
- Terrain
-
- Surface : 501 m²
- Maison
-
- Surface : 94 m²
- Pièces : 4
- Chambres : 3
- Garage : 1
- Être rappelé par un conseiller
- Demander plus d’infos
- Demande d'information
Oraison (04700)
Maisons à proximité
Maison neuve, 85 m²
Oraison (04700)
Oraison (04700)
Maison de 4 pièces
Maison neuve, 73 m²
Oraison (04700)
Oraison (04700)
Maison de 3 pièces
Maison neuve, 83 m²
Oraison (04700)
Oraison (04700)
Maison de 4 pièces
Maison neuve, 78 m²
La Brillanne (04700)
La Brillanne (04700)
Maison de 4 pièces
Maison neuve, 83 m²
La Brillanne (04700)
La Brillanne (04700)
Maison de 4 pièces
Maison neuve, 81 m²
La Brillanne (04700)
La Brillanne (04700)
Maison de 4 pièces
Programmes à proximité
LUBERIA
Manosque (04100)
Manosque (04100)
Appartements de 2 à 3 pièces
Livraison 4ème trimestre 2027
DOMAINE DES AURES
Manosque (04100)
Manosque (04100)
Appartements de 2 à 4 pièces
Livraison 1er trimestre 2026
Contacter MAISONS FRANCE CONFORT pour recevoir plus d'informations
Remplissez le formulaire ci-dessous, vos informations sont transmises directement au constructeur qui vous contactera par email ou par téléphone afin de traiter votre demande. En savoir plus.