Maison neuve, 120 m² - Ollainville (91340)

375 000 €
Ollainville (91340)

Proposée par MAISONS BALENCY – 6 pièces - 4 chambres - terrain 386 m²

MAISONS BALENCY
MAISONS BALENCY
  • Demande d'information
MAISON À CONSTRUIRE : ceci est une annonce d'une maison neuve à construire.
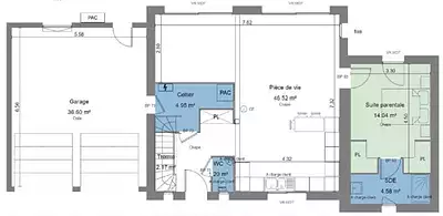
Ollainville (91340) : Charmante Maison RE2020 de 120 m² sur un terrain de 386 m² dès 375 000 €.
Faites confiance aux Maisons Balency d'Ormoy pour vous réaliser une demeure répartie en trois volumes et offrant une belle organisation de l'espace, lumineuse et adaptée à divers profils. Le design contemporain se marie à la qualité énergétique RE2020 (confort d'été, isolation renforcée, performance thermique) pour un habitat durable.
Située à proximité de toutes les commodités : une boulangerie-pâtisserie et une épicerie locale à moins de 5 minutes à pied, un hypermarché à Égly à environ 10 minutes en voiture, des écoles maternelle et élémentaire dans le quartier « Les Belles Vues » à Arpajon-Ollainville accessibles en moins de 8 minutes en voiture, ainsi qu'un parc aménagé dans ce même quartier pour les loisirs et les promenades.
Côté transports, la gare d'Égly (ligne C du RER) est à environ 14-15 minutes à pied, offrant un accès direct à Paris en environ 48 minutes. Plusieurs lignes de bus desservent Ollainville : DM20 et DM26, pour les trajets vers Égly, Arpajon ou La Norville, facilitant les déplacements quotidiens.
Si vous cherchez un cadre de vie paisible sans renoncer au confort et à la praticité, cette offre est faite pour vous.
Maisons BALENCY - Agence d'Ormoy
23 chemin de Tournenfils, 91540 ORMOY
09 67 70 15 81
Annonce proposée par un Agent Commercial Partenaire.
Référence : PM2273537_3
Terrain proposé par un partenaire foncier selon disponibilités et autorisation de publicité au prix de 140 000 €. Hors droit d'enregistrement et frais de notaire. Maison proposée, avec un contrat de construction de maison individuelle, dans le cadre de la loi du 19/12/1990, au prix de 235 000 € (Hors branchements et raccordements, papiers peints, peintures, revêtement de sol dans les chambres, qui sont chiffrés dans les travaux qui restent à charge du client. Tarif modifiable sans préavis). Étiquette énergie : A. Différents modèles disponibles pour ce terrain. Assurances et garanties du constructeur comprises (RC professionnelle, décennale, dommage ouvrage).

Les informations sur les risques auxquels ce bien est exposé sont disponibles sur le site Géorisques : www.georisques.gouv.fr


Prix
  • Prix total : 375 000 €
  • Prix du modèle de maison : 235 000 €
  • Prix du terrain : 140 000 €

Terrain
  • Surface : 386 m²

Maison
  • Surface : 120 m²
  • Pièces : 6
  • Chambres : 4
  • Garage : 1

  • Être rappelé par un conseiller
  • Demander plus d’infos
  • Demande d'information
Ollainville (91340)

Programmes à proximité

Essentiel
Essentiel
Arpajon (91290)

Appartements de 2 à 4 pièces

TOPAZE
TOPAZE
Arpajon (91290)

Appartements de 3 à 4 pièces et maisons de 4 pièces
Livraison 1er trimestre 2025

BIOSPHERE
BIOSPHERE
Arpajon (91290)

Appartements de 2 à 3 pièces
Livraison 1er trimestre 2027

LE PETIT BOIS
LE PETIT BOIS
La Norville (91290)

Appartements de 1 à 3 pièces et maisons de 4 à 5 pièces
Livraison 4ème trimestre 2026

Résidence de l'Orée
Résidence de l'Orée
Linas (91310)

Appartements de 1 à 3 pièces
Livraison 4ème trimestre 2026

Closerie Coeur Village
Closerie Coeur Village
Montlhéry (91310)

Appartements de 2 à 3 pièces
Livraison 3ème trimestre 2026

Contacter MAISONS BALENCY pour recevoir plus d'informations

Remplissez le formulaire ci-dessous, vos informations sont transmises directement au constructeur qui vous contactera par email ou par téléphone afin de traiter votre demande. En savoir plus.

Voir tous nos programmes immobiliers neufs à Ollainville