Maison neuve, 120 m² - Niherne (36250)
287 095 €
Niherne (36250)
Proposée par MAISONS BRUNO PETIT MJB – 6 pièces - 4 chambres - terrain 655 m²
|
|
| MAISONS BRUNO PETIT MJB |
| (160 avis) |
- Demande d'information
- Prendre rendez-vous
MAISON À CONSTRUIRE : ceci est une annonce d'une maison neuve à construire.
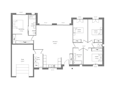
VENTE d'une maison de 6 pièces (120 m²) à Niherne
Emplacement privilégié - À découvrir à Niherne (36250) : maison neuve 6 pièces à vendre, 120 m² sur 655 m² de terrain. Elle comporte quatre chambres, une cuisine et deux salles de bains.
À proximité : École Primaire Geneviève Panis, bassin de natation, tennis, boulangerie et épicerie. Autoroute A20 accessible à 6 km. Châteauroux à 10 km.
Le prix de vente de cette maison de 6 pièces est de 287 095 €.
Prenez contact avec notre agence (RUBIO Franck : °6-30-49-64-43) pour obtenir de plus amples informations sur la maison.
Référence : FR2336224_6
Terrain proposé par un partenaire foncier selon disponibilités et autorisation de publicité au prix de 32 095 €. Hors droit d'enregistrement et frais de notaire. Maison proposée, avec un contrat de construction de maison individuelle, dans le cadre de la loi du 19/12/1990, au prix de 255 000 € (Hors branchements et raccordements, papiers peints, peintures, revêtement de sol dans les chambres, qui sont chiffrés dans les travaux qui restent à charge du client. Tarif modifiable sans préavis). Étiquette énergie : A. Différents modèles disponibles pour ce terrain. Assurances et garanties du constructeur comprises (RC professionnelle, décennale, dommage ouvrage).
Les informations sur les risques auxquels ce bien est exposé sont disponibles sur le site Géorisques : www.georisques.gouv.fr
Emplacement privilégié - À découvrir à Niherne (36250) : maison neuve 6 pièces à vendre, 120 m² sur 655 m² de terrain. Elle comporte quatre chambres, une cuisine et deux salles de bains.
À proximité : École Primaire Geneviève Panis, bassin de natation, tennis, boulangerie et épicerie. Autoroute A20 accessible à 6 km. Châteauroux à 10 km.
Le prix de vente de cette maison de 6 pièces est de 287 095 €.
Prenez contact avec notre agence (RUBIO Franck : °6-30-49-64-43) pour obtenir de plus amples informations sur la maison.
Référence : FR2336224_6
Terrain proposé par un partenaire foncier selon disponibilités et autorisation de publicité au prix de 32 095 €. Hors droit d'enregistrement et frais de notaire. Maison proposée, avec un contrat de construction de maison individuelle, dans le cadre de la loi du 19/12/1990, au prix de 255 000 € (Hors branchements et raccordements, papiers peints, peintures, revêtement de sol dans les chambres, qui sont chiffrés dans les travaux qui restent à charge du client. Tarif modifiable sans préavis). Étiquette énergie : A. Différents modèles disponibles pour ce terrain. Assurances et garanties du constructeur comprises (RC professionnelle, décennale, dommage ouvrage).
Les informations sur les risques auxquels ce bien est exposé sont disponibles sur le site Géorisques : www.georisques.gouv.fr
- Prix
-
- Prix total : 287 095 €
- Prix du modèle de maison : 255 000 €
- Prix du terrain : 32 095 €
- Terrain
-
- Surface : 655 m²
- Maison
-
- Surface : 120 m²
- Pièces : 6
- Chambres : 4
- Garage : 1
- Être rappelé par un conseiller
- Demander plus d’infos
- Demande d'information
Niherne (36250)
Maisons à proximité
Maison neuve, 120 m²
Niherne (36250)
Niherne (36250)
Maison de 5 pièces
Maison neuve, 140 m²
Niherne (36250)
Niherne (36250)
Maison de 4 pièces
Maison neuve, 105 m²
Niherne (36250)
Niherne (36250)
Maison de 4 pièces
Maison neuve, 90 m²
Niherne (36250)
Niherne (36250)
Maison de 4 pièces
Maison neuve, 110 m²
Niherne (36250)
Niherne (36250)
Maison de 4 pièces
Maison neuve, 85 m²
Niherne (36250)
Niherne (36250)
Maison de 4 pièces
Programmes à proximité
Contacter MAISONS BRUNO PETIT MJB pour recevoir plus d'informations
Remplissez le formulaire ci-dessous, vos informations sont transmises directement au constructeur qui vous contactera par email ou par téléphone afin de traiter votre demande. En savoir plus.