Maison neuve, 85 m² - Neuville-sur-Sarthe (72190)
215 967 €
Neuville-sur-Sarthe (72190)
Proposée par MAISONS CONCEPT AGENCE DU MANS – 4 pièces - 3 chambres - terrain 420 m²
|
|
| Maisons Concept AGENCE DU MANS |
- Demande d'information
- Prendre rendez-vous
MAISON À CONSTRUIRE : ceci est une annonce d'une maison neuve à construire.
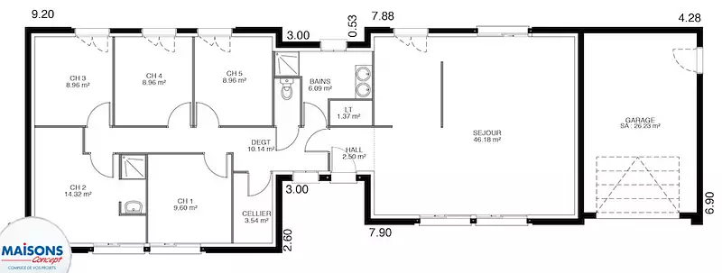
Nous vous proposons cette maison neuve, baptisée ""Hilya"", un modèle d'exception qui allie avec brio charme et modernité. Conçue par un architecte de renom, cette maison en L se distingue par son esthétique contemporaine, ses lignes épurées et son toit plat, offrant un design unique et une intégration harmonieuse dans son environnement.
D'une surface de 85 m², Hilya est judicieusement agencée pour maximiser l'espace et le confort. Elle comprend 4 pièces lumineuses, dont 3 chambres accueillantes, promettant un cadre de vie idéal pour une famille. Le garage accolé, pratique et esthétique, s'intègre parfaitement à l'ensemble, renforçant le caractère fonctionnel de cette demeure.
Les options les plus plébiscitées par nos clients, telles que les menuiseries en aluminium, offrant durabilité et esthétique, la toiture quatre pans, alternative élégante au toit plat, et la domotique, pour une maison connectée et intelligente, sont disponibles pour personnaliser votre Hilya selon vos désirs et besoins.
Cette maison neuve est également un modèle de performance énergétique, basse consommation et conforme à la norme RE2020. Elle est conçue pour réduire significativement votre empreinte carbone tout en assurant un confort optimal en toutes saisons, grâce à une isolation de pointe et à des équipements énergétiques de dernière génération.
Choisir Hilya, c'est opter pour une maison qui respecte à la fois l'environnement et vos exigences de confort et de modernité. Laissez-vous séduire par ce modèle qui marie esthétique contemporaine et fonctionnalité, pour faire de votre rêve de maison idéale une réalité.
Référence : 53512
Les informations sur les risques auxquels ce bien est exposé sont disponibles sur le site Géorisques : www.georisques.gouv.fr
D'une surface de 85 m², Hilya est judicieusement agencée pour maximiser l'espace et le confort. Elle comprend 4 pièces lumineuses, dont 3 chambres accueillantes, promettant un cadre de vie idéal pour une famille. Le garage accolé, pratique et esthétique, s'intègre parfaitement à l'ensemble, renforçant le caractère fonctionnel de cette demeure.
Les options les plus plébiscitées par nos clients, telles que les menuiseries en aluminium, offrant durabilité et esthétique, la toiture quatre pans, alternative élégante au toit plat, et la domotique, pour une maison connectée et intelligente, sont disponibles pour personnaliser votre Hilya selon vos désirs et besoins.
Cette maison neuve est également un modèle de performance énergétique, basse consommation et conforme à la norme RE2020. Elle est conçue pour réduire significativement votre empreinte carbone tout en assurant un confort optimal en toutes saisons, grâce à une isolation de pointe et à des équipements énergétiques de dernière génération.
Choisir Hilya, c'est opter pour une maison qui respecte à la fois l'environnement et vos exigences de confort et de modernité. Laissez-vous séduire par ce modèle qui marie esthétique contemporaine et fonctionnalité, pour faire de votre rêve de maison idéale une réalité.
Référence : 53512
Les informations sur les risques auxquels ce bien est exposé sont disponibles sur le site Géorisques : www.georisques.gouv.fr
- Prix
-
- Prix total : 215 967 €
- Prix du modèle de maison : 160 967 €
- Prix du terrain : 55 000 €
- Terrain
-
- Surface : 420 m²
- Maison
-
- Surface : 85 m²
- Pièces : 4
- Chambres : 3
- Être rappelé par un conseiller
- Demander plus d’infos
- Demande d'information
Neuville-sur-Sarthe (72190)
Maisons à proximité
Maison neuve, 105 m²
Neuville-sur-Sarthe (72190)
Neuville-sur-Sarthe (72190)
Maison de 6 pièces
Maison neuve, 110 m²
Neuville-sur-Sarthe (72190)
Neuville-sur-Sarthe (72190)
Maison de 5 pièces
Maison neuve, 143 m²
Neuville-sur-Sarthe (72190)
Neuville-sur-Sarthe (72190)
Maison de 4 pièces
Maison neuve, 95 m²
Neuville-sur-Sarthe (72190)
Neuville-sur-Sarthe (72190)
Maison de 5 pièces
Maison neuve, 130 m²
Neuville-sur-Sarthe (72190)
Neuville-sur-Sarthe (72190)
Maison de 5 pièces
Maison neuve, 97 m²
Neuville-sur-Sarthe (72190)
Neuville-sur-Sarthe (72190)
Maison de 4 pièces
Programmes à proximité
Histoire & Patrimoine Une adresse de caractère au cœur du Vieux-Mans
Le Mans (72000)
Le Mans (72000)
Appartement de 2 pièces
Livraison 3ème trimestre 2025
Néméa Le Mans Université
Le Mans (72000)
Le Mans (72000)
Appartements de 1 pièce
Livraison 2ème trimestre 2027
LES BOSQUETS TR.1
Le Mans (72000)
Le Mans (72000)
Appartements de 1 à 4 pièces
Livraison 4ème trimestre 2027
Epsilon
Le Mans (72000)
Le Mans (72000)
Appartements de 1 à 3 pièces
Livraison 4ème trimestre 2027
Contacter MAISONS CONCEPT AGENCE DU MANS pour recevoir plus d'informations
Remplissez le formulaire ci-dessous, vos informations sont transmises directement au constructeur qui vous contactera par email ou par téléphone afin de traiter votre demande. En savoir plus.
Voir tous nos programmes immobiliers neufs à Neuville-sur-Sarthe