Maison neuve, 70 m² - Nanteuil-en-Vallée (16700)
142 200 €
Nanteuil-en-Vallée (16700)
Proposée par BERMAX – 3 pièces - 3 chambres - terrain 901 m²
|
|
| BERMAX |
- Demande d'information
- Prendre rendez-vous
MAISON À CONSTRUIRE : ceci est une annonce d'une maison neuve à construire.
Projet maison F3 (70 m²) à Nanteuil-en-Vallée
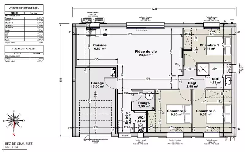
Nous vous proposons cette maison de 3 pièces de plain-pied de 70 m².
Son intérieur est composé de trois chambres, d'une cuisine ouverte sur une pièce de vie lumineuse, un garage et d'une salle de bains.
Le terrain du bien s'étend sur 901 m².
Cette maison se situe dans un secteur convoité.
Elle est à vendre pour la somme de 142 200 €.
Contactez Aurélie RICOME O6.45.28.23.53 pour plus de renseignements sur la maison.
Bermax Construction Saint-Yrieix-sur-Charente vous accompagne à toutes les étapes de votre projet et dans tous vos projets immobiliers.
Référence : AR2300522_2
Terrain proposé par un partenaire foncier selon disponibilités et autorisation de publicité au prix de 20 700 €. Hors droit d'enregistrement et frais de notaire. Terrain + Maison proposés au prix de 121 500 € (Hors branchements et raccordements, papiers peints, peintures, revêtement de sol dans les chambres. Tarif modifiable sans préavis). Etiquette énergie : A. Différents modèles disponibles pour ce terrain. Assurances et garanties du constructeur (RC professionnelle, décennale, dommage ouvrage, garantie de remboursement de l'acompte, livraison à prix et délai convenu) : https://www.bermax-constructions.fr/mentions-legales/.
Les informations sur les risques auxquels ce bien est exposé sont disponibles sur le site Géorisques : www.georisques.gouv.fr
Nous vous proposons cette maison de 3 pièces de plain-pied de 70 m².
Son intérieur est composé de trois chambres, d'une cuisine ouverte sur une pièce de vie lumineuse, un garage et d'une salle de bains.
Le terrain du bien s'étend sur 901 m².
Cette maison se situe dans un secteur convoité.
Elle est à vendre pour la somme de 142 200 €.
Contactez Aurélie RICOME O6.45.28.23.53 pour plus de renseignements sur la maison.
Bermax Construction Saint-Yrieix-sur-Charente vous accompagne à toutes les étapes de votre projet et dans tous vos projets immobiliers.
Référence : AR2300522_2
Terrain proposé par un partenaire foncier selon disponibilités et autorisation de publicité au prix de 20 700 €. Hors droit d'enregistrement et frais de notaire. Terrain + Maison proposés au prix de 121 500 € (Hors branchements et raccordements, papiers peints, peintures, revêtement de sol dans les chambres. Tarif modifiable sans préavis). Etiquette énergie : A. Différents modèles disponibles pour ce terrain. Assurances et garanties du constructeur (RC professionnelle, décennale, dommage ouvrage, garantie de remboursement de l'acompte, livraison à prix et délai convenu) : https://www.bermax-constructions.fr/mentions-legales/.
Les informations sur les risques auxquels ce bien est exposé sont disponibles sur le site Géorisques : www.georisques.gouv.fr
- Prix
-
- Prix total : 142 200 €
- Prix du modèle de maison : 121 500 €
- Prix du terrain : 20 700 €
- Terrain
-
- Surface : 901 m²
- Maison
-
- Surface : 70 m²
- Pièces : 3
- Chambres : 3
- Garage : 1
- Être rappelé par un conseiller
- Demander plus d’infos
- Demande d'information
Nanteuil-en-Vallée (16700)
Maisons à proximité
Maison neuve, 60 m²
Nanteuil-en-Vallée (16700)
Nanteuil-en-Vallée (16700)
Maison de 3 pièces
Maison neuve, 84 m²
Nanteuil-en-Vallée (16700)
Nanteuil-en-Vallée (16700)
Maison de 3 pièces
Maison neuve, 130 m²
Nanteuil-en-Vallée (16700)
Nanteuil-en-Vallée (16700)
Maison de 5 pièces
Maison neuve, 89 m²
Verteuil-sur-Charente (16510)
Verteuil-sur-Charente (16510)
Maison de 5 pièces
Maison neuve, 120 m²
Ruffec (16700)
Ruffec (16700)
Maison de 6 pièces
Maison neuve, 120 m²
Ruffec (16700)
Ruffec (16700)
Maison de 6 pièces
Programmes à proximité
Contacter BERMAX pour recevoir plus d'informations
Remplissez le formulaire ci-dessous, vos informations sont transmises directement au constructeur qui vous contactera par email ou par téléphone afin de traiter votre demande. En savoir plus.
Voir tous nos programmes immobiliers neufs à Nanteuil-en-Vallée