Maison neuve, 107 m² - Mosnes (37530)
245 000 €
Mosnes (37530)
Proposée par CONSTRUCTIONS IDEALE DEMEURE – 5 pièces - 5 chambres - terrain 968 m²
|
|
| CONSTRUCTIONS IDEALE DEMEURE |
- Demande d'information
- Prendre rendez-vous
MAISON À CONSTRUIRE : ceci est une annonce d'une maison neuve à construire.
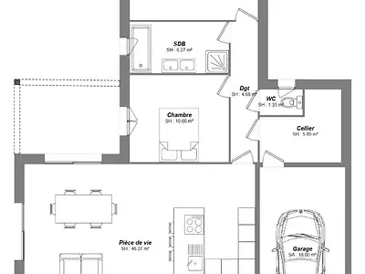
Voici une belle maison de 107m² à construire, comprenant 5 chambres, dont une suite parentale confortable. Elle dispose de 2 salles de bain modernes pour un confort optimal. Un grand cellier est également prévu, idéal pour le stockage et l'organisation.
Cette maison est entièrement personnalisable selon vos envies et besoins.
Je reste disponible pour toutes demandes de renseignements, n'hésitez pas me contacter : Stéphane Digneton : °6.64.92.89.69.
CONSTRUCTIONS IDEALE DEMEURE a sélectionné avec un partenaire foncier un terrain pour construire cette maison.
Référence : SD2298820_3
Terrain proposé par un partenaire foncier selon disponibilités et autorisation de publicité au prix de 62 000 €. Hors droit d'enregistrement et frais de notaire. Maison proposée, avec un contrat de construction de maison individuelle, dans le cadre de la loi du 19/12/1990, au prix de 183 000 € (Hors branchements et raccordements, papiers peints, peintures, revêtement de sol dans les chambres, qui sont chiffrés dans les travaux qui restent à charge du client. Tarif modifiable sans préavis). Étiquette énergie : A. Différents modèles disponibles pour ce terrain. Assurances et garanties du constructeur comprises (RC professionnelle, décennale, dommage ouvrage).
Les informations sur les risques auxquels ce bien est exposé sont disponibles sur le site Géorisques : www.georisques.gouv.fr
Cette maison est entièrement personnalisable selon vos envies et besoins.
Je reste disponible pour toutes demandes de renseignements, n'hésitez pas me contacter : Stéphane Digneton : °6.64.92.89.69.
CONSTRUCTIONS IDEALE DEMEURE a sélectionné avec un partenaire foncier un terrain pour construire cette maison.
Référence : SD2298820_3
Terrain proposé par un partenaire foncier selon disponibilités et autorisation de publicité au prix de 62 000 €. Hors droit d'enregistrement et frais de notaire. Maison proposée, avec un contrat de construction de maison individuelle, dans le cadre de la loi du 19/12/1990, au prix de 183 000 € (Hors branchements et raccordements, papiers peints, peintures, revêtement de sol dans les chambres, qui sont chiffrés dans les travaux qui restent à charge du client. Tarif modifiable sans préavis). Étiquette énergie : A. Différents modèles disponibles pour ce terrain. Assurances et garanties du constructeur comprises (RC professionnelle, décennale, dommage ouvrage).
Les informations sur les risques auxquels ce bien est exposé sont disponibles sur le site Géorisques : www.georisques.gouv.fr
- Prix
-
- Prix total : 245 000 €
- Prix du modèle de maison : 183 000 €
- Prix du terrain : 62 000 €
- Terrain
-
- Surface : 968 m²
- Maison
-
- Surface : 107 m²
- Pièces : 5
- Chambres : 5
- Être rappelé par un conseiller
- Demander plus d’infos
- Demande d'information
Mosnes (37530)
Maisons à proximité
Maison neuve, 89 m²
Mosnes (37530)
Mosnes (37530)
Maison de 4 pièces
Maison neuve, 87 m²
Mosnes (37530)
Mosnes (37530)
Maison de 4 pièces
Maison neuve, 90 m²
Mosnes (37530)
Mosnes (37530)
Maison de 5 pièces
Maison neuve, 142 m²
Mosnes (37530)
Mosnes (37530)
Maison de 5 pièces
Maison neuve, 240 m²
Mosnes (37530)
Mosnes (37530)
Maison de 6 pièces
Maison neuve, 85 m²
Mosnes (37530)
Mosnes (37530)
Maison de 4 pièces
Programmes à proximité
Le Clos des Cordeliers
Amboise (37400)
Amboise (37400)
Appartements de 3 à 4 pièces
Livraison 1er trimestre 2026
L'Ecrin des Chartreux
Bléré (37150)
Bléré (37150)
Appartements de 2 pièces
Livraison 1er trimestre 2028
Le Domaine des Chartreux
Bléré (37150)
Bléré (37150)
Appartements de 2 à 4 pièces et maison de 3 pièces
Livraison 3ème trimestre 2027
COURTIL MONTLOUIS - MONTLOUIS SUR LOIRE
Montlouis-sur-Loire (37270)
Montlouis-sur-Loire (37270)
Appartements de 2 à 4 pièces
Livraison 4ème trimestre 2026
CARRE DES HALLES
Vouvray (37210)
Vouvray (37210)
Appartements de 1 à 4 pièces
Livraison 3ème trimestre 2027
Contacter CONSTRUCTIONS IDEALE DEMEURE pour recevoir plus d'informations
Remplissez le formulaire ci-dessous, vos informations sont transmises directement au constructeur qui vous contactera par email ou par téléphone afin de traiter votre demande. En savoir plus.