Maison neuve, 100 m² - Mortiers (17500)
194 947 €
Mortiers (17500)
Proposée par BABEAU SEGUIN AGENCE DE COGNAC (16100) – CHARENTE – 4 pièces - 3 chambres - terrain 931 m²
|
|
| Babeau Seguin Agence de Cognac (16100) – Charente |
- Demande d'information
- Prendre rendez-vous
MAISON À CONSTRUIRE : ceci est une annonce d'une maison neuve à construire.
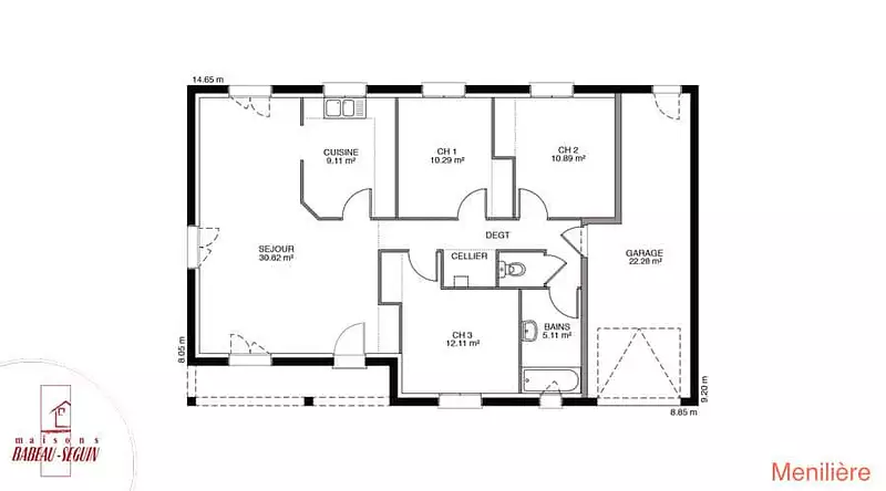
Sur ce terrain, nous vous proposons cette maison neuve, la Ménilière Sud, conçue par Babeau-Seguin, constructeur offrant le meilleur rapport qualité/prix du marché. Cette superbe maison traditionnelle du sud, avec ses galeries et ses tuiles canal, dispose d'une surface de 100 m² et comprend 3 chambres et 4 pièces.
La Ménilière Sud est une maison basse consommation, conforme à la RE2020, garantissant des économies d'énergie et un confort optimal tout au long de l'année. Elle est équipée d'un garage intégré, et vous avez le choix entre un toit à 2 pans ou à 4 pans, selon vos préférences.
Offrant beaucoup de cachet, la Ménilière Sud est facilement personnalisable pour répondre à vos besoins et à vos goûts. Son porche avant pratique vous évitera la panique de chercher vos clés les jours de pluie. Ce modèle est particulièrement apprécié pour son excellent rapport qualité/prix, ce qui en fait l'un des modèles sur-mesure les plus vendus.
Ne manquez pas cette opportunité unique d'acquérir une maison neuve, économe en énergie et parfaitement adaptée à vos envies. Contactez-nous dès maintenant pour plus d'informations et pour découvrir toutes les possibilités de personnalisation de la Ménilière Sud.
Référence : 72275
Les informations sur les risques auxquels ce bien est exposé sont disponibles sur le site Géorisques : www.georisques.gouv.fr
La Ménilière Sud est une maison basse consommation, conforme à la RE2020, garantissant des économies d'énergie et un confort optimal tout au long de l'année. Elle est équipée d'un garage intégré, et vous avez le choix entre un toit à 2 pans ou à 4 pans, selon vos préférences.
Offrant beaucoup de cachet, la Ménilière Sud est facilement personnalisable pour répondre à vos besoins et à vos goûts. Son porche avant pratique vous évitera la panique de chercher vos clés les jours de pluie. Ce modèle est particulièrement apprécié pour son excellent rapport qualité/prix, ce qui en fait l'un des modèles sur-mesure les plus vendus.
Ne manquez pas cette opportunité unique d'acquérir une maison neuve, économe en énergie et parfaitement adaptée à vos envies. Contactez-nous dès maintenant pour plus d'informations et pour découvrir toutes les possibilités de personnalisation de la Ménilière Sud.
Référence : 72275
Les informations sur les risques auxquels ce bien est exposé sont disponibles sur le site Géorisques : www.georisques.gouv.fr
- Prix
-
- Prix total : 194 947 €
- Prix du modèle de maison : 171 672 €
- Prix du terrain : 23 275 €
- Terrain
-
- Surface : 931 m²
- Maison
-
- Surface : 100 m²
- Pièces : 4
- Chambres : 3
- Être rappelé par un conseiller
- Demander plus d’infos
- Demande d'information
Mortiers (17500)
Maisons à proximité
Maison neuve, 90 m²
Mortiers (17500)
Mortiers (17500)
Maison de 4 pièces
Maison neuve, 82 m²
Mortiers (17500)
Mortiers (17500)
Maison de 4 pièces
Maison neuve, 90 m²
Saint-Germain-de-Vibrac (17500)
Saint-Germain-de-Vibrac (17500)
Maison de 4 pièces
Maison neuve, 130 m²
Saint-Médard (17500)
Saint-Médard (17500)
Maison de 5 pièces
Maison neuve, 100 m²
Saint-Médard (17500)
Saint-Médard (17500)
Maison de 4 pièces
Maison neuve, 85 m²
Saint-Médard (17500)
Saint-Médard (17500)
Maison de 4 pièces
Programmes à proximité
Contacter BABEAU SEGUIN AGENCE DE COGNAC (16100) – CHARENTE pour recevoir plus d'informations
Remplissez le formulaire ci-dessous, vos informations sont transmises directement au constructeur qui vous contactera par email ou par téléphone afin de traiter votre demande. En savoir plus.