Maison neuve, 110 m² - Montigny-lès-Cormeilles (95370)

425 000 €
Montigny-lès-Cormeilles (95370)

Proposée par MAISONS SÉSAME - AGENCE DE BAILLET EN FRANCE – 6 pièces - 4 chambres - terrain 519 m²

Maisons Sésame - Agence de Baillet en France
Maisons Sésame - Agence de Baillet en France
  • Demande d'information
MAISON À CONSTRUIRE : ceci est une annonce d'une maison neuve à construire.
A MONTIGNY-LES-CORMEILLES sur un terrain de 519 m², MAISONS SESAME vous propose de réaliser cette maison neuve d'une surface de 110 m² habitables avec 4 chambres.
Le modèle AMETHYSTE 110 CONTEMPORAINE est une maison moderne à toit plat de 110 m², alliant design épuré et fonctionnalité.
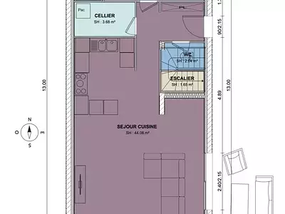
Au rez-de-chaussée, vous découvrirez un vaste séjour lumineux ouvert sur une cuisine contemporaine, créant un espace convivial et fluide. Ce niveau comprend également un WC et un garage de 13 m², idéal pour le rangement ou le stationnement.
À l’étage, les quatre chambres sont réparties de manière optimisée, avec une salle de bains équipée d’une baignoire. Un grand dégagement à l’étage peut facilement être aménagé en espace bureau pour le télétravail ou en ""boudoir"", offrant une belle polyvalence.
Le modèle AMETHYSTE 110 CONTEMPORAINE avec son toit plat modernise l’espace de vie tout en maximisant le confort et l’utilité pour une famille moderne.
MAISONS SÉSAME vous propose les prestations suivantes :
- Plans des maisons modulables et adaptables selon vos besoins et les spécificités de votre terrain
- Large choix de systèmes de chauffage performants et économes en énergie
- Sélection de matériaux de qualité garantissant confort et durabilité
- Accompagnement sur-mesure pour la recherche et l’acquisition de votre terrain
- Construction conforme à la réglementation en vigueur et à la norme RE2020
- Maisons certifiées NF HABITAT, gage de qualité, de performance et de confort
Informations du terrain : - 300m de la gare de la Frette-Montigny (3 minutes à pied)
- 20 minutes de Saint-Lazare
- Environnement résidentiel calme et très recherché
- Proche quai de Seine
- R+1 possible
- Maison totalement indépendante
Demandez une étude gratuite et personnalisée de votre projet de construction !
Étude gratuite de votre projet de construction !
De nombreux terrains disponibles dans votre secteur.
Informations légales :
Maisons Sésame, constructeur de maisons individuelles, propose une sélection de terrains en collaboration avec ses partenaires fonciers, sous réserve de disponibilité. Il n’agit pas en tant que mandataire pour la vente de ces terrains.
Nos maisons, certifiées NF Habitat et conformes à la réglementation thermique en vigueur, vous garantissent un habitat durable et économe en énergie. Découvrez un large choix de modèles adaptés aux besoins de toute la famille.
Informations tarifaires :
Les prix indiqués sont donnés à titre indicatif et incluent les frais annexes hormis les frais de notaire.
Les visuels et prix présentés sont non contractuels. Pour plus de détails, consultez nos conditions en agence.
N° ORIAS IOBSP 13007108 – RCS Versailles 388 867 426.
Les informations sur les risques auxquels ce bien est exposé sont disponibles sur le site Géorisques : www.georisques.gouv.fr
Cette annonce a été créée et diffusée avec le logiciel VITAHOME.


Prix
  • Prix total : 425 000 €
  • Prix du modèle de maison : 190 221 €
  • Prix du terrain : 235 000 €

Terrain
  • Surface : 519 m²

Maison
  • Surface : 110 m²
  • Pièces : 6
  • Chambres : 4
  • Salle de bains : 1

  • Être rappelé par un conseiller
  • Demander plus d’infos
  • Demande d'information
Montigny-lès-Cormeilles (95370)

Programmes à proximité

Les Terrasses - Coeur de ville
Les Terrasses - Coeur de ville
Montigny-lès-Cormeilles (95370)

Appartements de 2 à 3 pièces
Livraison 1er trimestre 2026

CADENCE
CADENCE
Montigny-lès-Cormeilles (95370)

Appartements de 1 à 4 pièces et maisons de 4 pièces
Livraison 4ème trimestre 2027

LE DOMAINE DES CERISIERS
LE DOMAINE DES CERISIERS
Montigny-lès-Cormeilles (95370)

Appartements de 2 à 5 pièces
Livraison 4ème trimestre 2027

Les Hauts du Chateau
Les Hauts du Chateau
Montigny-lès-Cormeilles (95370)

Appartements de 3 à 4 pièces
Livraison 2ème trimestre 2026

L'Ecrin de Pasteur
L'Ecrin de Pasteur
Beauchamp (95250)

Appartements de 2 à 4 pièces
Livraison 4ème trimestre 2026

VILLA MANSART
VILLA MANSART
Beauchamp (95250)

Appartements de 2 à 4 pièces
Livraison 4ème trimestre 2027

Contacter MAISONS SÉSAME - AGENCE DE BAILLET EN FRANCE pour recevoir plus d'informations

Remplissez le formulaire ci-dessous, vos informations sont transmises directement au constructeur qui vous contactera par email ou par téléphone afin de traiter votre demande. En savoir plus.

Voir tous nos programmes immobiliers neufs à Montigny-lès-Cormeilles