Maison neuve, 90 m² - Montagrier (24350)
192 000 €
Montagrier (24350)
Proposée par MAISONS OMEGA AGENCE DE PÉRIGUEUX – 4 pièces - 3 chambres - terrain 1 800 m²
|
|
| Maisons Omega Agence de Périgueux |
| (17 avis) |
- Demande d'information
- Prendre rendez-vous
MAISON À CONSTRUIRE : ceci est une annonce d'une maison neuve à construire.
Sur ce terrain, nous vous proposons cette maison neuve : le modèle « Coulounieix ». Osez le classique avec une maison neuve vraiment confortable !
Le modèle « Coulounieix » va vous faire voir la vie en rose… cette maison traditionnelle de plain-pied est bien pensée et pratique, pour un confort optimal de l’ensemble de votre famille. Découvrez-le.
Construisez votre pavillon familial avec Maisons Omega, détenteur du label Maisons de Qualité. Ce modèle affiche une esthétique parfaite. Avec des lignes symétriques et un plan optimisé, aucune chance de faire une faute de goût. Ajoutez-lui un enduit bi-ton et vous lui offrirez même une vraie touche de modernité.
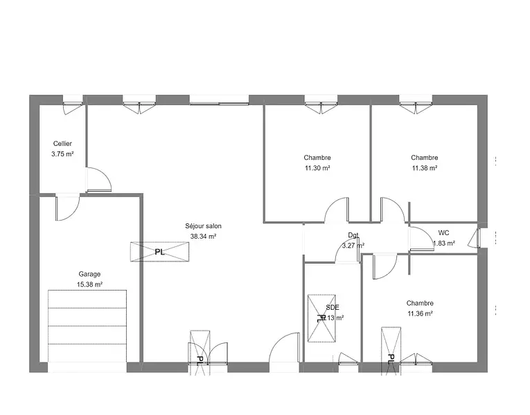
À l’intérieur, c’est également le bonheur. Un spacieux espace de vie et sa cuisine semi-ouverte. Un coin nuit avec salle de bains et trois chambres. La maison dispose d'une surface de 90 m², de 3 chambres et de 4 pièces. Les caractéristiques principales incluent un toit à 2 pans ou 4 pans, un porche accueillant, et un garage intégré.
Les options les plus demandées par nos clients sont disponibles : menuiseries en aluminium et domotique pour un confort et une sécurité accrus.
Cette maison neuve est basse consommation et conforme à la RE2020, garantissant ainsi des performances énergétiques optimales et un respect de l'environnement.
Vous êtes conquis ? On vous comprend ! Afin d’obtenir tous les détails sur cette magnifique habitation, n’hésitez pas à nous contacter !
Référence : 12378
Les informations sur les risques auxquels ce bien est exposé sont disponibles sur le site Géorisques : www.georisques.gouv.fr
Le modèle « Coulounieix » va vous faire voir la vie en rose… cette maison traditionnelle de plain-pied est bien pensée et pratique, pour un confort optimal de l’ensemble de votre famille. Découvrez-le.
Construisez votre pavillon familial avec Maisons Omega, détenteur du label Maisons de Qualité. Ce modèle affiche une esthétique parfaite. Avec des lignes symétriques et un plan optimisé, aucune chance de faire une faute de goût. Ajoutez-lui un enduit bi-ton et vous lui offrirez même une vraie touche de modernité.
À l’intérieur, c’est également le bonheur. Un spacieux espace de vie et sa cuisine semi-ouverte. Un coin nuit avec salle de bains et trois chambres. La maison dispose d'une surface de 90 m², de 3 chambres et de 4 pièces. Les caractéristiques principales incluent un toit à 2 pans ou 4 pans, un porche accueillant, et un garage intégré.
Les options les plus demandées par nos clients sont disponibles : menuiseries en aluminium et domotique pour un confort et une sécurité accrus.
Cette maison neuve est basse consommation et conforme à la RE2020, garantissant ainsi des performances énergétiques optimales et un respect de l'environnement.
Vous êtes conquis ? On vous comprend ! Afin d’obtenir tous les détails sur cette magnifique habitation, n’hésitez pas à nous contacter !
Référence : 12378
Les informations sur les risques auxquels ce bien est exposé sont disponibles sur le site Géorisques : www.georisques.gouv.fr
- Prix
-
- Prix total : 192 000 €
- Prix du modèle de maison : 152 000 €
- Prix du terrain : 40 000 €
- Terrain
-
- Surface : 1 800 m²
- Maison
-
- Surface : 90 m²
- Pièces : 4
- Chambres : 3
- Être rappelé par un conseiller
- Demander plus d’infos
- Demande d'information
Montagrier (24350)
Maisons à proximité
Maison neuve, 84 m²
Montagrier (24350)
Montagrier (24350)
Maison de 4 pièces
Maison neuve, 132 m²
Tocane-Saint-Apre (24350)
Tocane-Saint-Apre (24350)
Maison de 6 pièces
Maison neuve, 132 m²
Tocane-Saint-Apre (24350)
Tocane-Saint-Apre (24350)
Maison de 6 pièces
Maison neuve, 146 m²
Tocane-Saint-Apre (24350)
Tocane-Saint-Apre (24350)
Maison de 7 pièces
Maison neuve, 110 m²
Tocane-Saint-Apre (24350)
Tocane-Saint-Apre (24350)
Maison de 5 pièces
Maison neuve, 90 m²
Tocane-Saint-Apre (24350)
Tocane-Saint-Apre (24350)
Maison de 5 pièces
Programmes à proximité
Habitez à 5 min du centre-ville
Périgueux (24000)
Périgueux (24000)
Appartements de 2 à 4 pièces
Livraison 1er trimestre 2027
Contacter MAISONS OMEGA AGENCE DE PÉRIGUEUX pour recevoir plus d'informations
Remplissez le formulaire ci-dessous, vos informations sont transmises directement au constructeur qui vous contactera par email ou par téléphone afin de traiter votre demande. En savoir plus.