Maison neuve, 70 m² - Monestier (24240)
143 999 €
Monestier (24240)
Proposée par MAISONS OMEGA AGENCE DE BERGERAC – 4 pièces - 3 chambres - terrain 1 000 m²
|
|
| Maisons Omega Agence de Bergerac |
- Demande d'information
- Prendre rendez-vous
MAISON À CONSTRUIRE : ceci est une annonce d'une maison neuve à construire.
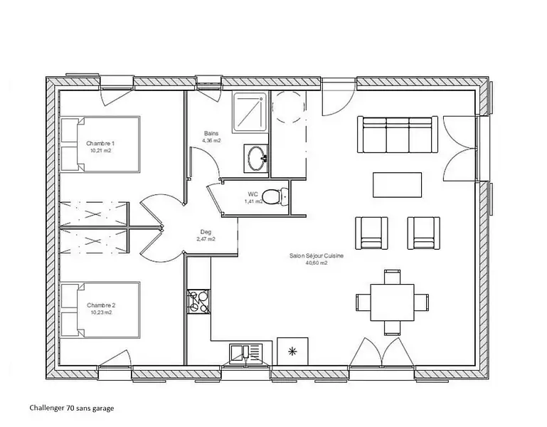
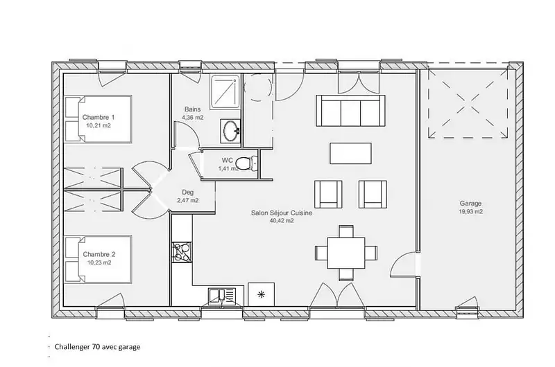
Sur ce terrain, nous vous proposons cette maison neuve : le modèle Challenger, spécialement conçu pour les primo-accédants ou les couples souhaitant bénéficier du meilleur rapport qualité/prix du marché. Avec une surface de 70 m², cette maison offre un espace de vie confortable et fonctionnel, idéal pour bien débuter dans la vie.
### Une maison neuve parfaite pour bien débuter dans la vie
La maison Challenger séduit immédiatement par ses formes simples et son intérieur confortable. Elle dispose de 3 chambres et de 4 pièces, dont un vaste séjour avec une cuisine ouverte. Les grandes portes-fenêtres assurent une excellente luminosité, créant un espace de vie agréable et chaleureux.
### Construire une petite demeure neuve coquette et sympathique
La gamme Challenger se décline en plusieurs modèles, et celui-ci, avec ses 70 m², ne fait pas exception en termes de confort. Vous pourrez profiter de 3 chambres spacieuses et d'un séjour lumineux. Un très pratique garage intégré est également inclus !
### Caractéristiques principales
- Petit prix : Une maison accessible pour les primo-accédants.
- Basse consommation : Conforme à la norme RE2020, cette maison est conçue pour être économe en énergie.
- **Options populaires** : Enduit coloré et volets roulants disponibles pour personnaliser votre maison.
### Un extérieur moderne et séduisant
L'aspect extérieur de la maison Challenger vous fera également tomber sous le charme, avec des façades résolument modernes soulignées d'enduit bi-ton et de menuiseries assorties.
### Constructeur de confiance
Maisons Omega, détenteur du label Maisons de Qualité, est le constructeur de cette maison. Vous pouvez être assuré de la qualité et de la durabilité de votre future demeure.
Vous êtes conquis ? Vous voulez en savoir plus sur cette maison à petit prix ? Contactez-nous afin d’en parler et d'obtenir tous les détails.
Référence : 12901
Les informations sur les risques auxquels ce bien est exposé sont disponibles sur le site Géorisques : www.georisques.gouv.fr
### Une maison neuve parfaite pour bien débuter dans la vie
La maison Challenger séduit immédiatement par ses formes simples et son intérieur confortable. Elle dispose de 3 chambres et de 4 pièces, dont un vaste séjour avec une cuisine ouverte. Les grandes portes-fenêtres assurent une excellente luminosité, créant un espace de vie agréable et chaleureux.
### Construire une petite demeure neuve coquette et sympathique
La gamme Challenger se décline en plusieurs modèles, et celui-ci, avec ses 70 m², ne fait pas exception en termes de confort. Vous pourrez profiter de 3 chambres spacieuses et d'un séjour lumineux. Un très pratique garage intégré est également inclus !
### Caractéristiques principales
- Petit prix : Une maison accessible pour les primo-accédants.
- Basse consommation : Conforme à la norme RE2020, cette maison est conçue pour être économe en énergie.
- **Options populaires** : Enduit coloré et volets roulants disponibles pour personnaliser votre maison.
### Un extérieur moderne et séduisant
L'aspect extérieur de la maison Challenger vous fera également tomber sous le charme, avec des façades résolument modernes soulignées d'enduit bi-ton et de menuiseries assorties.
### Constructeur de confiance
Maisons Omega, détenteur du label Maisons de Qualité, est le constructeur de cette maison. Vous pouvez être assuré de la qualité et de la durabilité de votre future demeure.
Vous êtes conquis ? Vous voulez en savoir plus sur cette maison à petit prix ? Contactez-nous afin d’en parler et d'obtenir tous les détails.
Référence : 12901
Les informations sur les risques auxquels ce bien est exposé sont disponibles sur le site Géorisques : www.georisques.gouv.fr
- Prix
-
- Prix total : 143 999 €
- Prix du modèle de maison : 127 999 €
- Prix du terrain : 16 000 €
- Terrain
-
- Surface : 1 000 m²
- Maison
-
- Surface : 70 m²
- Pièces : 4
- Chambres : 3
- Être rappelé par un conseiller
- Demander plus d’infos
- Demande d'information
Monestier (24240)
Maisons à proximité
Maison neuve, 80 m²
Monestier (24240)
Monestier (24240)
Maison de 4 pièces
Maison neuve, 87 m²
Monestier (24240)
Monestier (24240)
Maison de 4 pièces
Maison neuve, 90 m²
Monestier (24240)
Monestier (24240)
Maison de 5 pièces
Maison neuve, 80 m²
Monestier (24240)
Monestier (24240)
Maison de 4 pièces
Maison neuve, 108 m²
Thénac (24240)
Thénac (24240)
Maison de 4 pièces
Maison neuve, 114 m²
Thénac (24240)
Thénac (24240)
Maison de 4 pièces
Programmes à proximité
Contacter MAISONS OMEGA AGENCE DE BERGERAC pour recevoir plus d'informations
Remplissez le formulaire ci-dessous, vos informations sont transmises directement au constructeur qui vous contactera par email ou par téléphone afin de traiter votre demande. En savoir plus.