Maison neuve, 94 m² - Mizérieux (42110)
255 000 €
Mizérieux (42110)
Proposée par MAISONS PUNCH SAINT-ÉTIENNE – 4 pièces - 3 chambres - terrain 700 m²
|
|
| Maisons Punch Saint-Étienne |
| (71 avis) |
- Demande d'information
- Prendre rendez-vous
MAISON À CONSTRUIRE : ceci est une annonce d'une maison neuve à construire.
PROJET DE CONSTRUCTION – MAISON À ÉTAGE 93 M² AVEC GARAGE – MIZÉRIEUX (42)
Sur la commune attractive de Mizérieux (42110), Maisons Punch, constructeur de maisons individuelles reconnu dans la Loire, vous propose un projet de construction clé en main, idéal pour un premier achat immobilier.
Ce projet est situé sur un terrain constructible dans un environnement calme et résidentiel, parfait pour démarrer votre projet de vie en toute sérénité.
Une maison pensée pour les primo-accédants
Cette maison individuelle à étage de 93 m² habitables offre un agencement moderne, fonctionnel et optimisé pour les jeunes couples ou familles souhaitant devenir propriétaires.
Maison neuve à étage
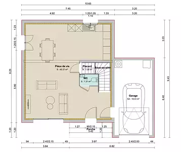
Surface habitable : 93 m²
3 chambres à l’étage
Belle pièce de vie lumineuse avec cuisine ouverte
Salle de bains familiale
2 WC pour plus de confort
Garage attenant de 18 m²
Espaces optimisés pour limiter les coûts de construction
Plans personnalisables selon votre budget et vos besoins
Construction conforme à la réglementation environnementale RE 2020 permettant de réaliser des économies d’énergie
Les avantages de ce projet
Maison neuve accessible pour un premier achat
Possibilité d’accompagnement dans votre financement et aides à l’accession
Projet évolutif adapté à la vie familiale
Faibles consommations énergétiques
Terrain situé dans un cadre de vie agréable
Accompagnement complet : conception, démarches administratives et suivi de chantier
Constructeur local reconnu : Maisons Punch
Localisation
Mizérieux (42110)
Proximité de Feurs, des commerces, écoles et commodités
Accès rapide aux axes routiers principaux
Secteur recherché dans la Loire
Contact
Pour plus d’informations et une étude personnalisée de votre projet de construction, contactez Maisons Punch – Nadia Galland 06.27.91.33.45
Une opportunité idéale pour devenir propriétaire d’une maison neuve à Mizérieux.
Référence : 3164 GALLAND Nadia
Terrain proposé et vendu par notre partenaire foncier selon disponibilités, le constructeur n’étant pas mandaté pour réaliser la vente du terrain. Prix terrain inclus : 75 000 € Frais de notaire non inclus : € Prix maison inclus : 180 000 € VRD non inclus : € Hors aménagements extérieurs (extensions, terrasse, piscine etc), papiers peints, peintures, moquettes dans les chambres (tarif en vigueur au 20 mai 2025, modifiable sans préavis, prix variables suivant les prestations souhaitées). Hors frais d’hypothèque. Différents modèles disponibles pour chaque terrain. Assurance RC professionnelle/décennale/dommage ouvrage groupe Aviva. Garantie de remboursement de l'acompte/livraison à prix et délai convenu CGI. Partenaire financier : à préciser Le numéro de TVA intracommunautaire : FR 14 498 627 272 00012 Contact : contact@maisons-punch.fr
Les informations sur les risques auxquels ce bien est exposé sont disponibles sur le site Géorisques : www.georisques.gouv.fr
Sur la commune attractive de Mizérieux (42110), Maisons Punch, constructeur de maisons individuelles reconnu dans la Loire, vous propose un projet de construction clé en main, idéal pour un premier achat immobilier.
Ce projet est situé sur un terrain constructible dans un environnement calme et résidentiel, parfait pour démarrer votre projet de vie en toute sérénité.
Une maison pensée pour les primo-accédants
Cette maison individuelle à étage de 93 m² habitables offre un agencement moderne, fonctionnel et optimisé pour les jeunes couples ou familles souhaitant devenir propriétaires.
Maison neuve à étage
Surface habitable : 93 m²
3 chambres à l’étage
Belle pièce de vie lumineuse avec cuisine ouverte
Salle de bains familiale
2 WC pour plus de confort
Garage attenant de 18 m²
Espaces optimisés pour limiter les coûts de construction
Plans personnalisables selon votre budget et vos besoins
Construction conforme à la réglementation environnementale RE 2020 permettant de réaliser des économies d’énergie
Les avantages de ce projet
Maison neuve accessible pour un premier achat
Possibilité d’accompagnement dans votre financement et aides à l’accession
Projet évolutif adapté à la vie familiale
Faibles consommations énergétiques
Terrain situé dans un cadre de vie agréable
Accompagnement complet : conception, démarches administratives et suivi de chantier
Constructeur local reconnu : Maisons Punch
Localisation
Mizérieux (42110)
Proximité de Feurs, des commerces, écoles et commodités
Accès rapide aux axes routiers principaux
Secteur recherché dans la Loire
Contact
Pour plus d’informations et une étude personnalisée de votre projet de construction, contactez Maisons Punch – Nadia Galland 06.27.91.33.45
Une opportunité idéale pour devenir propriétaire d’une maison neuve à Mizérieux.
Référence : 3164 GALLAND Nadia
Terrain proposé et vendu par notre partenaire foncier selon disponibilités, le constructeur n’étant pas mandaté pour réaliser la vente du terrain. Prix terrain inclus : 75 000 € Frais de notaire non inclus : € Prix maison inclus : 180 000 € VRD non inclus : € Hors aménagements extérieurs (extensions, terrasse, piscine etc), papiers peints, peintures, moquettes dans les chambres (tarif en vigueur au 20 mai 2025, modifiable sans préavis, prix variables suivant les prestations souhaitées). Hors frais d’hypothèque. Différents modèles disponibles pour chaque terrain. Assurance RC professionnelle/décennale/dommage ouvrage groupe Aviva. Garantie de remboursement de l'acompte/livraison à prix et délai convenu CGI. Partenaire financier : à préciser Le numéro de TVA intracommunautaire : FR 14 498 627 272 00012 Contact : contact@maisons-punch.fr
Les informations sur les risques auxquels ce bien est exposé sont disponibles sur le site Géorisques : www.georisques.gouv.fr
- Prix
-
- Prix total : 255 000 €
- Prix du modèle de maison : 180 000 €
- Prix du terrain : 75 000 €
- Terrain
-
- Surface : 700 m²
- Maison
-
- Surface : 94 m²
- Pièces : 4
- Chambres : 3
- Salle de bains : 1
- Garage : 1
- Surface garage : 18 m²
- Être rappelé par un conseiller
- Demander plus d’infos
- Demande d'information
Mizérieux (42110)
Maisons à proximité
Maison neuve, 95 m²
Mizérieux (42110)
Mizérieux (42110)
Maison de 5 pièces
Maison neuve, 105 m²
Mizérieux (42110)
Mizérieux (42110)
Maison de 4 pièces
Maison neuve, 105 m²
Nervieux (42510)
Nervieux (42510)
Maison de 5 pièces
Maison neuve, 94 m²
Nervieux (42510)
Nervieux (42510)
Maison de 4 pièces
Maison neuve, 94 m²
Nervieux (42510)
Nervieux (42510)
Maison de 4 pièces
Maison neuve, 79 m²
Nervieux (42510)
Nervieux (42510)
Maison de 4 pièces
Programmes à proximité
ECRIN PROVIDENCE
Tarare (69170)
Tarare (69170)
Appartements de 2 à 4 pièces
Livraison 1er trimestre 2028
Contacter MAISONS PUNCH SAINT-ÉTIENNE pour recevoir plus d'informations
Remplissez le formulaire ci-dessous, vos informations sont transmises directement au constructeur qui vous contactera par email ou par téléphone afin de traiter votre demande. En savoir plus.