Maison neuve, 82 m² - Mézidon Vallée d'Auge (14270)

168 000 €
Mézidon Vallée d'Auge (14270)

Proposée par MAISONS FRANCE CONFORT – 5 pièces - 3 chambres - terrain 324 m²

MAISONS FRANCE CONFORT
MAISONS FRANCE CONFORT
  • Demande d'information
MAISON À CONSTRUIRE : ceci est une annonce d'une maison neuve à construire.
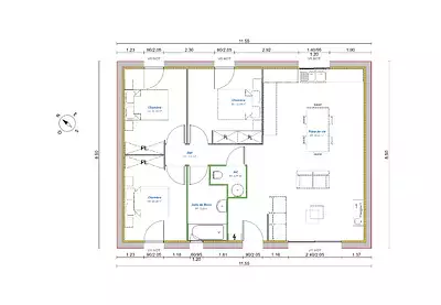
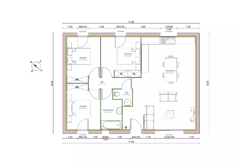
Maisons France Confort vous propose ce plain pied composé :
d'une entrée avec placard, une pièce de vie de 40m², un espace nuit avec 3 chambres et une salle de bain. Référence : AV2276585_1
Terrain proposé par un partenaire foncier selon disponibilités et autorisation de publicité au prix de 43 000 €. Hors droit d'enregistrement et frais de notaire. Maison proposée, avec un contrat de construction de maison individuelle, dans le cadre de la loi du 19/12/1990, au prix de 125 000 € (Hors branchements et raccordements, papiers peints, peintures, revêtement de sol dans les chambres, qui sont chiffrés dans les travaux qui restent à charge du client. Tarif modifiable sans préavis). Étiquette énergie : A. Différents modèles disponibles pour ce terrain. Assurances et garanties du constructeur comprises (RC professionnelle, décennale, dommage ouvrage).

Les informations sur les risques auxquels ce bien est exposé sont disponibles sur le site Géorisques : www.georisques.gouv.fr


Prix
  • Prix total : 168 000 €
  • Prix du modèle de maison : 125 000 €
  • Prix du terrain : 43 000 €

Terrain
  • Surface : 324 m²

Maison
  • Surface : 82 m²
  • Pièces : 5
  • Chambres : 3

  • Être rappelé par un conseiller
  • Demander plus d’infos
  • Demande d'information
Mézidon Vallée d'Auge (14270)

Programmes à proximité

Caélia
Caélia
Cagny (14630)

Appartements de 1 à 3 pièces
Livraison 4ème trimestre 2026

A Dozulé, proche du centre-ville
A Dozulé, proche du centre-ville
Dozulé (14430)

Appartements de 2 à 3 pièces
Livraison 2ème trimestre 2027

Le Domaine du Clos Boisé
Le Domaine du Clos Boisé
Cormelles-le-Royal (14123)

Appartements de 3 pièces
Livraison 4ème trimestre 2025

ARMONIA
ARMONIA
Mondeville (14120)

Appartements de 3 à 5 pièces et maisons de 4 à 5 pièces
Livraison 1er trimestre 2026

LES ARILLES
LES ARILLES
Ifs (14123)

Appartements de 1 à 3 pièces
Livraison 1er trimestre 2026

Le Clos du Marronnier
Le Clos du Marronnier
Ifs (14123)

Appartements de 3 pièces
Livraison 4ème trimestre 2027

Contacter MAISONS FRANCE CONFORT pour recevoir plus d'informations

Remplissez le formulaire ci-dessous, vos informations sont transmises directement au constructeur qui vous contactera par email ou par téléphone afin de traiter votre demande. En savoir plus.

Voir tous nos programmes immobiliers neufs à Mézidon Vallée d'Auge