Maison neuve, 79 m² - Mesnières-en-Bray (76270)
190 212 €
Mesnières-en-Bray (76270)
Proposée par MAISONS CLEROISES AGENCE DE QUINCAMPOIX – 3 pièces - 2 chambres - terrain 787 m²
|
|
| Maisons Cleroises Agence de Quincampoix |
| (81 avis) |
- Demande d'information
- Prendre rendez-vous
MAISON À CONSTRUIRE : ceci est une annonce d'une maison neuve à construire.
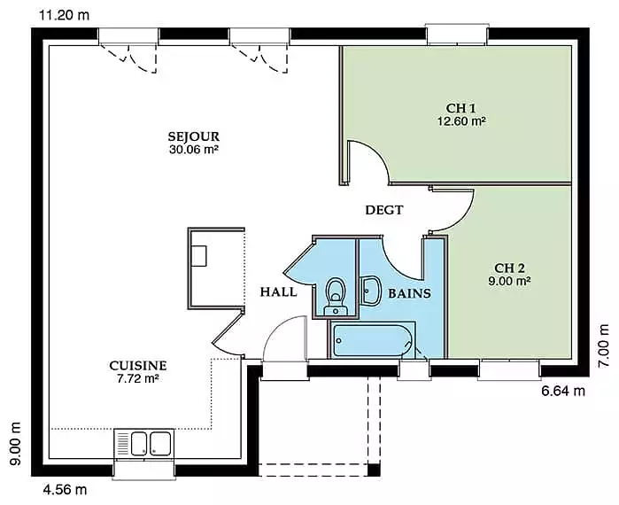
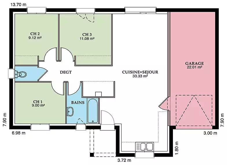
Nous vous proposons cette maison neuve, modèle Montivilliere, une habitation qui allie élégance, fonctionnalité et respect de l'environnement. Conçue pour répondre aux attentes des plus exigeants, cette maison de 79 m² offre un cadre de vie idéal pour une petite famille ou un couple, avec ses 2 chambres et ses 3 pièces réparties dans un plan en T optimisant chaque espace.
Le porche accueillant vous invite à découvrir un intérieur pensé pour votre confort et votre bien-être, où la lumière naturelle est mise à l'honneur grâce à des menuiseries en aluminium, option plébiscitée pour son esthétique et sa durabilité. La possibilité d'ajouter un garage accolé offre une solution pratique pour votre véhicule ou pour un espace de rangement supplémentaire, répondant ainsi à toutes vos attentes en matière d'aménagement.
La Montivilliere se distingue par son excellent rapport qualité/prix, vous garantissant de faire le meilleur investissement pour votre avenir. De plus, cette maison est conçue pour être basse consommation et est entièrement conforme à la réglementation environnementale RE2020, vous assurant ainsi des économies d'énergie significatives et un respect total de l'environnement.
Avec sept versions différentes disponibles, allant de deux à quatre chambres, et une multitude d'options de personnalisation, la Montivilliere est la promesse d'une maison qui s'adapte parfaitement à vos besoins et à votre style de vie. Que vous rêviez d'une demeure cosy de 72 m² ou d'un espace plus vaste de 127 m², ce modèle offre une flexibilité inégalée pour créer le foyer de vos rêves.
Ne manquez pas l'opportunité de vous offrir cette maison neuve, symbole d'un mode de vie moderne, confortable et responsable. La Montivilliere vous attend pour commencer un nouveau chapitre de votre vie dans un cadre exceptionnel. Contactez-nous dès maintenant pour plus d'informations et laissez-vous séduire par le charme et les avantages de cette magnifique propriété.
Référence : 7886
Les informations sur les risques auxquels ce bien est exposé sont disponibles sur le site Géorisques : www.georisques.gouv.fr
Le porche accueillant vous invite à découvrir un intérieur pensé pour votre confort et votre bien-être, où la lumière naturelle est mise à l'honneur grâce à des menuiseries en aluminium, option plébiscitée pour son esthétique et sa durabilité. La possibilité d'ajouter un garage accolé offre une solution pratique pour votre véhicule ou pour un espace de rangement supplémentaire, répondant ainsi à toutes vos attentes en matière d'aménagement.
La Montivilliere se distingue par son excellent rapport qualité/prix, vous garantissant de faire le meilleur investissement pour votre avenir. De plus, cette maison est conçue pour être basse consommation et est entièrement conforme à la réglementation environnementale RE2020, vous assurant ainsi des économies d'énergie significatives et un respect total de l'environnement.
Avec sept versions différentes disponibles, allant de deux à quatre chambres, et une multitude d'options de personnalisation, la Montivilliere est la promesse d'une maison qui s'adapte parfaitement à vos besoins et à votre style de vie. Que vous rêviez d'une demeure cosy de 72 m² ou d'un espace plus vaste de 127 m², ce modèle offre une flexibilité inégalée pour créer le foyer de vos rêves.
Ne manquez pas l'opportunité de vous offrir cette maison neuve, symbole d'un mode de vie moderne, confortable et responsable. La Montivilliere vous attend pour commencer un nouveau chapitre de votre vie dans un cadre exceptionnel. Contactez-nous dès maintenant pour plus d'informations et laissez-vous séduire par le charme et les avantages de cette magnifique propriété.
Référence : 7886
Les informations sur les risques auxquels ce bien est exposé sont disponibles sur le site Géorisques : www.georisques.gouv.fr
- Prix
-
- Prix total : 190 212 €
- Prix du modèle de maison : 148 212 €
- Prix du terrain : 42 000 €
- Terrain
-
- Surface : 787 m²
- Maison
-
- Surface : 79 m²
- Pièces : 3
- Chambres : 2
- Être rappelé par un conseiller
- Demander plus d’infos
- Demande d'information
Mesnières-en-Bray (76270)
Maisons à proximité
Maison neuve, 113 m²
Mesnières-en-Bray (76270)
Mesnières-en-Bray (76270)
Maison de 5 pièces
Maison neuve, 48,49 m²
Mesnières-en-Bray (76270)
Mesnières-en-Bray (76270)
Maison de 3 pièces
Maison neuve, 90 m²
Mesnières-en-Bray (76270)
Mesnières-en-Bray (76270)
Maison de 4 pièces
Maison neuve, 95 m²
Mesnières-en-Bray (76270)
Mesnières-en-Bray (76270)
Maison de 4 pièces
Maison neuve, 93 m²
Mesnières-en-Bray (76270)
Mesnières-en-Bray (76270)
Maison de 4 pièces
Maison neuve, 94,66 m²
Mesnières-en-Bray (76270)
Mesnières-en-Bray (76270)
Maison de 5 pièces
Programmes à proximité
BELCI
Buchy (76750)
Buchy (76750)
Appartements de 3 à 4 pièces
Livraison 2ème trimestre 2027
Contacter MAISONS CLEROISES AGENCE DE QUINCAMPOIX pour recevoir plus d'informations
Remplissez le formulaire ci-dessous, vos informations sont transmises directement au constructeur qui vous contactera par email ou par téléphone afin de traiter votre demande. En savoir plus.
Voir tous nos programmes immobiliers neufs à Mesnières-en-Bray