Maison neuve, 110 m² - Melesse (35520)

390 000 €
Melesse (35520)

Proposée par MAISONS DE L'AVENIR – 5 pièces - 4 chambres - terrain 388 m²

MAISONS DE L'AVENIR
MAISONS DE L'AVENIR
(96 avis)
  • Demande d'information
MAISON À CONSTRUIRE : ceci est une annonce d'une maison neuve à construire.
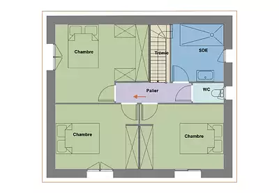
VENTE d'une maison T5 (110 m²) à Melesse
Proche de Rennes - En vente à Melesse (35520) : maison neuve 5 pièces de 110 m² sur un terrain de 388 m². Elle inclut quatre chambres, une cuisine et deux salles de bains.
Cette maison de 5 pièces est à vendre pour la somme de 390 000 €.
. Maisons de l'Avenir Cesson-Sévigné vous accompagne à toutes les étapes de votre projet et dans tous vos projets immobiliers.
Référence : CR2364872_4
Maisons de l’Avenir, constructeur de maisons individuelles, propose en collaboration avec ses partenaires fonciers, une sélection de terrains constructibles, selon disponibilité, pour la construction de maisons neuves définies par le constructeur, avec un contrat de construction de maison individuelle, dans le cadre de la loi du 19/12/1990. Prix net, hors frais notariés, d'enregistrement et de publicité foncière
Terrain proposé au prix de : 133 000 €
Maison proposée au prix de : 257 000 €
Etiquette énergie : A. Assurances et garanties du constructeur (RC professionnelle, décennale, dommage ouvrage, Garantie de livraison à prix et délai convenu).


Les informations sur les risques auxquels ce bien est exposé sont disponibles sur le site Géorisques : www.georisques.gouv.fr


Prix
  • Prix total : 390 000 €
  • Prix du modèle de maison : 257 000 €
  • Prix du terrain : 133 000 €

Terrain
  • Surface : 388 m²

Maison
  • Surface : 110 m²
  • Pièces : 5
  • Chambres : 4
  • Garage : 1

  • Être rappelé par un conseiller
  • Demander plus d’infos
  • Demande d'information
Melesse (35520)

Programmes à proximité

INAKA
INAKA
La Mézière (35520)

Appartements de 1 à 3 pièces
Livraison 1er trimestre 2028

ECLAT
ECLAT
Chevaigné (35250)

Appartements de 3 pièces
Livraison 2ème trimestre 2024

Millesens
Millesens
La Chapelle-des-Fougeretz (35520)

Appartement de 3 pièces
Livraison 1er trimestre 2025

AMBRE
AMBRE
La Chapelle-des-Fougeretz (35520)

Appartements de 2 à 3 pièces
Livraison 4ème trimestre 2025

Opale
Opale
Betton (35830)

Appartements de 2 à 3 pièces
Livraison 4ème trimestre 2026

Le Carrousel
Le Carrousel
Gévezé (35850)

Appartements de 2 à 4 pièces
Livraison 1er trimestre 2027

Contacter MAISONS DE L'AVENIR pour recevoir plus d'informations

Remplissez le formulaire ci-dessous, vos informations sont transmises directement au constructeur qui vous contactera par email ou par téléphone afin de traiter votre demande. En savoir plus.

Voir tous nos programmes immobiliers neufs à Melesse