Maison neuve, 66 m² - Médis (17600)
217 100 €
Médis (17600)
Proposée par ELYSEES OCEAN – 3 pièces - 2 chambres - terrain 467 m²
|
|
| Elysees Ocean |
- Demande d'information
- Prendre rendez-vous
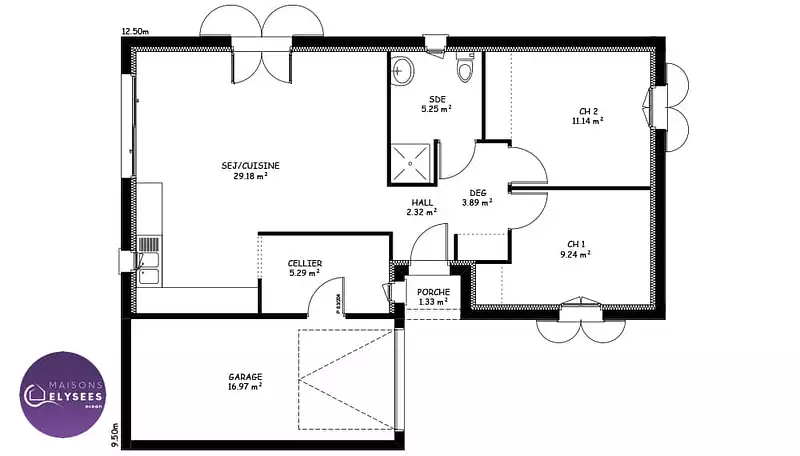
MAISON À CONSTRUIRE : ceci est une annonce d'une maison neuve à construire.
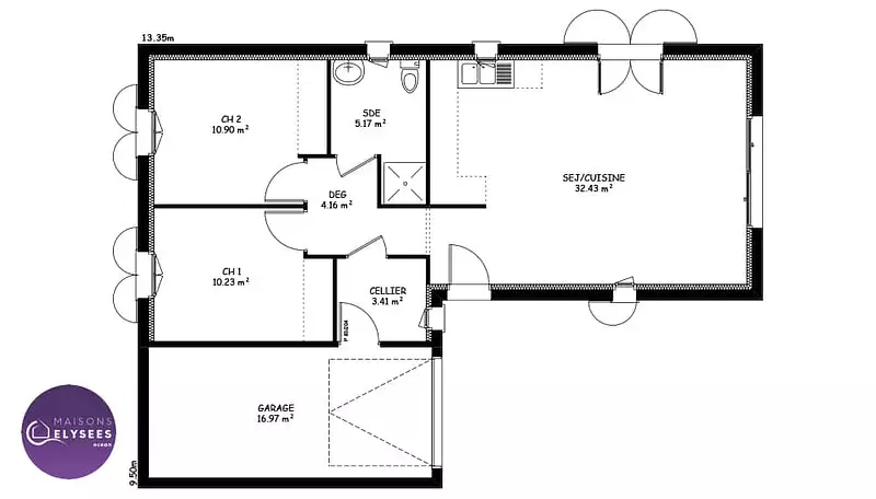
Sur ce terrain, nous vous proposons cette maison neuve, modèle Elena, construite par Elysees Ocean, le constructeur avec les meilleurs avis clients de la profession.
Avec son porche généreux, cette maison flatte l’œil et accueille le visiteur à l’abri. Son plan en L, très recherché, permet d'offrir une vaste pièce de vie conviviale bien séparée de l'espace nuit. Que l'on entre sur le terrain par le nord ou le sud, le séjour sera toujours du côté du soleil.
Cette maison de 66 m² dispose de 3 pièces, dont 2 chambres, et offre un rapport qualité/prix exceptionnel. Le grand séjour lumineux est parfait pour des moments de détente en famille ou entre amis. Le garage accolé et le porche d'entrée ajoutent à la praticité et au charme de cette maison.
Les options les plus demandées par nos clients, comme la suite parentale, peuvent être intégrées pour répondre à vos besoins spécifiques. De plus, cette maison neuve est basse consommation et conforme à la RE2020, garantissant des économies d'énergie et un confort optimal tout au long de l'année.
Ne manquez pas cette opportunité unique de devenir propriétaire d'une maison moderne, fonctionnelle et respectueuse de l'environnement. Contactez-nous dès maintenant pour plus d'informations et pour planifier une visite.
Référence : 24666
Les informations sur les risques auxquels ce bien est exposé sont disponibles sur le site Géorisques : www.georisques.gouv.fr
Avec son porche généreux, cette maison flatte l’œil et accueille le visiteur à l’abri. Son plan en L, très recherché, permet d'offrir une vaste pièce de vie conviviale bien séparée de l'espace nuit. Que l'on entre sur le terrain par le nord ou le sud, le séjour sera toujours du côté du soleil.
Cette maison de 66 m² dispose de 3 pièces, dont 2 chambres, et offre un rapport qualité/prix exceptionnel. Le grand séjour lumineux est parfait pour des moments de détente en famille ou entre amis. Le garage accolé et le porche d'entrée ajoutent à la praticité et au charme de cette maison.
Les options les plus demandées par nos clients, comme la suite parentale, peuvent être intégrées pour répondre à vos besoins spécifiques. De plus, cette maison neuve est basse consommation et conforme à la RE2020, garantissant des économies d'énergie et un confort optimal tout au long de l'année.
Ne manquez pas cette opportunité unique de devenir propriétaire d'une maison moderne, fonctionnelle et respectueuse de l'environnement. Contactez-nous dès maintenant pour plus d'informations et pour planifier une visite.
Référence : 24666
Les informations sur les risques auxquels ce bien est exposé sont disponibles sur le site Géorisques : www.georisques.gouv.fr
- Prix
-
- Prix total : 217 100 €
- Prix du modèle de maison : 133 100 €
- Prix du terrain : 84 000 €
- Terrain
-
- Surface : 467 m²
- Maison
-
- Surface : 66 m²
- Pièces : 3
- Chambres : 2
- Être rappelé par un conseiller
- Demander plus d’infos
- Demande d'information
Médis (17600)
Maisons à proximité
Maison neuve, 90 m²
Médis (17600)
Médis (17600)
Maison de 4 pièces
Maison neuve, 66 m²
Médis (17600)
Médis (17600)
Maison de 3 pièces
Maison neuve, 91 m²
Médis (17600)
Médis (17600)
Maison de 4 pièces
Maison neuve, 80 m²
Médis (17600)
Médis (17600)
Maison de 4 pièces
Maison neuve, 74 m²
Médis (17600)
Médis (17600)
Maison de 4 pièces
Maison neuve, 85 m²
Médis (17600)
Médis (17600)
Maison de 4 pièces
Programmes à proximité
OPHELIA
Saint-Georges-de-Didonne (17110)
Saint-Georges-de-Didonne (17110)
Appartements de 3 pièces
Livraison 1er trimestre 2026
L'Éclat Marin
Royan (17200)
Royan (17200)
Appartements de 2 à 4 pièces et maisons de 4 pièces
Horizon
Royan (17200)
Royan (17200)
Appartements de 1 à 4 pièces
Livraison 3ème trimestre 2028
LES HAUBANS
La Tremblade (17390)
La Tremblade (17390)
Appartement de 4 pièces
Livraison 4ème trimestre 2024
NACRÉA
La Tremblade (17390)
La Tremblade (17390)
Appartements de 1 à 4 pièces
Livraison 1er trimestre 2028
Contacter ELYSEES OCEAN pour recevoir plus d'informations
Remplissez le formulaire ci-dessous, vos informations sont transmises directement au constructeur qui vous contactera par email ou par téléphone afin de traiter votre demande. En savoir plus.