Maison neuve, 95 m² - Mazères (09270)
223 166 €
Mazères (09270)
Proposée par MAISONS FRANCE CONFORT – 5 pièces - 4 chambres - terrain 472 m²
|
|
| MAISONS FRANCE CONFORT |
| (42 avis) |
- Demande d'information
- Prendre rendez-vous
MAISON À CONSTRUIRE : ceci est une annonce d'une maison neuve à construire.
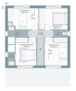
Avec Maisons France Confort Pamiers, devenez propriétaire de cette charmante maison à étage de 96 m2 pour 223 166 € Hors frais, sur un terrain de 472 m² sur la commune de Mazères. Vous allez apprécier son ingénieuse adaptabilité. Elle se compose en rez de chaussée, d'un espace de vie de 33m2 avec entrée, wc, cellier et cuisine ouverte contiguë au garage de 15m2. A l'étage, la partie nuit avec salle de bains, wc séparés et quatre chambres de 10 à 11 m2. Pour rendre votre projet unique, il est totalement personnalisable : les plans, le niveau de prestations, le système de chauffage, tout est possible, vous décidez suivant vos envies et votre budget. Maisons France Confort vous offre dans votre contrat de construction de maison individuelle toutes les garanties. Faites maintenant le choix du 1er constructeur en Midi Pyrénées pour un accompagnement de haute qualité à toutes les étapes de votre projet et un résultat optimal. .
Annonce proposée par un Agent Commercial Partenaire.
Référence : FA2291797_4
Terrain proposé par un partenaire foncier selon disponibilités et autorisation de publicité au prix de 52 500 €. Hors droit d'enregistrement et frais de notaire. Maison proposée, avec un contrat de construction de maison individuelle, dans le cadre de la loi du 19/12/1990, au prix de 170 666 € (Hors branchements et raccordements, papiers peints, peintures, revêtement de sol dans les chambres, qui sont chiffrés dans les travaux qui restent à charge du client. Tarif modifiable sans préavis). Étiquette énergie : A. Différents modèles disponibles pour ce terrain. Assurances et garanties du constructeur comprises (RC professionnelle, décennale, dommage ouvrage).
Les informations sur les risques auxquels ce bien est exposé sont disponibles sur le site Géorisques : www.georisques.gouv.fr
Annonce proposée par un Agent Commercial Partenaire.
Référence : FA2291797_4
Terrain proposé par un partenaire foncier selon disponibilités et autorisation de publicité au prix de 52 500 €. Hors droit d'enregistrement et frais de notaire. Maison proposée, avec un contrat de construction de maison individuelle, dans le cadre de la loi du 19/12/1990, au prix de 170 666 € (Hors branchements et raccordements, papiers peints, peintures, revêtement de sol dans les chambres, qui sont chiffrés dans les travaux qui restent à charge du client. Tarif modifiable sans préavis). Étiquette énergie : A. Différents modèles disponibles pour ce terrain. Assurances et garanties du constructeur comprises (RC professionnelle, décennale, dommage ouvrage).
Les informations sur les risques auxquels ce bien est exposé sont disponibles sur le site Géorisques : www.georisques.gouv.fr
- Prix
-
- Prix total : 223 166 €
- Prix du modèle de maison : 170 666 €
- Prix du terrain : 52 500 €
- Terrain
-
- Surface : 472 m²
- Maison
-
- Surface : 95 m²
- Pièces : 5
- Chambres : 4
- Garage : 1
- Être rappelé par un conseiller
- Demander plus d’infos
- Demande d'information
Mazères (09270)
Maisons à proximité
Maison neuve, 85 m²
Mazères (09270)
Mazères (09270)
Maison de 4 pièces
Maison neuve, 83 m²
Mazères (09270)
Mazères (09270)
Maison de 5 pièces
Maison neuve, 84 m²
Mazères (09270)
Mazères (09270)
Maison de 5 pièces
Maison neuve, 73 m²
Mazères (09270)
Mazères (09270)
Maison de 4 pièces
Maison neuve, 101 m²
Mazères (09270)
Mazères (09270)
Maison de 5 pièces
Maison neuve, 85 m²
Mazères (09270)
Mazères (09270)
Maison de 4 pièces
Programmes à proximité
DOMAINE CASTEL ROCH
Castelnaudary (11400)
Castelnaudary (11400)
Appartements de 2 à 3 pièces et maisons de 4 pièces
Livraison 2ème trimestre 2026
Contacter MAISONS FRANCE CONFORT pour recevoir plus d'informations
Remplissez le formulaire ci-dessous, vos informations sont transmises directement au constructeur qui vous contactera par email ou par téléphone afin de traiter votre demande. En savoir plus.