Maison neuve, 132 m² - Martainville (27210)

294 000 €
Martainville (27210)

Proposée par MAISONS FRANCE CONFORT – 5 pièces - 3 chambres - terrain 1 000 m²

MAISONS FRANCE CONFORT
MAISONS FRANCE CONFORT
  • Demande d'information
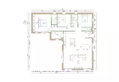
MAISON À CONSTRUIRE : ceci est une annonce d'une maison neuve à construire.
Maisons France confort vous propose ce plain pied de 136m²
Il se compose d'une entée avec placard, une immense pièce de vie de 68m², un cellier attenant à la cuisine.
un espace nuit de 2 chambres avec salle de bain et d'une suite parentale de 24m² avec dressing et salle de bain privative. Référence : AV2276708_2
Terrain proposé par un partenaire foncier selon disponibilités et autorisation de publicité au prix de 49 000 €. Hors droit d'enregistrement et frais de notaire. Maison proposée, avec un contrat de construction de maison individuelle, dans le cadre de la loi du 19/12/1990, au prix de 245 000 € (Hors branchements et raccordements, papiers peints, peintures, revêtement de sol dans les chambres, qui sont chiffrés dans les travaux qui restent à charge du client. Tarif modifiable sans préavis). Étiquette énergie : A. Différents modèles disponibles pour ce terrain. Assurances et garanties du constructeur comprises (RC professionnelle, décennale, dommage ouvrage).

Les informations sur les risques auxquels ce bien est exposé sont disponibles sur le site Géorisques : www.georisques.gouv.fr


Prix
  • Prix total : 294 000 €
  • Prix du modèle de maison : 245 000 €
  • Prix du terrain : 49 000 €

Terrain
  • Surface : 1 000 m²

Maison
  • Surface : 132 m²
  • Pièces : 5
  • Chambres : 3

  • Être rappelé par un conseiller
  • Demander plus d’infos
  • Demande d'information
Martainville (27210)

Programmes à proximité

Le Coteau de Grâce
Le Coteau de Grâce
La Rivière-Saint-Sauveur (14600)

Appartements de 2 à 3 pièces
Livraison 3ème trimestre 2027

Proche de Honfleur !
Proche de Honfleur !
Equemauville (14600)

Appartements de 1 à 3 pièces et maisons de 4 à 5 pièces
Livraison 4ème trimestre 2027

Sémaphore
Sémaphore
Honfleur (14600)

Appartements de 3 pièces et maison de 4 pièces
Livraison 4ème trimestre 2024

SEA'SIDE
SEA'SIDE
Touques (14800)

Appartements de 2 à 3 pièces
Livraison 3ème trimestre 2026

Cadence
Cadence
Deauville (14800)

Appartements de 2 à 4 pièces
Livraison 3ème trimestre 2026

Contacter MAISONS FRANCE CONFORT pour recevoir plus d'informations

Remplissez le formulaire ci-dessous, vos informations sont transmises directement au constructeur qui vous contactera par email ou par téléphone afin de traiter votre demande. En savoir plus.

Voir tous nos programmes immobiliers neufs à Martainville