Maison neuve, 76 m² - Marsac-sur-l'Isle (24430)
214 000 €
Marsac-sur-l'Isle (24430)
Proposée par MAISONS OMEGA AGENCE DE PÉRIGUEUX – 3 pièces - 2 chambres - terrain 1 000 m²
|
|
| Maisons Omega Agence de Périgueux |
| (17 avis) |
- Demande d'information
- Prendre rendez-vous
MAISON À CONSTRUIRE : ceci est une annonce d'une maison neuve à construire.
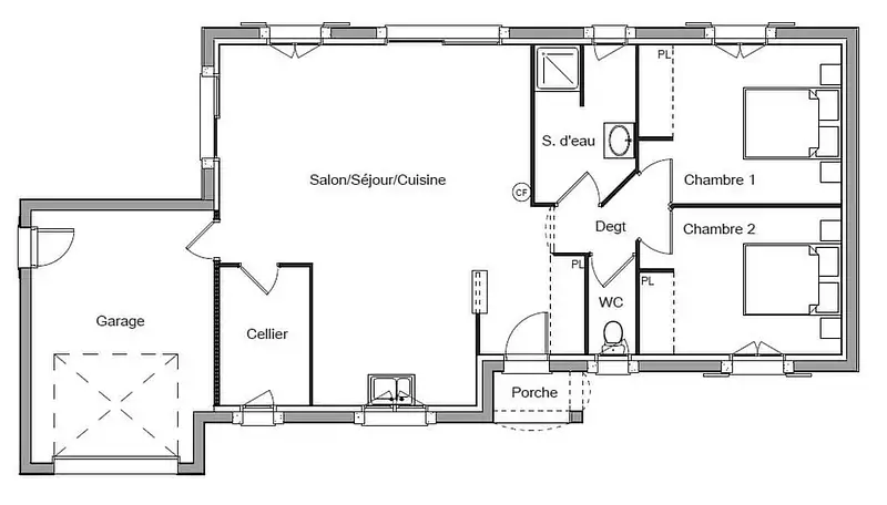
Sur ce terrain, nous vous proposons cette maison neuve : le modèle Ares, une jolie maison traditionnelle fonctionnelle. Conçue par Maisons Omega, détenteur du label Maisons de Qualité, cette habitation est idéale pour une petite famille de primo-accédants ou de jeunes retraités.
Avec une surface de 76 m², cette maison de plain-pied offre tout le confort nécessaire à votre bien-être. Vous y trouverez deux chambres spacieuses, une cuisine ouverte sur une vaste pièce de vie, une salle d'eau et des WC séparés. Un cellier pratique et un garage accolé viennent compléter les prestations de cette maison.
Le modèle Ares se distingue par son charme traditionnel, coiffé d'un toit en tuiles à deux pans ou quatre pans, selon vos préférences. De jolis volets et un revêtement bi-tons agrémentent sa façade, ajoutant une touche esthétique à l'ensemble.
Cette maison neuve est également basse consommation et conforme à la réglementation environnementale RE2020, vous garantissant des économies d'énergie et un confort optimal tout au long de l'année.
Si vous recherchez une maison de dimension raisonnable tout en bénéficiant d'un maximum de confort, le modèle Ares est fait pour vous. N'hésitez pas à prendre contact avec un de nos conseillers en agence pour obtenir plus d'informations sur cette opportunité unique
Référence : 12978
Les informations sur les risques auxquels ce bien est exposé sont disponibles sur le site Géorisques : www.georisques.gouv.fr
Avec une surface de 76 m², cette maison de plain-pied offre tout le confort nécessaire à votre bien-être. Vous y trouverez deux chambres spacieuses, une cuisine ouverte sur une vaste pièce de vie, une salle d'eau et des WC séparés. Un cellier pratique et un garage accolé viennent compléter les prestations de cette maison.
Le modèle Ares se distingue par son charme traditionnel, coiffé d'un toit en tuiles à deux pans ou quatre pans, selon vos préférences. De jolis volets et un revêtement bi-tons agrémentent sa façade, ajoutant une touche esthétique à l'ensemble.
Cette maison neuve est également basse consommation et conforme à la réglementation environnementale RE2020, vous garantissant des économies d'énergie et un confort optimal tout au long de l'année.
Si vous recherchez une maison de dimension raisonnable tout en bénéficiant d'un maximum de confort, le modèle Ares est fait pour vous. N'hésitez pas à prendre contact avec un de nos conseillers en agence pour obtenir plus d'informations sur cette opportunité unique
Référence : 12978
Les informations sur les risques auxquels ce bien est exposé sont disponibles sur le site Géorisques : www.georisques.gouv.fr
- Prix
-
- Prix total : 214 000 €
- Prix du modèle de maison : 159 000 €
- Prix du terrain : 55 000 €
- Terrain
-
- Surface : 1 000 m²
- Maison
-
- Surface : 76 m²
- Pièces : 3
- Chambres : 2
- Être rappelé par un conseiller
- Demander plus d’infos
- Demande d'information
Marsac-sur-l'Isle (24430)
Maisons à proximité
Maison neuve, 84 m²
Marsac-sur-l'Isle (24430)
Marsac-sur-l'Isle (24430)
Maison de 4 pièces
Maison neuve, 85 m²
Marsac-sur-l'Isle (24430)
Marsac-sur-l'Isle (24430)
Maison de 2 pièces
Maison neuve, 145 m²
Marsac-sur-l'Isle (24430)
Marsac-sur-l'Isle (24430)
Maison de 4 pièces
Maison neuve, 84 m²
Marsac-sur-l'Isle (24430)
Marsac-sur-l'Isle (24430)
Maison de 4 pièces
Maison neuve, 80 m²
Marsac-sur-l'Isle (24430)
Marsac-sur-l'Isle (24430)
Maison de 4 pièces
Maison neuve, 106 m²
Marsac-sur-l'Isle (24430)
Marsac-sur-l'Isle (24430)
Maison de 4 pièces
Programmes à proximité
Habitez à 5 min du centre-ville
Périgueux (24000)
Périgueux (24000)
Appartements de 2 à 4 pièces
Livraison 1er trimestre 2027
Contacter MAISONS OMEGA AGENCE DE PÉRIGUEUX pour recevoir plus d'informations
Remplissez le formulaire ci-dessous, vos informations sont transmises directement au constructeur qui vous contactera par email ou par téléphone afin de traiter votre demande. En savoir plus.
Voir tous nos programmes immobiliers neufs à Marsac-sur-l'Isle