Maison neuve, 107 m² - Marest-sur-matz (60490)

227 050 €
Marest-sur-matz (60490)

Proposée par BABEAU SEGUIN AGENCE DE BEAUVAIS – 5 pièces - 4 chambres - terrain 449 m²

Babeau Seguin Agence de Beauvais
Babeau Seguin Agence de Beauvais
  • Demande d'information
MAISON À CONSTRUIRE : ceci est une annonce d'une maison neuve à construire.
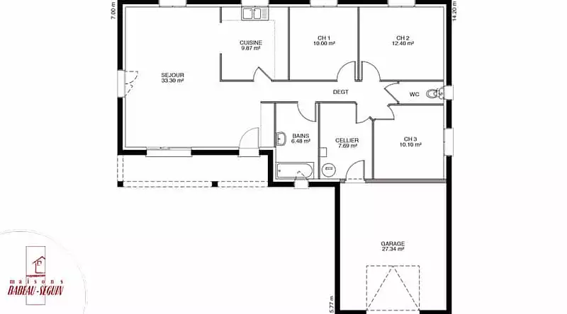
Sur ce terrain, nous vous proposons cette maison neuve, la Sauvetière, conçue par Babeau-Seguin, constructeur offrant le meilleur rapport qualité/prix du marché. Cette maison de 107 m², à classer sans nul doute dans la catégorie des maisons modernes, sera idéale pour votre famille.
La Sauvetière, une maison plain-pied traditionnelle, vous offre de base une vaste galerie et un garage accolé en rupture avec le volume principal de la construction. Son audacieux plan en forme de L, disponible en version 2 pans ou 4 pans, ne vous laissera pas indifférent.
Cette maison dispose de 4 chambres spacieuses et de 4 pièces, offrant un espace de vie confortable et fonctionnel. Le garage accolé permet un accès direct à la maison, facilitant ainsi votre quotidien.
L'un des atouts majeurs de la Sauvetière est sa basse consommation énergétique, conforme à la réglementation RE2020, garantissant des économies d'énergie et un confort optimal tout au long de l'année.
Ne manquez pas cette opportunité unique d'acquérir une maison moderne, économe en énergie et parfaitement adaptée à vos besoins. Contactez-nous dès maintenant pour plus d'informations et pour planifier une visite.
Référence : 92459

Les informations sur les risques auxquels ce bien est exposé sont disponibles sur le site Géorisques : www.georisques.gouv.fr


Prix
  • Prix total : 227 050 €
  • Prix du modèle de maison : 188 050 €
  • Prix du terrain : 39 000 €

Terrain
  • Surface : 449 m²

Maison
  • Surface : 107 m²
  • Pièces : 5
  • Chambres : 4

  • Être rappelé par un conseiller
  • Demander plus d’infos
  • Demande d'information
Marest-sur-matz (60490)

Programmes à proximité

Le Clos Venette
Le Clos Venette
Venette (60280)

Appartements de 2 à 4 pièces et maisons de 4 à 5 pièces
Livraison 4ème trimestre 2027

LA LISIÈRE
LA LISIÈRE
Compiègne (60200)

Appartement de 4 pièces
Livraison 4ème trimestre 2025

LES JARDINS DE JEZZINE
LES JARDINS DE JEZZINE
Compiègne (60200)

Appartements de 3 pièces et maisons de 5 pièces
Livraison 4ème trimestre 2027

CARRE MANSART
CARRE MANSART
Compiègne (60200)

Appartements de 2 à 4 pièces et local commercial
Livraison 4ème trimestre 2027

Contacter BABEAU SEGUIN AGENCE DE BEAUVAIS pour recevoir plus d'informations

Remplissez le formulaire ci-dessous, vos informations sont transmises directement au constructeur qui vous contactera par email ou par téléphone afin de traiter votre demande. En savoir plus.

Voir tous nos programmes immobiliers neufs à Marest-sur-Matz