Maison neuve, 90 m² - Marcy (69480)
475 000 €
Marcy (69480)
Proposée par MAISONS ARLOGIS VILLEFRANCHE – 5 pièces - terrain 1 500 m²
|
|
| MAISONS ARLOGIS VILLEFRANCHE |
| (233 avis) |
- Demande d'information
- Prendre rendez-vous
MAISON À CONSTRUIRE : ceci est une annonce d'une maison neuve à construire.
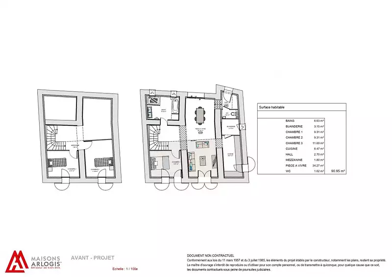
Rénovation d'une maison en pierres dorées de plain-pied de 90 m² (+ 5 m² hors loi Carrez) avec mezzanine, sur une parcelle d'environ 1500 m², non piscinable, arborée, dans un site au calme avec vue magnifique et dégagée.
***
Ce bien se compose d'une pièce à vivre de 43 m² s'ouvrant sur 2 terrasses est et ouest, de 3 chambres, d'une buanderie et d'un double garage de 50 m².
***
Ecole, commerces et services de proximité facilement accessibles.
***
Rénovation avec étiquette énergétique DPE B.
***
Maison vendue par VALDOR Anse/Mandat N°2015295
***
Projet en accord avec notre partenaire immobilier. Visuel d'illustration. Le modèle est totalement adaptable à vos envies et besoins et personnalisable grâce à de nombreuses options de finition. Nous consulter pour plus d’informations. Le prix affiché comprend le coût du terrain et de la construction hors frais de notaire et taxes. Les annonces de terrains constructibles sont sélectionnées auprès de nos partenaires fonciers selon disponibilités et autorisation de publicité en vue de construire une maison neuve avec un Contrat de Construction de Maison Individuelle dans le cadre de la loi du 19/12/1990. Ces derniers sont soit des professionnels dûment habilités à la transaction immobilière, soit des particuliers. Les terrains sélectionnés sont disponibles à la date de la première parution de l’annonce. En aucun cas Maisons ARLOGIS ou ses collaborateurs ne sont propriétaires des terrains, ne jouent un rôle d’intermédiation ou de négociation sur la transaction et ne participent à la vente. Prix indiqués par nos partenaires fonciers.
Les informations sur les risques auxquels ce bien est exposé sont disponibles sur le site Géorisques : www.georisques.gouv.fr
***
Ce bien se compose d'une pièce à vivre de 43 m² s'ouvrant sur 2 terrasses est et ouest, de 3 chambres, d'une buanderie et d'un double garage de 50 m².
***
Ecole, commerces et services de proximité facilement accessibles.
***
Rénovation avec étiquette énergétique DPE B.
***
Maison vendue par VALDOR Anse/Mandat N°2015295
***
Projet en accord avec notre partenaire immobilier. Visuel d'illustration. Le modèle est totalement adaptable à vos envies et besoins et personnalisable grâce à de nombreuses options de finition. Nous consulter pour plus d’informations. Le prix affiché comprend le coût du terrain et de la construction hors frais de notaire et taxes. Les annonces de terrains constructibles sont sélectionnées auprès de nos partenaires fonciers selon disponibilités et autorisation de publicité en vue de construire une maison neuve avec un Contrat de Construction de Maison Individuelle dans le cadre de la loi du 19/12/1990. Ces derniers sont soit des professionnels dûment habilités à la transaction immobilière, soit des particuliers. Les terrains sélectionnés sont disponibles à la date de la première parution de l’annonce. En aucun cas Maisons ARLOGIS ou ses collaborateurs ne sont propriétaires des terrains, ne jouent un rôle d’intermédiation ou de négociation sur la transaction et ne participent à la vente. Prix indiqués par nos partenaires fonciers.
Les informations sur les risques auxquels ce bien est exposé sont disponibles sur le site Géorisques : www.georisques.gouv.fr
- Prix
-
- Prix total : 475 000 €
- Prix du modèle de maison : N.C.
- Prix du terrain : N.C.
- Terrain
-
- Surface : 1 500 m²
- Maison
-
- Surface : 90 m²
- Pièces : 5
- Être rappelé par un conseiller
- Demander plus d’infos
- Demande d'information
Marcy (69480)
Maisons à proximité
Maison neuve, 90 m²
Marcy (69480)
Marcy (69480)
Maison de 5 pièces
Maison neuve, 120 m²
Marcy (69480)
Marcy (69480)
Maison de 5 pièces
Maison neuve, 123 m²
Marcy (69480)
Marcy (69480)
Maison de 6 pièces
Maison neuve, 140 m²
Marcy (69480)
Marcy (69480)
Maison de 6 pièces
Maison neuve, 120 m²
Marcy (69480)
Marcy (69480)
Maison de 6 pièces
Maison neuve, 100 m²
Marcy (69480)
Marcy (69480)
Maison de 5 pièces
Programmes à proximité
Les Jardins de la Citadelle
Trévoux (01600)
Trévoux (01600)
Appartements de 2 à 4 pièces
Livraison 4ème trimestre 2028
ARPÈGE
Chasselay (69380)
Chasselay (69380)
Appartements de 2 à 4 pièces
Prélude
Villefranche-sur-Saône (69400)
Villefranche-sur-Saône (69400)
Appartements de 2 à 5 pièces
Livraison 2ème trimestre 2027
Les Loges du Parc
Villefranche-sur-Saône (69400)
Villefranche-sur-Saône (69400)
Appartements de 2 à 4 pièces
Livraison 4ème trimestre 2028
RIVE GAUCHE 2
Jassans-Riottier (01480)
Jassans-Riottier (01480)
Appartements de 2 à 4 pièces
RIVE GAUCHE
Jassans-Riottier (01480)
Jassans-Riottier (01480)
Appartements de 2 à 4 pièces
Contacter MAISONS ARLOGIS VILLEFRANCHE pour recevoir plus d'informations
Remplissez le formulaire ci-dessous, vos informations sont transmises directement au constructeur qui vous contactera par email ou par téléphone afin de traiter votre demande. En savoir plus.