Maison neuve, 89 m² - Manthelan (37240)
222 450 €
Manthelan (37240)
Proposée par CONSTRUCTIONS IDEALE DEMEURE – 4 pièces - 2 chambres - terrain 627 m²
|
|
| CONSTRUCTIONS IDEALE DEMEURE |
- Demande d'information
- Prendre rendez-vous
MAISON À CONSTRUIRE : ceci est une annonce d'une maison neuve à construire.
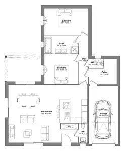
Voici une belle maison de 89m² à construire, offrant une grande pièce de vie lumineuse grâce à sa triple exposition. Elle comprend deux chambres confortables, une salle de bain équipée d'une douche et d'une baignoire, ainsi qu'un grand garage. Un atout majeur de cette maison est sa terrasse couverte, idéale pour profiter de l'extérieur en toute saison. De plus, elle est entièrement personnalisable selon vos envies et besoins.
Je reste disponible pour toutes demandes de renseignements, n'hésitez pas me contacter : Stéphane Digneton : °6.64.92.89.69.
CONSTRUCTIONS IDEALE DEMEURE a sélectionné avec un partenaire foncier un terrain pour construire cette maison.
Référence : SD2330246_1
Terrain proposé par un partenaire foncier selon disponibilités et autorisation de publicité au prix de 48 900 €. Hors droit d'enregistrement et frais de notaire. Maison proposée, avec un contrat de construction de maison individuelle, dans le cadre de la loi du 19/12/1990, au prix de 173 550 € (Hors branchements et raccordements, papiers peints, peintures, revêtement de sol dans les chambres, qui sont chiffrés dans les travaux qui restent à charge du client. Tarif modifiable sans préavis). Étiquette énergie : A. Différents modèles disponibles pour ce terrain. Assurances et garanties du constructeur comprises (RC professionnelle, décennale, dommage ouvrage).
Les informations sur les risques auxquels ce bien est exposé sont disponibles sur le site Géorisques : www.georisques.gouv.fr
Je reste disponible pour toutes demandes de renseignements, n'hésitez pas me contacter : Stéphane Digneton : °6.64.92.89.69.
CONSTRUCTIONS IDEALE DEMEURE a sélectionné avec un partenaire foncier un terrain pour construire cette maison.
Référence : SD2330246_1
Terrain proposé par un partenaire foncier selon disponibilités et autorisation de publicité au prix de 48 900 €. Hors droit d'enregistrement et frais de notaire. Maison proposée, avec un contrat de construction de maison individuelle, dans le cadre de la loi du 19/12/1990, au prix de 173 550 € (Hors branchements et raccordements, papiers peints, peintures, revêtement de sol dans les chambres, qui sont chiffrés dans les travaux qui restent à charge du client. Tarif modifiable sans préavis). Étiquette énergie : A. Différents modèles disponibles pour ce terrain. Assurances et garanties du constructeur comprises (RC professionnelle, décennale, dommage ouvrage).
Les informations sur les risques auxquels ce bien est exposé sont disponibles sur le site Géorisques : www.georisques.gouv.fr
- Prix
-
- Prix total : 222 450 €
- Prix du modèle de maison : 173 550 €
- Prix du terrain : 48 900 €
- Terrain
-
- Surface : 627 m²
- Maison
-
- Surface : 89 m²
- Pièces : 4
- Chambres : 2
- Garage : 1
- Être rappelé par un conseiller
- Demander plus d’infos
- Demande d'information
Manthelan (37240)
Maisons à proximité
Maison neuve, 73 m²
Manthelan (37240)
Manthelan (37240)
Maison de 4 pièces
Maison neuve, 94 m²
Manthelan (37240)
Manthelan (37240)
Maison de 5 pièces
Maison neuve, 78 m²
Manthelan (37240)
Manthelan (37240)
Maison de 3 pièces
Maison neuve, 203 m²
Manthelan (37240)
Manthelan (37240)
Maison de 6 pièces
Maison neuve, 150 m²
Manthelan (37240)
Manthelan (37240)
Maison de 6 pièces
Maison neuve, 80 m²
Manthelan (37240)
Manthelan (37240)
Maison de 4 pièces
Programmes à proximité
CALICIA
Sorigny (37250)
Sorigny (37250)
Appartements de 1 à 3 pièces
Livraison 1er trimestre 2027
Contacter CONSTRUCTIONS IDEALE DEMEURE pour recevoir plus d'informations
Remplissez le formulaire ci-dessous, vos informations sont transmises directement au constructeur qui vous contactera par email ou par téléphone afin de traiter votre demande. En savoir plus.