Maison neuve, 88 m² - Lubersac (19210)
153 586 €
Lubersac (19210)
Proposée par BABEAU SEGUIN AGENCE DE BRIVE LA GAILLARDE – CORRE – 4 pièces - 3 chambres - terrain 2 950 m²
|
|
| Babeau Seguin Agence de Brive la Gaillarde – Corre |
- Demande d'information
- Prendre rendez-vous
MAISON À CONSTRUIRE : ceci est une annonce d'une maison neuve à construire.
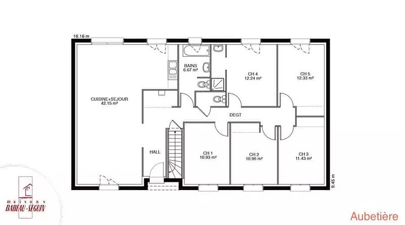
Sur ce terrain, nous vous proposons cette maison neuve Aubetière, un modèle traditionnel de la gamme Babeau-Seguin, constructeur reconnu pour offrir le meilleur rapport qualité/prix du marché. Avec une surface de 88 m², cette maison de plain-pied se compose de 4 pièces, dont 3 chambres spacieuses, idéales pour accueillir toute votre famille.
L'Aubetière se distingue par son excellent rapport qualité/prix et sa conformité aux normes RE2020, garantissant une basse consommation énergétique. Vous avez la possibilité de personnaliser votre maison en choisissant entre un toit à 2 pans ou à 4 pans, ainsi qu'en ajoutant un garage ou un sous-sol selon vos besoins.
Cette maison moderne et fonctionnelle est conçue pour s'adapter à vos envies et à votre mode de vie. Profitez de la flexibilité offerte par les nombreux plans et déclinaisons disponibles pour créer votre maison individuelle sur mesure.
Ne manquez pas cette opportunité de donner vie à votre projet de construction avec le modèle Aubetière, une maison neuve qui allie confort, économie d'énergie et personnalisation. Contactez-nous dès maintenant pour plus d'informations et pour découvrir toutes les options disponibles pour votre future maison.
Référence : 90684
Les informations sur les risques auxquels ce bien est exposé sont disponibles sur le site Géorisques : www.georisques.gouv.fr
L'Aubetière se distingue par son excellent rapport qualité/prix et sa conformité aux normes RE2020, garantissant une basse consommation énergétique. Vous avez la possibilité de personnaliser votre maison en choisissant entre un toit à 2 pans ou à 4 pans, ainsi qu'en ajoutant un garage ou un sous-sol selon vos besoins.
Cette maison moderne et fonctionnelle est conçue pour s'adapter à vos envies et à votre mode de vie. Profitez de la flexibilité offerte par les nombreux plans et déclinaisons disponibles pour créer votre maison individuelle sur mesure.
Ne manquez pas cette opportunité de donner vie à votre projet de construction avec le modèle Aubetière, une maison neuve qui allie confort, économie d'énergie et personnalisation. Contactez-nous dès maintenant pour plus d'informations et pour découvrir toutes les options disponibles pour votre future maison.
Référence : 90684
Les informations sur les risques auxquels ce bien est exposé sont disponibles sur le site Géorisques : www.georisques.gouv.fr
- Prix
-
- Prix total : 153 586 €
- Prix du modèle de maison : 135 436 €
- Prix du terrain : 18 150 €
- Terrain
-
- Surface : 2 950 m²
- Maison
-
- Surface : 88 m²
- Pièces : 4
- Chambres : 3
- Être rappelé par un conseiller
- Demander plus d’infos
- Demande d'information
Lubersac (19210)
Maisons à proximité
Maison neuve, 96 m²
Lubersac (19210)
Lubersac (19210)
Maison de 5 pièces
Maison neuve, 79 m²
Lubersac (19210)
Lubersac (19210)
Maison de 4 pièces
Maison neuve, 88 m²
Saint-Pardoux-Corbier (19210)
Saint-Pardoux-Corbier (19210)
Maison de 4 pièces
Maison neuve, 95 m²
Arnac-Pompadour (19230)
Arnac-Pompadour (19230)
Maison de 5 pièces
Maison neuve, 74 m²
Troche (19230)
Troche (19230)
Maison de 4 pièces
Maison neuve, 73 m²
Saint-Sornin-Lavolps (19230)
Saint-Sornin-Lavolps (19230)
Maison de 5 pièces
Programmes à proximité
Contacter BABEAU SEGUIN AGENCE DE BRIVE LA GAILLARDE – CORRE pour recevoir plus d'informations
Remplissez le formulaire ci-dessous, vos informations sont transmises directement au constructeur qui vous contactera par email ou par téléphone afin de traiter votre demande. En savoir plus.