Maison neuve, 124 m² - Lorgues (83510)

485 000 €
Lorgues (83510)

Proposée par PCA MAISONS – 2 pièces - 4 chambres - terrain 1 882 m²

PCA MAISONS
PCA MAISONS
  • Demande d'information
MAISON À CONSTRUIRE : ceci est une annonce d'une maison neuve à construire.
Au coeur de la Provence verte, laissez vous séduire par Lorgues, une commune authentique et prisée, réputée pour son art de vivre, son charme provençal et son environnement naturel préservé. Entre vignes, collines verdoyantes et ruelles pleines de caractère, Lorgues offre un cadre de vie rare, alliant calme, convivialité et qualité de vie.
C'est dans ce décor privilégié que PCA MAISONS vous propose un superbe projet Terrain + Maison, idéalement implanté dans un environnement verdoyant et paisible, propice au bien-être et à la sérénité du quotidien.
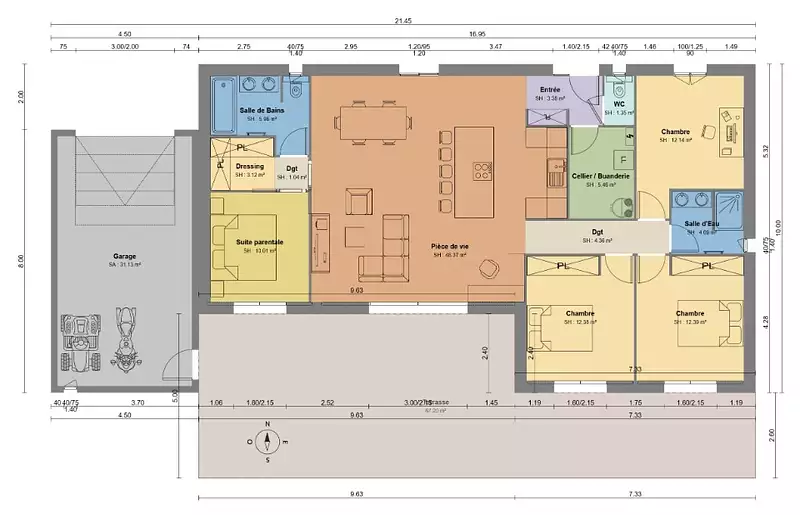
La maison, de plain-pied, a été pensée pour offrir confort, fonctionnalité et luminosité. Avec une surface habitable de 124 m², elle propose de beaux volumes, parfaitement adaptés à la vie de famille comme aux moments de détente. Son emprise au sol de 188 m² permet une architecture harmonieuse, élégante et parfaitement intégrée à son terrain.
Terrain + maison en RE2020 = 485000 €*
* Hors frais de notaire Hors terrassement Taxes annexes *
Le jardin, véritable écrin de verdure, invite à profiter pleinement du climat provençal : repas en extérieur, moments de partage, instants de repos au calme... Ici, chaque journée prend des airs de vacances.
Vivre à Lorgues, c'est choisir :
un village dynamique avec ses marchés typiques, commerces et écoles
un accès rapide aux grands axes tout en restant à l'écart de l'agitation
un cadre naturel exceptionnel, entre mer et arrière-pays
Ce projet PCA MAISONS est bien plus qu'une maison : c'est une invitation à un nouveau mode de vie, où confort moderne et douceur provençale se rencontrent.
Nous réalisons ensemble votre projet SUR MESURE, 100 % personnalisable, vous dessinerez votre maison avec votre chargée de projet, selon vos envies, vos besoins et votre budget.
Toutes nos maisons sont livrées avec du carrelages 60 x 60 cm, 90 x 90 cm ou 120 x 120 cm, au sol dans toutes les pièces, sanitaires et faïences dans les pièces d'eau.
Vous pourrez choisir vos carrelages, faïence
Référence : AT2371894_1
Terrain proposé par un partenaire foncier selon disponibilités et autorisation de publicité au prix de 180 000 €. Hors droit d'enregistrement et frais de notaire. Maison proposée, avec un contrat de construction de maison individuelle, dans le cadre de la loi du 19/12/1990, au prix de 305 000 € (Hors branchements et raccordements, papiers peints, peintures, revêtement de sol dans les chambres, qui sont chiffrés dans les travaux qui restent à charge du client. Tarif modifiable sans préavis). Étiquette énergie : A. Différents modèles disponibles pour ce terrain. Assurances et garanties du constructeur comprises (RC professionnelle, décennale, dommage ouvrage).

Les informations sur les risques auxquels ce bien est exposé sont disponibles sur le site Géorisques : www.georisques.gouv.fr


Prix
  • Prix total : 485 000 €
  • Prix du modèle de maison : 305 000 €
  • Prix du terrain : 180 000 €

Terrain
  • Surface : 1 882 m²

Maison
  • Surface : 124 m²
  • Pièces : 2
  • Chambres : 4

  • Être rappelé par un conseiller
  • Demander plus d’infos
  • Demande d'information
Lorgues (83510)

Programmes à proximité

Les Terrasses du Dragon
Les Terrasses du Dragon
Draguignan (83300)

Appartements de 2 à 3 pièces
Livraison 1er trimestre 2028

Fleur du Nil
Fleur du Nil
Draguignan (83300)

Appartements de 2 à 3 pièces
Livraison 4ème trimestre 2026

Le domaine de la Fée
Le domaine de la Fée
Draguignan (83300)

Appartements de 2 pièces
Livraison 2ème trimestre 2026

Les Jardins de Novaia
Les Jardins de Novaia
Draguignan (83300)

Appartements de 2 à 3 pièces
Livraison 4ème trimestre 2027

Le Domaine des Tourdres
Le Domaine des Tourdres
Draguignan (83300)

Appartements de 3 à 4 pièces
Livraison 3ème trimestre 2029

Le Patio des Lys
Le Patio des Lys
Le Muy (83490)

Appartements de 2 à 4 pièces
Livraison 2ème trimestre 2027

Contacter PCA MAISONS pour recevoir plus d'informations

Remplissez le formulaire ci-dessous, vos informations sont transmises directement au constructeur qui vous contactera par email ou par téléphone afin de traiter votre demande. En savoir plus.

Voir tous nos programmes immobiliers neufs à Lorgues