Maison neuve, 105 m² - Longnes (72540)
255 000 €
Longnes (72540)
Proposée par MAINE CONSTRUCTION – 6 pièces - 4 chambres - terrain 592 m²
|
|
| Maine Construction |
- Demande d'information
- Prendre rendez-vous
MAISON À CONSTRUIRE : ceci est une annonce d'une maison neuve à construire.
Maison T6 (105 m²) en vente à Longnes
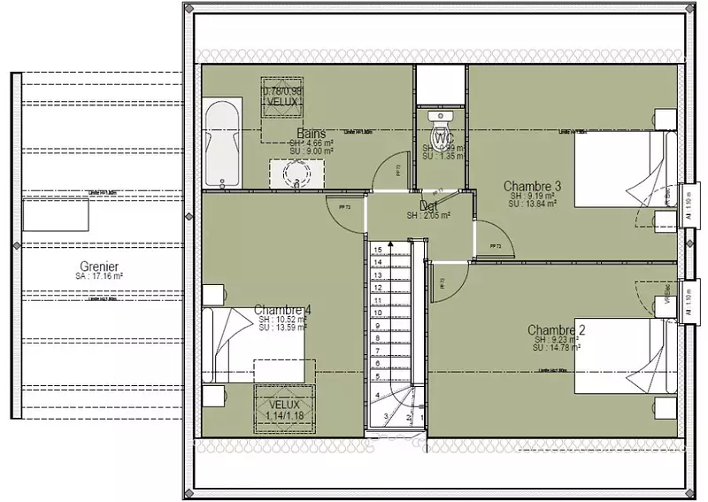
Proche du Mans - À Longnes (72540), maison neuve en vente de 6 pièces, 2 niveaux, 105 m² de surface et 592 m² de terrain. Elle est composée de quatre chambres, d'une cuisine et de deux salles de bains.
À proximité : École Élémentaire Publique. Accès autoroute A81 à 10 km.
Le prix de vente de cette maison de 6 pièces est de 255 000 €.
. Maine Construction Le Mans est là pour vous accompagner dans tous vos projets immobiliers.
Référence : LL2325738_5
Terrain proposé par un partenaire foncier selon disponibilités et autorisation de publicité au prix de 33 200 €. Hors droit d'enregistrement et frais de notaire. Maison proposée, avec un contrat de construction de maison individuelle, dans le cadre de la loi du 19/12/1990, au prix de 221 800 € (Hors branchements et raccordements, papiers peints, peintures, revêtement de sol dans les chambres, qui sont chiffrés dans les travaux qui restent à charge du client. Tarif modifiable sans préavis). Étiquette énergie : A. Différents modèles disponibles pour ce terrain. Assurances et garanties du constructeur comprises (RC professionnelle, décennale, dommage ouvrage).
Les informations sur les risques auxquels ce bien est exposé sont disponibles sur le site Géorisques : www.georisques.gouv.fr
Proche du Mans - À Longnes (72540), maison neuve en vente de 6 pièces, 2 niveaux, 105 m² de surface et 592 m² de terrain. Elle est composée de quatre chambres, d'une cuisine et de deux salles de bains.
À proximité : École Élémentaire Publique. Accès autoroute A81 à 10 km.
Le prix de vente de cette maison de 6 pièces est de 255 000 €.
. Maine Construction Le Mans est là pour vous accompagner dans tous vos projets immobiliers.
Référence : LL2325738_5
Terrain proposé par un partenaire foncier selon disponibilités et autorisation de publicité au prix de 33 200 €. Hors droit d'enregistrement et frais de notaire. Maison proposée, avec un contrat de construction de maison individuelle, dans le cadre de la loi du 19/12/1990, au prix de 221 800 € (Hors branchements et raccordements, papiers peints, peintures, revêtement de sol dans les chambres, qui sont chiffrés dans les travaux qui restent à charge du client. Tarif modifiable sans préavis). Étiquette énergie : A. Différents modèles disponibles pour ce terrain. Assurances et garanties du constructeur comprises (RC professionnelle, décennale, dommage ouvrage).
Les informations sur les risques auxquels ce bien est exposé sont disponibles sur le site Géorisques : www.georisques.gouv.fr
- Prix
-
- Prix total : 255 000 €
- Prix du modèle de maison : 221 800 €
- Prix du terrain : 33 200 €
- Terrain
-
- Surface : 592 m²
- Maison
-
- Surface : 105 m²
- Pièces : 6
- Chambres : 4
- Garage : 1
- Être rappelé par un conseiller
- Demander plus d’infos
- Demande d'information
Longnes (72540)
Maisons à proximité
Maison neuve, 114,23 m²
Longnes (72540)
Longnes (72540)
Maison de 5 pièces
Maison neuve, 90 m²
Longnes (72540)
Longnes (72540)
Maison de 4 pièces
Maison neuve, 73 m²
Longnes (72540)
Longnes (72540)
Maison de 4 pièces
Maison neuve, 108 m²
Longnes (72540)
Longnes (72540)
Maison de 6 pièces
Maison neuve, 50 m²
Longnes (72540)
Longnes (72540)
Maison de 4 pièces
Maison neuve, 101 m²
Longnes (72540)
Longnes (72540)
Maison de 5 pièces
Programmes à proximité
Néméa Le Mans Université
Le Mans (72000)
Le Mans (72000)
Appartements de 1 pièce
Livraison 2ème trimestre 2027
HARMONIE
Le Mans (72000)
Le Mans (72000)
Appartement de 4 pièces
Livraison 2ème trimestre 2026
LES BOSQUETS TR.1
Le Mans (72000)
Le Mans (72000)
Appartements de 1 à 4 pièces
Livraison 4ème trimestre 2027
Epsilon
Le Mans (72000)
Le Mans (72000)
Appartements de 1 à 3 pièces
Livraison 4ème trimestre 2027
Oméga
Le Mans (72000)
Le Mans (72000)
Appartements de 1 pièce
Livraison 2ème trimestre 2026
Contacter MAINE CONSTRUCTION pour recevoir plus d'informations
Remplissez le formulaire ci-dessous, vos informations sont transmises directement au constructeur qui vous contactera par email ou par téléphone afin de traiter votre demande. En savoir plus.