Maison neuve, 139 m² - Les Clayes-sous-Bois (78340)

563 000 €
Les Clayes-sous-Bois (78340)

Proposée par MAISONS BALENCY – 6 pièces - 4 chambres - terrain 409 m²

MAISONS BALENCY
MAISONS BALENCY
  • Demande d'information
MAISON À CONSTRUIRE : ceci est une annonce d'une maison neuve à construire.
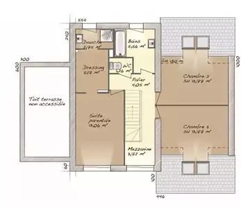
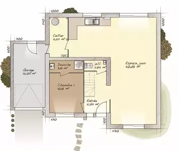
Maison de 6 pièces (139 m²) en vente aux Clayes-sous-Bois
Paris à 40 min (Transilien N, Villepreux-Les Clayes) - Maison neuve 6 pièces en vente idéalement située dans Les Clayes-sous-Bois (78340) avec 2 niveaux, une surface de 139 m² sur un terrain de 409 m². Elle dispose de quatre chambres, d'une cuisine et de deux salles de bains.
À dix minutes : gare (Villepreux-Les Clayes), établissements scolaires, bibliothèque, tennis, bassin de natation, boulangeries, commerces, supermarché, épiceries et bureau de poste. Marché Avenue Leclerc hebdomadaire.
Le prix de vente de cette maison de 6 pièces est de 563 000 €.
. Concrétisez vos projets immobiliers avec Maisons Balency Coignières.
Annonce proposée par un Agent Commercial Partenaire.
Référence : TD2327490_5
Terrain proposé par un partenaire foncier selon disponibilités et autorisation de publicité au prix de 244 000 €. Hors droit d'enregistrement et frais de notaire. Maison proposée, avec un contrat de construction de maison individuelle, dans le cadre de la loi du 19/12/1990, au prix de 319 000 € (Hors branchements et raccordements, papiers peints, peintures, revêtement de sol dans les chambres, qui sont chiffrés dans les travaux qui restent à charge du client. Tarif modifiable sans préavis). Étiquette énergie : A. Différents modèles disponibles pour ce terrain. Assurances et garanties du constructeur comprises (RC professionnelle, décennale, dommage ouvrage).

Les informations sur les risques auxquels ce bien est exposé sont disponibles sur le site Géorisques : www.georisques.gouv.fr


Prix
  • Prix total : 563 000 €
  • Prix du modèle de maison : 319 000 €
  • Prix du terrain : 244 000 €

Terrain
  • Surface : 409 m²

Maison
  • Surface : 139 m²
  • Pièces : 6
  • Chambres : 4
  • Garage : 1

  • Être rappelé par un conseiller
  • Demander plus d’infos
  • Demande d'information
Les Clayes-sous-Bois (78340)

Programmes à proximité

GREEN SQUARE BRS
GREEN SQUARE BRS
Les Clayes-sous-Bois (78340)

Appartements de 3 à 4 pièces
Livraison 2ème trimestre 2027

FAVORI
FAVORI
Les Clayes-sous-Bois (78340)

Appartements de 4 pièces
Livraison 1er trimestre 2026

Green Square
Green Square
Les Clayes-sous-Bois (78340)

Appartements de 2 à 4 pièces
Livraison 2ème trimestre 2027

NEW PARK
NEW PARK
Les Clayes-sous-Bois (78340)

Appartements de 2 à 4 pièces
Livraison 1er trimestre 2026

Les jardins d'Avignou
Les jardins d'Avignou
Plaisir (78370)

Appartements de 2 à 4 pièces
Livraison 4ème trimestre 2027

PIETRA
PIETRA
Plaisir (78370)

Appartements de 2 à 3 pièces
Livraison 2ème trimestre 2026

Contacter MAISONS BALENCY pour recevoir plus d'informations

Remplissez le formulaire ci-dessous, vos informations sont transmises directement au constructeur qui vous contactera par email ou par téléphone afin de traiter votre demande. En savoir plus.

Voir tous nos programmes immobiliers neufs aux Clayes-sous-Bois