Maison neuve, 104 m² - Léguevin (31490)
350 515 €
Léguevin (31490)
Proposée par MAISONS FRANCE CONFORT – 4 pièces - 3 chambres - terrain 638 m²
|
|
| MAISONS FRANCE CONFORT |
| (169 avis) |
- Demande d'information
- Prendre rendez-vous
MAISON À CONSTRUIRE : ceci est une annonce d'une maison neuve à construire.
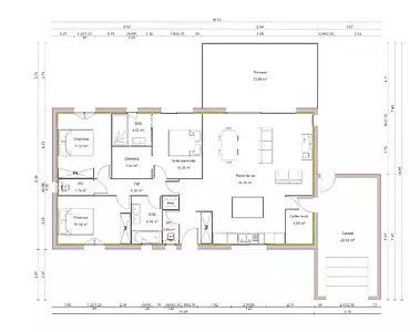
VENTE d'une maison T4 (104 m²) à Léguevin
PROCHE DE TOULOUSE - MAISON 4 PIÈCES NEUVE
À vendre à 16 km de Toulouse, à Léguevin (31490), votre agence Maisons France Confort Tournefeuille est ravie de vous proposer cette maison de 4 pièces de plain-pied de 104 m².
Conçue de plain-pied, elle se divise en trois chambres, une cuisine et deux salles de bains. Cette maison est neuve.
Le terrain de la propriété est de 638 m².
Elle est proposée à l'achat pour 350 515 €.
Prenez contact avec nous pour toute information sur cette propriété ou sur les démarches à suivre. .
Hors frais annexes.
Annonce proposée par un Agent Commercial Partenaire.
Référence : CC2261202_2
Terrain proposé par un partenaire foncier selon disponibilités et autorisation de publicité au prix de 155 000 €. Hors droit d'enregistrement et frais de notaire. Maison proposée, avec un contrat de construction de maison individuelle, dans le cadre de la loi du 19/12/1990, au prix de 195 515 € (Hors branchements et raccordements, papiers peints, peintures, revêtement de sol dans les chambres, qui sont chiffrés dans les travaux qui restent à charge du client. Tarif modifiable sans préavis). Étiquette énergie : A. Différents modèles disponibles pour ce terrain. Assurances et garanties du constructeur comprises (RC professionnelle, décennale, dommage ouvrage).
Les informations sur les risques auxquels ce bien est exposé sont disponibles sur le site Géorisques : www.georisques.gouv.fr
PROCHE DE TOULOUSE - MAISON 4 PIÈCES NEUVE
À vendre à 16 km de Toulouse, à Léguevin (31490), votre agence Maisons France Confort Tournefeuille est ravie de vous proposer cette maison de 4 pièces de plain-pied de 104 m².
Conçue de plain-pied, elle se divise en trois chambres, une cuisine et deux salles de bains. Cette maison est neuve.
Le terrain de la propriété est de 638 m².
Elle est proposée à l'achat pour 350 515 €.
Prenez contact avec nous pour toute information sur cette propriété ou sur les démarches à suivre. .
Hors frais annexes.
Annonce proposée par un Agent Commercial Partenaire.
Référence : CC2261202_2
Terrain proposé par un partenaire foncier selon disponibilités et autorisation de publicité au prix de 155 000 €. Hors droit d'enregistrement et frais de notaire. Maison proposée, avec un contrat de construction de maison individuelle, dans le cadre de la loi du 19/12/1990, au prix de 195 515 € (Hors branchements et raccordements, papiers peints, peintures, revêtement de sol dans les chambres, qui sont chiffrés dans les travaux qui restent à charge du client. Tarif modifiable sans préavis). Étiquette énergie : A. Différents modèles disponibles pour ce terrain. Assurances et garanties du constructeur comprises (RC professionnelle, décennale, dommage ouvrage).
Les informations sur les risques auxquels ce bien est exposé sont disponibles sur le site Géorisques : www.georisques.gouv.fr
- Prix
-
- Prix total : 350 515 €
- Prix du modèle de maison : 195 515 €
- Prix du terrain : 155 000 €
- Terrain
-
- Surface : 638 m²
- Maison
-
- Surface : 104 m²
- Pièces : 4
- Chambres : 3
- Garage : 1
- Être rappelé par un conseiller
- Demander plus d’infos
- Demande d'information
Léguevin (31490)
Maisons à proximité
Maison neuve, 80 m²
Léguevin (31490)
Léguevin (31490)
Maison de 4 pièces
Maison neuve, 120 m²
Léguevin (31490)
Léguevin (31490)
Maison de 8 pièces
Maison neuve, 94 m²
Léguevin (31490)
Léguevin (31490)
Maison de 5 pièces
Maison neuve, 140 m²
Léguevin (31490)
Léguevin (31490)
Maison de 6 pièces
Programmes à proximité
LES JARDINS DE SAINT GILLES
La Salvetat-Saint-Gilles (31880)
La Salvetat-Saint-Gilles (31880)
Appartement de 3 pièces
Livraison 4ème trimestre 2025
LA SCALA
Pibrac (31820)
Pibrac (31820)
Appartement de 3 pièces et maisons de 4 à 5 pièces
Livraison 1er trimestre 2026
DOMAINE DES SORBIERS (31)
Fonsorbes (31470)
Fonsorbes (31470)
Appartement de 3 pièces
Livraison 2ème trimestre 2026
Les Rives du Lac
Tournefeuille (31170)
Tournefeuille (31170)
Appartements de 1 à 4 pièces
Livraison 4ème trimestre 2027
Résidence Saint-Paul
Tournefeuille (31170)
Tournefeuille (31170)
Appartement de 3 pièces
Livraison 4ème trimestre 2025
Aux portes de Toulouse
Tournefeuille (31170)
Tournefeuille (31170)
Appartements de 2 à 3 pièces
Livraison 3ème trimestre 2027
Contacter MAISONS FRANCE CONFORT pour recevoir plus d'informations
Remplissez le formulaire ci-dessous, vos informations sont transmises directement au constructeur qui vous contactera par email ou par téléphone afin de traiter votre demande. En savoir plus.