Maison neuve, 120 m² - Lège-Cap-Ferret (33950)

895 000 €
Lège-Cap-Ferret (33950)

Proposée par COULEUR VILLAS – 4 pièces - 3 chambres - terrain 1 200 m²

Couleur Villas
Couleur Villas
  • Demande d'information
MAISON À CONSTRUIRE : ceci est une annonce d'une maison neuve à construire.
Sur la commune de Lège Cap Ferret, dans un secteur calme et recherché, ce terrain de 1200 m² bénéficie d'un emplacement rare, bonne exposition, et à l'écart de toute nuisance sonore ou visuelle.
La parcelle est viabilisée et permet de réaliser une belle maison de plain-pied ou à étage, dans un environnement serein, préservé et sans vis-à-vis.
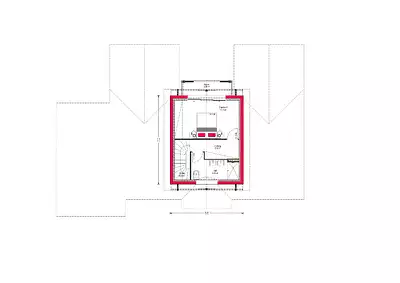
Présentation de notre modèle de maison personnalisable de 120 m².
Le prix inclus l'achat du terrain, les frais de notaire, la construction, et les raccordements.
Une véritable opportunité pour construire dans l'un des secteurs les plus qualitatifs du Bassin d'Arcachon.
.
Référence : FU2357657
Terrain proposé par un partenaire foncier selon disponibilité dans le cadre d’un projet de construction avec Couleur Villas. Les descriptions, photographies, surfaces et prix illustrant l’annonce sont fournies à titre indicatif et ne sont pas contractuels. Non soumis au DPE. Différents modèles disponibles.

Les informations sur les risques auxquels ce bien est exposé sont disponibles sur le site Géorisques : www.georisques.gouv.fr


Prix
  • Prix total : 895 000 €
  • Prix du modèle de maison : N.C.
  • Prix du terrain : N.C.

Terrain
  • Surface : 1 200 m²

Maison
  • Surface : 120 m²
  • Pièces : 4
  • Chambres : 3
  • Garage : 1

  • Être rappelé par un conseiller
  • Demander plus d’infos
  • Demande d'information
Lège-Cap-Ferret (33950)

Programmes à proximité

Les Allées Ostréica
Les Allées Ostréica
Arès (33740)

Appartements de 1 à 5 pièces
Livraison 2ème trimestre 2026

Villa Aéria - ARES (33)
Villa Aéria - ARES (33)
Arès (33740)

Appartements de 3 à 4 pièces
Livraison 1er trimestre 2026

Villa Gascogne - ANDERNOS-LES-BAINS (33)
Villa Gascogne - ANDERNOS-LES-BAINS (33)
Andernos-les-Bains (33510)

Appartements de 2 à 4 pièces
Livraison 2ème trimestre 2026

COLLECTIONS
COLLECTIONS
Arcachon (33120)

Appartements de 1 à 5 pièces
Livraison 2ème trimestre 2027

Villas Beaurivage
Villas Beaurivage
Arcachon (33120)

Appartements de 2 à 4 pièces
Livraison 4ème trimestre 2027

Les Voiles du Bassin
Les Voiles du Bassin
Arcachon (33120)

Appartements de 2 à 4 pièces
Livraison 4ème trimestre 2027

Contacter COULEUR VILLAS pour recevoir plus d'informations

Remplissez le formulaire ci-dessous, vos informations sont transmises directement au constructeur qui vous contactera par email ou par téléphone afin de traiter votre demande. En savoir plus.

Voir tous nos programmes immobiliers neufs à Lège-Cap-Ferret