Maison neuve, 73 m² - Lecques (30250)

270 000 €
Lecques (30250)

Proposée par MAISONS BALENCY – 5 pièces - 3 chambres - terrain 500 m²

MAISONS BALENCY
MAISONS BALENCY
(46 avis)
  • Demande d'information
MAISON À CONSTRUIRE : ceci est une annonce d'une maison neuve à construire.
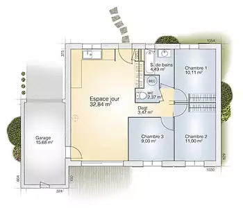
VENTE d'une maison T5 (73 m²) à Lecques
Proche de Montpellier - À découvrir à Lecques (30250) : maison neuve 5 pièces en vente, 73 m² et 500 m² de terrain. Conçue de plain-pied, elle compte trois chambres, une cuisine et une salle de bains.
À dix minutes : établissements scolaires, crèches, tennis, bibliothèques, bassin de natation, supermarchés, commerces, boulangeries, épiceries et supérette. Marché Rue Principale le mercredi matin. Mer Méditerranée à 30 km.
Cette maison de 5 pièces est à vendre pour la somme de 270 000 €.
.
Référence : CJ2256605_1
Terrain proposé par un partenaire foncier selon disponibilités et autorisation de publicité au prix de 139 000 €. Hors droit d'enregistrement et frais de notaire. Maison proposée, avec un contrat de construction de maison individuelle, dans le cadre de la loi du 19/12/1990, au prix de 131 000 € (Hors branchements et raccordements, papiers peints, peintures, revêtement de sol dans les chambres, qui sont chiffrés dans les travaux qui restent à charge du client. Tarif modifiable sans préavis). Étiquette énergie : A. Différents modèles disponibles pour ce terrain. Assurances et garanties du constructeur comprises (RC professionnelle, décennale, dommage ouvrage).

Les informations sur les risques auxquels ce bien est exposé sont disponibles sur le site Géorisques : www.georisques.gouv.fr


Prix
  • Prix total : 270 000 €
  • Prix du modèle de maison : 131 000 €
  • Prix du terrain : 139 000 €

Terrain
  • Surface : 500 m²

Maison
  • Surface : 73 m²
  • Pièces : 5
  • Chambres : 3
  • Garage : 1

  • Être rappelé par un conseiller
  • Demander plus d’infos
  • Demande d'information
Lecques (30250)

Programmes à proximité

GRACIOSA
GRACIOSA
Clarensac (30870)

Appartements de 2 à 3 pièces
Livraison 4ème trimestre 2027

PIETRA
PIETRA
Castries (34160)

Appartements de 3 à 4 pièces et maison de 4 pièces
Livraison 2ème trimestre 2025

Domaine de Canastel
Domaine de Canastel
Baillargues (34670)

Appartements de 3 à 4 pièces
Livraison 4ème trimestre 2024

DEVI TARA
DEVI TARA
Baillargues (34670)

Appartements de 3 à 4 pièces
Livraison 4ème trimestre 2025

Domaine d’Esperanza
Domaine d’Esperanza
Baillargues (34670)

Appartements de 2 à 4 pièces
Livraison 4ème trimestre 2027

LE JARDIN D'ODETTE
LE JARDIN D'ODETTE
Nîmes (30900)

Appartements de 2 pièces
Livraison 2ème trimestre 2026

Contacter MAISONS BALENCY pour recevoir plus d'informations

Remplissez le formulaire ci-dessous, vos informations sont transmises directement au constructeur qui vous contactera par email ou par téléphone afin de traiter votre demande. En savoir plus.

Voir tous nos programmes immobiliers neufs à Lecques