Maison neuve, 114 m² - Le Vieil-Evreux (27930)
304 886 €
Le Vieil-Evreux (27930)
Proposée par MAISONS BALENCY – 6 pièces - 4 chambres - terrain 584 m²
|
|
| MAISONS BALENCY |
- Demande d'information
- Prendre rendez-vous
MAISON À CONSTRUIRE : ceci est une annonce d'une maison neuve à construire.
A construire sur la commune du Vieil-Évreux, une belle maison aux lignes traditionnelles (114 m²).
PROCHE D'ÉVREUX
Dans un secteur recherché sur la commune du Vieil-Évreux (27930), nous vous proposons ce projet maison de 6 pièces 114 m² sur un terrain de 584 m² dans un quartier calme.
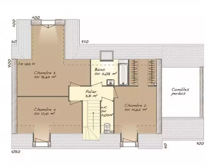
Il s'agit d'une maison de 2 niveaux. Elle est composée de quatre chambres, une cuisine et de deux salles de bains.
Une école maternelle est implantée à proximité et la gare d'Évreux Normandie se situe à moins de 10 minutes en voiture.
Les nationales N13 et N154 sont accessibles à moins de 4 km.
Ce projet maison + terrain est proposée à l'achat pour 304 886 €.
Contactez notre agence Maisons Balency Gravigny, pour plus de renseignements.
Notre conseillère commerciale Élodie DUPRÉ (07-43-61-26-52) sera ravie de vous répondre.
Donnez vie à vos projets immobiliers avec Maisons Balency Gravigny.
Annonce proposée par un Agent Commercial Partenaire.
Référence : ED2415674_2
Terrain proposé par un partenaire foncier selon disponibilités et autorisation de publicité au prix de 63 000 €. Hors droit d'enregistrement et frais de notaire. Terrain + Maison proposés au prix de 241 886 € (Hors branchements et raccordements, papiers peints, peintures, revêtement de sol dans les chambres. Tarif modifiable sans préavis). Etiquette énergie : A. Différents modèles disponibles pour ce terrain. Assurances et garanties du constructeur (RC professionnelle, décennale, dommage ouvrage, garantie de remboursement de l'acompte, livraison à prix et délai convenu) : https://www.maisons-balency.fr/informations-legales/. HEXAOM Services est enregistré auprès de l'ORIAS en tant que Courtier en financement, Niveau 1, sous le numéro 14001345.
Les informations sur les risques auxquels ce bien est exposé sont disponibles sur le site Géorisques : www.georisques.gouv.fr
PROCHE D'ÉVREUX
Dans un secteur recherché sur la commune du Vieil-Évreux (27930), nous vous proposons ce projet maison de 6 pièces 114 m² sur un terrain de 584 m² dans un quartier calme.
Il s'agit d'une maison de 2 niveaux. Elle est composée de quatre chambres, une cuisine et de deux salles de bains.
Une école maternelle est implantée à proximité et la gare d'Évreux Normandie se situe à moins de 10 minutes en voiture.
Les nationales N13 et N154 sont accessibles à moins de 4 km.
Ce projet maison + terrain est proposée à l'achat pour 304 886 €.
Contactez notre agence Maisons Balency Gravigny, pour plus de renseignements.
Notre conseillère commerciale Élodie DUPRÉ (07-43-61-26-52) sera ravie de vous répondre.
Donnez vie à vos projets immobiliers avec Maisons Balency Gravigny.
Annonce proposée par un Agent Commercial Partenaire.
Référence : ED2415674_2
Terrain proposé par un partenaire foncier selon disponibilités et autorisation de publicité au prix de 63 000 €. Hors droit d'enregistrement et frais de notaire. Terrain + Maison proposés au prix de 241 886 € (Hors branchements et raccordements, papiers peints, peintures, revêtement de sol dans les chambres. Tarif modifiable sans préavis). Etiquette énergie : A. Différents modèles disponibles pour ce terrain. Assurances et garanties du constructeur (RC professionnelle, décennale, dommage ouvrage, garantie de remboursement de l'acompte, livraison à prix et délai convenu) : https://www.maisons-balency.fr/informations-legales/. HEXAOM Services est enregistré auprès de l'ORIAS en tant que Courtier en financement, Niveau 1, sous le numéro 14001345.
Les informations sur les risques auxquels ce bien est exposé sont disponibles sur le site Géorisques : www.georisques.gouv.fr
- Prix
-
- Prix total : 304 886 €
- Prix du modèle de maison : 241 886 €
- Prix du terrain : 63 000 €
- Terrain
-
- Surface : 584 m²
- Maison
-
- Surface : 114 m²
- Pièces : 6
- Chambres : 4
- Garage : 1
- Être rappelé par un conseiller
- Demander plus d’infos
- Demande d'information
Le Vieil-Evreux (27930)
Maisons à proximité
Maison neuve, 83,73 m²
Le Vieil-Evreux (27930)
Le Vieil-Evreux (27930)
Maison de 4 pièces
Maison neuve, 85,92 m²
Le Vieil-Evreux (27930)
Le Vieil-Evreux (27930)
Maison de 5 pièces
Maison neuve, 75 m²
Le Vieil-Evreux (27930)
Le Vieil-Evreux (27930)
Maison de 4 pièces
Maison neuve, 170 m²
Le Vieil-Evreux (27930)
Le Vieil-Evreux (27930)
Maison de 6 pièces
Maison neuve, 48,75 m²
Le Vieil-Evreux (27930)
Le Vieil-Evreux (27930)
Maison de 3 pièces
Maison neuve, 106,97 m²
Le Vieil-Evreux (27930)
Le Vieil-Evreux (27930)
Maison de 6 pièces
Programmes à proximité
LE 25 BULLY
Vernon (27200)
Vernon (27200)
Appartements de 1 à 2 pièces
Livraison 3ème trimestre 2027
Le Jardin des Officiers
Vernon (27200)
Vernon (27200)
Appartements de 2 à 4 pièces
Livraison 2ème trimestre 2026
LES JARDINS DE GAMILLY
Vernon (27200)
Vernon (27200)
Appartement de 2 pièces
Livraison 2ème trimestre 2026
À 15 min*à pied du centre ville
Louviers (27400)
Louviers (27400)
Appartements de 2 à 3 pièces et maisons de 3 pièces
Reverso Louviers
Louviers (27400)
Louviers (27400)
Appartements de 1 à 3 pièces
Livraison 4ème trimestre 2025
Contacter MAISONS BALENCY pour recevoir plus d'informations
Remplissez le formulaire ci-dessous, vos informations sont transmises directement au constructeur qui vous contactera par email ou par téléphone afin de traiter votre demande. En savoir plus.