Maison neuve, 106 m² - Le Val-d'Ajol (88340)
231 030 €
Le Val-d'Ajol (88340)
Proposée par BATILOR AGENCE D’ EPINAL (88000) – VOSGES – RÉGION – 4 pièces - 3 chambres - terrain 1 500 m²
|
|
| Batilor Agence d’ Epinal (88000) – Vosges – Région |
- Demande d'information
- Prendre rendez-vous
MAISON À CONSTRUIRE : ceci est une annonce d'une maison neuve à construire.
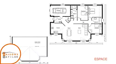
Nous vous proposons cette maison neuve, baptisée Espace, un modèle qui allie design et fonctionnalité, tout en affichant un charme très britannique. Avec une surface habitable de 106 m², cette maison est conçue pour maximiser l'espace et le confort de ses habitants. Elle se compose de 4 pièces, dont 3 chambres spacieuses, et bénéficie de deux salles de bains, garantissant ainsi une commodité optimale pour toute la famille.
L'un des atouts majeurs de ce modèle est son bow window, une fenêtre en saillie qui non seulement enrichit l'esthétique de la maison avec une touche d'élégance britannique, mais assure également une excellente luminosité dans les pièces de vie. Cette caractéristique, combinée à une construction principalement en briques, confère à la maison une isolation thermique et acoustique de qualité supérieure.
La maison Espace est également conçue pour répondre aux attentes les plus exigeantes en termes d'écologie et d'économie d'énergie. Elle est conforme à la réglementation thermique 2020 (RE2020), ce qui en fait une habitation basse consommation. Ce critère, de plus en plus recherché, assure non seulement un confort de vie inégalé tout au long de l'année, mais aussi des économies significatives sur les factures d'énergie.
Parmi les options les plus plébiscitées par nos clients et disponibles pour ce modèle, vous trouverez des aménagements supplémentaires pour personnaliser et optimiser votre espace selon vos besoins et vos envies.
En choisissant la maison Espace, vous optez pour une demeure de standing, écologique et économique, qui saura s'adapter à votre mode de vie tout en respectant l'environnement. Cette maison est une invitation à vivre dans un espace conçu pour le bien-être de ses occupants, où chaque détail a été pensé pour allier confort, esthétique et performance énergétique.
N'attendez plus pour faire de la maison Espace le lieu de vos futurs souvenirs. Contactez-nous pour plus d'informations et débutons ensemble le projet de votre nouvel
Référence : 23293
Les informations sur les risques auxquels ce bien est exposé sont disponibles sur le site Géorisques : www.georisques.gouv.fr
L'un des atouts majeurs de ce modèle est son bow window, une fenêtre en saillie qui non seulement enrichit l'esthétique de la maison avec une touche d'élégance britannique, mais assure également une excellente luminosité dans les pièces de vie. Cette caractéristique, combinée à une construction principalement en briques, confère à la maison une isolation thermique et acoustique de qualité supérieure.
La maison Espace est également conçue pour répondre aux attentes les plus exigeantes en termes d'écologie et d'économie d'énergie. Elle est conforme à la réglementation thermique 2020 (RE2020), ce qui en fait une habitation basse consommation. Ce critère, de plus en plus recherché, assure non seulement un confort de vie inégalé tout au long de l'année, mais aussi des économies significatives sur les factures d'énergie.
Parmi les options les plus plébiscitées par nos clients et disponibles pour ce modèle, vous trouverez des aménagements supplémentaires pour personnaliser et optimiser votre espace selon vos besoins et vos envies.
En choisissant la maison Espace, vous optez pour une demeure de standing, écologique et économique, qui saura s'adapter à votre mode de vie tout en respectant l'environnement. Cette maison est une invitation à vivre dans un espace conçu pour le bien-être de ses occupants, où chaque détail a été pensé pour allier confort, esthétique et performance énergétique.
N'attendez plus pour faire de la maison Espace le lieu de vos futurs souvenirs. Contactez-nous pour plus d'informations et débutons ensemble le projet de votre nouvel
Référence : 23293
Les informations sur les risques auxquels ce bien est exposé sont disponibles sur le site Géorisques : www.georisques.gouv.fr
- Prix
-
- Prix total : 231 030 €
- Prix du modèle de maison : 196 030 €
- Prix du terrain : 35 000 €
- Terrain
-
- Surface : 1 500 m²
- Maison
-
- Surface : 106 m²
- Pièces : 4
- Chambres : 3
- Être rappelé par un conseiller
- Demander plus d’infos
- Demande d'information
Le Val-d'Ajol (88340)
Maisons à proximité
Maison neuve, 80 m²
Le Val-d'Ajol (88340)
Le Val-d'Ajol (88340)
Maison de 4 pièces
Maison neuve, 79 m²
Fougerolles-Saint-Valbert (70220)
Fougerolles-Saint-Valbert (70220)
Maison de 4 pièces
Maison neuve, 108 m²
Fougerolles-Saint-Valbert (70220)
Fougerolles-Saint-Valbert (70220)
Maison de 5 pièces
Maison neuve, 88 m²
Fougerolles-Saint-Valbert (70220)
Fougerolles-Saint-Valbert (70220)
Maison de 4 pièces
Maison neuve, 111 m²
Faucogney-et-la-Mer (70310)
Faucogney-et-la-Mer (70310)
Maison de 5 pièces
Maison neuve, 119 m²
Remiremont (88200)
Remiremont (88200)
Maison de 5 pièces
Programmes à proximité
Contacter BATILOR AGENCE D’ EPINAL (88000) – VOSGES – RÉGION pour recevoir plus d'informations
Remplissez le formulaire ci-dessous, vos informations sont transmises directement au constructeur qui vous contactera par email ou par téléphone afin de traiter votre demande. En savoir plus.