Maison neuve, 141 m² - Le Porge (33680)

498 000 €
Le Porge (33680)

Proposée par VILLAS MELROSE – 6 pièces - 3 chambres - terrain 763 m²

VILLAS MELROSE
VILLAS MELROSE
  • Demande d'information
MAISON À CONSTRUIRE : ceci est une annonce d'une maison neuve à construire.
EMPLACEMENT PRIVILÉGIÉ - MAISON 6 PIÈCES NEUVE
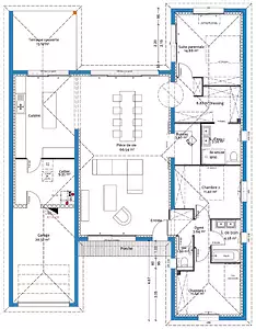
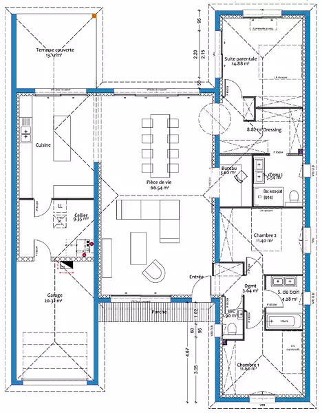
Sur un beau terrain situé sur le Bassin d'Arcachon, bénéficiant d'un emplacement privilégié, nous proposons cette maison à construire, d'une surface habitable de 141 m².
Elle se compose d'une pièce de vie de 66m², trois belles chambres et deux salles de bain.
Un garage complète avantageusement ce bien.
Exemple d'illustration de projet proposé sur cette parcelle de 763 m², adaptable a votre demande.
Villas Melrose, constructeur de maisons sur mesures.
Projet proposé à partir de 498 000 €, hors frais d'acte, de branchement réseau, de viabilisation (coffrets électriques) de démolition et sous réserve des résultats d'une étude de sol. Référence : DF2341974_1
Terrain proposé par un partenaire foncier selon disponibilités et autorisation de publicité au prix de 230 000 €. Hors droit d'enregistrement et frais de notaire. Maison proposée au prix de 268 000 € (Hors branchements et raccordements, papiers peints, peintures, revêtement de sol dans les chambres. Tarif modifiable sans préavis). Etiquette énergie : A. Différents modèles disponibles pour ce terrain.

Les informations sur les risques auxquels ce bien est exposé sont disponibles sur le site Géorisques : www.georisques.gouv.fr


Prix
  • Prix total : 498 000 €
  • Prix du modèle de maison : 268 000 €
  • Prix du terrain : 230 000 €

Terrain
  • Surface : 763 m²

Maison
  • Surface : 141 m²
  • Pièces : 6
  • Chambres : 3
  • Garage : 1

  • Être rappelé par un conseiller
  • Demander plus d’infos
  • Demande d'information
Le Porge (33680)

Programmes à proximité

Les Allées Ostréica
Les Allées Ostréica
Arès (33740)

Appartements de 1 à 5 pièces
Livraison 2ème trimestre 2026

Villa Aéria - ARES (33)
Villa Aéria - ARES (33)
Arès (33740)

Appartements de 3 à 4 pièces
Livraison 1er trimestre 2026

Villa Gascogne - ANDERNOS-LES-BAINS (33)
Villa Gascogne - ANDERNOS-LES-BAINS (33)
Andernos-les-Bains (33510)

Appartements de 2 à 4 pièces
Livraison 2ème trimestre 2026

Le Hameau des Ardillères
Le Hameau des Ardillères
Salaunes (33160)

Appartement de 1 pièce et maison de 4 pièces
Livraison 4ème trimestre 2027

SLOW
SLOW
Audenge (33980)

Appartement de 2 pièces
Livraison 2ème trimestre 2026

Domaine du Ruisseau
Domaine du Ruisseau
Audenge (33980)

Appartements de 2 à 4 pièces et maisons de 3 à 4 pièces
Livraison 1er trimestre 2027

Contacter VILLAS MELROSE pour recevoir plus d'informations

Remplissez le formulaire ci-dessous, vos informations sont transmises directement au constructeur qui vous contactera par email ou par téléphone afin de traiter votre demande. En savoir plus.

Voir tous nos programmes immobiliers neufs au Porge