Maison neuve, 150 m² - Le Pian-sur-Garonne (33490)
434 500 €
Le Pian-sur-Garonne (33490)
Proposée par ALPHA CONSTRUCTIONS – 5 pièces - 4 chambres - terrain 841 m²
|
|
| Alpha Constructions |
- Demande d'information
- Prendre rendez-vous
MAISON À CONSTRUIRE : ceci est une annonce d'une maison neuve à construire.
LE PIAN-SUR-GARONNE - PROJET DE CONSTRUCTION D'UNE MAISON T5
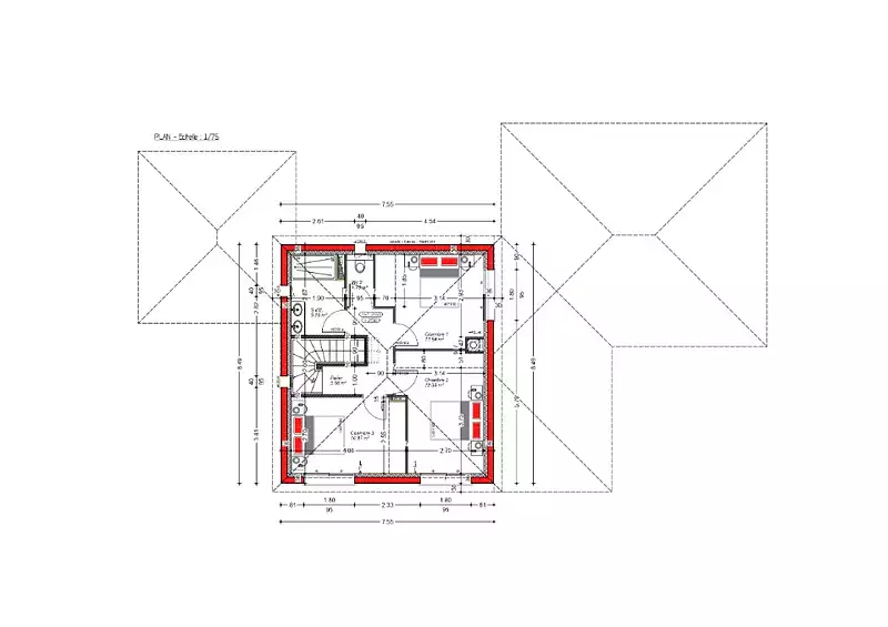
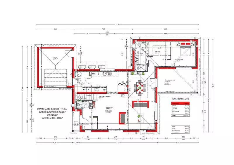
Idéalement située dans un quartier résidentiel du Pian-sur-Garonne, nous vous proposons ce projet de construction d'une maison contemporaine de 155 m² habitables, sur un terrain de 841 m².
Caractéristiques du projet :
-Pièce de vie traversante de plus de 68 m² avec de larges ouvertures donnant sur une terrasse couverte de 18 m²
-Cuisine ouverte avec cellier et accès direct au garage de 23 m².
-Suite parentale au rez-de-chaussée avec dressing et salle de bains privative.
À l'étage, trois chambres, une salle d'eau et un WC indépendant.
-Deux salles de bains, trois WC au total.
-Porche d'entrée et espace technique intégré.
Environnement :
-Cadre calme et recherché, idéal pour une vie de famille.
-École primaire accessible dans la commune.
-Transports : sept gares à moins de 10 minutes en voiture, accès rapide à l'A62 (7 km).
-Proximité commerces et équipements de loisirs (boulangerie, tennis).
Ce montant de 434 500 € inclus le terrain, frais de notaire, VRD, viabilisation.
Pour tout renseignement sur le projet, les démarches, contactez :
Sophia BARRERE
Alpha Constructions Langon
Référence : SB2341286_1
Terrain proposé par un partenaire foncier selon disponibilité dans le cadre d’un projet de construction avec Alpha Constructions. Les descriptions, photographies, surfaces et prix illustrant l’annonce sont fournies à titre indicatif et ne sont pas contractuels. Non soumis au DPE. Différents modèles disponibles.
Les informations sur les risques auxquels ce bien est exposé sont disponibles sur le site Géorisques : www.georisques.gouv.fr
Idéalement située dans un quartier résidentiel du Pian-sur-Garonne, nous vous proposons ce projet de construction d'une maison contemporaine de 155 m² habitables, sur un terrain de 841 m².
Caractéristiques du projet :
-Pièce de vie traversante de plus de 68 m² avec de larges ouvertures donnant sur une terrasse couverte de 18 m²
-Cuisine ouverte avec cellier et accès direct au garage de 23 m².
-Suite parentale au rez-de-chaussée avec dressing et salle de bains privative.
À l'étage, trois chambres, une salle d'eau et un WC indépendant.
-Deux salles de bains, trois WC au total.
-Porche d'entrée et espace technique intégré.
Environnement :
-Cadre calme et recherché, idéal pour une vie de famille.
-École primaire accessible dans la commune.
-Transports : sept gares à moins de 10 minutes en voiture, accès rapide à l'A62 (7 km).
-Proximité commerces et équipements de loisirs (boulangerie, tennis).
Ce montant de 434 500 € inclus le terrain, frais de notaire, VRD, viabilisation.
Pour tout renseignement sur le projet, les démarches, contactez :
Sophia BARRERE
Alpha Constructions Langon
Référence : SB2341286_1
Terrain proposé par un partenaire foncier selon disponibilité dans le cadre d’un projet de construction avec Alpha Constructions. Les descriptions, photographies, surfaces et prix illustrant l’annonce sont fournies à titre indicatif et ne sont pas contractuels. Non soumis au DPE. Différents modèles disponibles.
Les informations sur les risques auxquels ce bien est exposé sont disponibles sur le site Géorisques : www.georisques.gouv.fr
- Prix
-
- Prix total : 434 500 €
- Prix du modèle de maison : 379 500 €
- Prix du terrain : 55 000 €
- Terrain
-
- Surface : 841 m²
- Maison
-
- Surface : 150 m²
- Pièces : 5
- Chambres : 4
- Garage : 1
- Être rappelé par un conseiller
- Demander plus d’infos
- Demande d'information
Le Pian-sur-Garonne (33490)
Maisons à proximité
Maison neuve, 100 m²
Le Pian-sur-Garonne (33490)
Le Pian-sur-Garonne (33490)
Maison de 4 pièces
Maison neuve, 155 m²
Le Pian-sur-Garonne (33490)
Le Pian-sur-Garonne (33490)
Maison de 5 pièces
Maison neuve, 100 m²
Le Pian-sur-Garonne (33490)
Le Pian-sur-Garonne (33490)
Maison de 3 pièces
Maison neuve, 113 m²
Le Pian-sur-Garonne (33490)
Le Pian-sur-Garonne (33490)
Maison de 5 pièces
Maison neuve, 86 m²
Le Pian-sur-Garonne (33490)
Le Pian-sur-Garonne (33490)
Maison de 4 pièces
Maison neuve, 84 m²
Le Pian-sur-Garonne (33490)
Le Pian-sur-Garonne (33490)
Maison de 4 pièces
Programmes à proximité
TOLENA - Bât B
Toulenne (33210)
Toulenne (33210)
Appartements de 2 à 4 pièces
Livraison 4ème trimestre 2027
TOLENA - Bât A
Toulenne (33210)
Toulenne (33210)
Appartements de 3 à 4 pièces
Livraison 4ème trimestre 2024
Contacter ALPHA CONSTRUCTIONS pour recevoir plus d'informations
Remplissez le formulaire ci-dessous, vos informations sont transmises directement au constructeur qui vous contactera par email ou par téléphone afin de traiter votre demande. En savoir plus.
Voir tous nos programmes immobiliers neufs au Pian-sur-Garonne