Maison neuve, 124 m² - Le Mans (72000)
335 000 €
Le Mans (72000)
Proposée par MAINE CONSTRUCTION – 5 pièces - 4 chambres - terrain 386 m²
|
|
| Maine Construction |
- Demande d'information
- Prendre rendez-vous
MAISON À CONSTRUIRE : ceci est une annonce d'une maison neuve à construire.
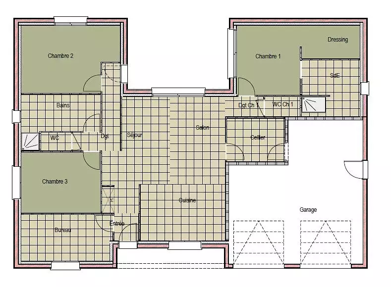
VENTE d'une maison de 5 pièces (124 m²) au Mans
Quartier recherché - Au Mans (72000), maison neuve en vente de 5 pièces, 124 m² sur 386 m² de terrain. Conçue de plain-pied, elle est composée de quatre chambres, d'une cuisine et de deux salles de bains.
À proximité : gares (Le Mans, Neuville-sur-Sarthe et Arnage), lycée Institut Technologique Européen des Métiers de la Musique, crèches, Le Mans Université et école ISMANS, tennis, boulangeries, commerces, supermarché et bureau de poste. Autoroute A11 à 3 km.
Le prix de vente de cette maison de 5 pièces est de 335 000 €.
Contactez François HOUDAYER (06-23-38-26-90) pour toute information sur la maison. Maine Construction Le Mans est là pour vous accompagner à toutes les étapes de votre projet.
Référence : FH2421464_7
Terrain proposé par un partenaire foncier selon disponibilités et autorisation de publicité au prix de 79 000 €. Hors droit d'enregistrement et frais de notaire. Terrain + Maison proposés au prix de 335 000 € (Hors branchements et raccordements, papiers peints, peintures, revêtement de sol dans les chambres. Tarif modifiable sans préavis). Etiquette énergie : A. Différents modèles disponibles pour ce terrain. Assurances et garanties du constructeur (RC professionnelle, décennale, dommage ouvrage, garantie de remboursement de l'acompte, livraison à prix et délai convenu) : https://www.maine-construction.fr/mentions-legales/. HEXAOM Services est enregistré auprès de l'ORIAS en tant que Courtier en financement, Niveau 1, sous le numéro 14001345.
Les informations sur les risques auxquels ce bien est exposé sont disponibles sur le site Géorisques : www.georisques.gouv.fr
Quartier recherché - Au Mans (72000), maison neuve en vente de 5 pièces, 124 m² sur 386 m² de terrain. Conçue de plain-pied, elle est composée de quatre chambres, d'une cuisine et de deux salles de bains.
À proximité : gares (Le Mans, Neuville-sur-Sarthe et Arnage), lycée Institut Technologique Européen des Métiers de la Musique, crèches, Le Mans Université et école ISMANS, tennis, boulangeries, commerces, supermarché et bureau de poste. Autoroute A11 à 3 km.
Le prix de vente de cette maison de 5 pièces est de 335 000 €.
Contactez François HOUDAYER (06-23-38-26-90) pour toute information sur la maison. Maine Construction Le Mans est là pour vous accompagner à toutes les étapes de votre projet.
Référence : FH2421464_7
Terrain proposé par un partenaire foncier selon disponibilités et autorisation de publicité au prix de 79 000 €. Hors droit d'enregistrement et frais de notaire. Terrain + Maison proposés au prix de 335 000 € (Hors branchements et raccordements, papiers peints, peintures, revêtement de sol dans les chambres. Tarif modifiable sans préavis). Etiquette énergie : A. Différents modèles disponibles pour ce terrain. Assurances et garanties du constructeur (RC professionnelle, décennale, dommage ouvrage, garantie de remboursement de l'acompte, livraison à prix et délai convenu) : https://www.maine-construction.fr/mentions-legales/. HEXAOM Services est enregistré auprès de l'ORIAS en tant que Courtier en financement, Niveau 1, sous le numéro 14001345.
Les informations sur les risques auxquels ce bien est exposé sont disponibles sur le site Géorisques : www.georisques.gouv.fr
- Prix
-
- Prix total : 335 000 €
- Prix du modèle de maison : 256 000 €
- Prix du terrain : 79 000 €
- Terrain
-
- Surface : 386 m²
- Maison
-
- Surface : 124 m²
- Pièces : 5
- Chambres : 4
- Garage : 1
- Être rappelé par un conseiller
- Demander plus d’infos
- Demande d'information
Le Mans (72000)
Maisons à proximité
Maison neuve, 73 m²
Le Mans (72000)
Le Mans (72000)
Maison de 4 pièces
Maison neuve, 120 m²
Le Mans (72000)
Le Mans (72000)
Maison de 5 pièces
Maison neuve, 97 m²
Le Mans (72000)
Le Mans (72000)
Maison de 4 pièces
Maison neuve, 97 m²
Le Mans (72000)
Le Mans (72000)
Maison de 4 pièces
Maison neuve, 140 m²
Le Mans (72000)
Le Mans (72000)
Maison de 5 pièces
Maison neuve, 97 m²
Le Mans (72000)
Le Mans (72000)
Maison de 5 pièces
Programmes à proximité
LES BOSQUETS TR.1
Le Mans (72000)
Le Mans (72000)
Appartements de 1 à 4 pièces
Livraison 4ème trimestre 2027
Histoire & Patrimoine Une adresse de caractère au cœur du Vieux-Mans
Le Mans (72000)
Le Mans (72000)
Appartement de 2 pièces
Livraison 3ème trimestre 2025
Néméa Le Mans Université
Le Mans (72000)
Le Mans (72000)
Appartements de 1 pièce
Livraison 2ème trimestre 2027
Epsilon
Le Mans (72000)
Le Mans (72000)
Appartements de 1 à 3 pièces
Livraison 4ème trimestre 2027
Contacter MAINE CONSTRUCTION pour recevoir plus d'informations
Remplissez le formulaire ci-dessous, vos informations sont transmises directement au constructeur qui vous contactera par email ou par téléphone afin de traiter votre demande. En savoir plus.