Maison neuve, 150 m² - Le Faou (29590)
394 852 €
Le Faou (29590)
Proposée par MAISONS DE L'AVENIR – 5 pièces - 4 chambres - terrain 407 m²
|
|
| MAISONS DE L'AVENIR |
| (63 avis) |
- Demande d'information
- Prendre rendez-vous
MAISON À CONSTRUIRE : ceci est une annonce d'une maison neuve à construire.
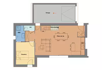
VENTE d'une maison T5 (150 m²) au Faou
En centre-ville - Au Faou (29590), maison neuve en vente de 5 pièces, 2 niveaux, 150 m² et 407 m² de terrain. Son intérieur comporte quatre chambres, une cuisine et deux salles de bains.
À proximité : gare (Pont-de-Buis), École Élémentaire Publique du Faou, tennis, commerces, boulangeries, supermarché et épiceries. Accès nationale N165 à 1 km. Brest à 29 km.
Le prix de vente de cette maison de 5 pièces est de 394 852 €.
Prenez contact avec Sami ALKIS pour plus d'informations sur la maison ou sur les démarches à suivre. Donnez vie à vos projets immobiliers avec Maisons de l'Avenir Guipavas.
Référence : SA2365636_1
Maisons de l’Avenir, constructeur de maisons individuelles, propose en collaboration avec ses partenaires fonciers, une sélection de terrains constructibles, selon disponibilité, pour la construction de maisons neuves définies par le constructeur, avec un contrat de construction de maison individuelle, dans le cadre de la loi du 19/12/1990. Prix net, hors frais notariés, d'enregistrement et de publicité foncière
Terrain proposé au prix de : 49 000 €
Maison proposée au prix de : 345 852 €
Etiquette énergie : A. Assurances et garanties du constructeur (RC professionnelle, décennale, dommage ouvrage, Garantie de livraison à prix et délai convenu).
Les informations sur les risques auxquels ce bien est exposé sont disponibles sur le site Géorisques : www.georisques.gouv.fr
En centre-ville - Au Faou (29590), maison neuve en vente de 5 pièces, 2 niveaux, 150 m² et 407 m² de terrain. Son intérieur comporte quatre chambres, une cuisine et deux salles de bains.
À proximité : gare (Pont-de-Buis), École Élémentaire Publique du Faou, tennis, commerces, boulangeries, supermarché et épiceries. Accès nationale N165 à 1 km. Brest à 29 km.
Le prix de vente de cette maison de 5 pièces est de 394 852 €.
Prenez contact avec Sami ALKIS pour plus d'informations sur la maison ou sur les démarches à suivre. Donnez vie à vos projets immobiliers avec Maisons de l'Avenir Guipavas.
Référence : SA2365636_1
Maisons de l’Avenir, constructeur de maisons individuelles, propose en collaboration avec ses partenaires fonciers, une sélection de terrains constructibles, selon disponibilité, pour la construction de maisons neuves définies par le constructeur, avec un contrat de construction de maison individuelle, dans le cadre de la loi du 19/12/1990. Prix net, hors frais notariés, d'enregistrement et de publicité foncière
Terrain proposé au prix de : 49 000 €
Maison proposée au prix de : 345 852 €
Etiquette énergie : A. Assurances et garanties du constructeur (RC professionnelle, décennale, dommage ouvrage, Garantie de livraison à prix et délai convenu).
Les informations sur les risques auxquels ce bien est exposé sont disponibles sur le site Géorisques : www.georisques.gouv.fr
- Prix
-
- Prix total : 394 852 €
- Prix du modèle de maison : 345 852 €
- Prix du terrain : 49 000 €
- Terrain
-
- Surface : 407 m²
- Maison
-
- Surface : 150 m²
- Pièces : 5
- Chambres : 4
- Garage : 1
- Être rappelé par un conseiller
- Demander plus d’infos
- Demande d'information
Le Faou (29590)
Maisons à proximité
Maison neuve, 92 m²
Le Faou (29590)
Le Faou (29590)
Maison de 4 pièces
Maison neuve, 115 m²
Le Faou (29590)
Le Faou (29590)
Maison de 4 pièces
Maison neuve, 127 m²
Le Faou (29590)
Le Faou (29590)
Maison de 5 pièces
Maison neuve, 57 m²
Le Faou (29590)
Le Faou (29590)
Maison de 3 pièces
Maison neuve, 113 m²
Le Faou (29590)
Le Faou (29590)
Maison de 5 pièces
Maison neuve, 70 m²
Le Faou (29590)
Le Faou (29590)
Maison de 4 pièces
Programmes à proximité
QUAI ELORN
Landerneau (29800)
Landerneau (29800)
Appartements de 3 à 4 pièces
Livraison 2ème trimestre 2027
KOYA 3
Guipavas (29490)
Guipavas (29490)
Appartements de 2 pièces
Livraison 2ème trimestre 2028
KOYA 2
Guipavas (29490)
Guipavas (29490)
Appartements de 3 à 4 pièces
Livraison 1er trimestre 2027
IROIZ 2
Crozon (29160)
Crozon (29160)
Appartements de 2 à 4 pièces
Livraison 4ème trimestre 2027
IROIZ
Crozon (29160)
Crozon (29160)
Appartements de 2 à 3 pièces
Livraison 4ème trimestre 2026
Contacter MAISONS DE L'AVENIR pour recevoir plus d'informations
Remplissez le formulaire ci-dessous, vos informations sont transmises directement au constructeur qui vous contactera par email ou par téléphone afin de traiter votre demande. En savoir plus.