Maison neuve, 120 m² - Le Cormier (27120)
336 522 €
Le Cormier (27120)
Proposée par MAISONS BALENCY – 5 pièces - 3 chambres - terrain 800 m²
|
|
| MAISONS BALENCY |
- Demande d'information
- Prendre rendez-vous
MAISON À CONSTRUIRE : ceci est une annonce d'une maison neuve à construire.
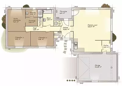
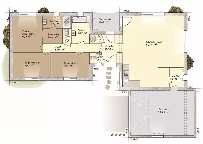
A faire construire, cette élégante maison de 120 m² au Cormier.
A quelques kilomètres d'Évreux, au Cormier (27120), notre agence Maisons Balency Gravigny est ravie de vous proposer cette maison de 5 pièces à construire sur 800 m² de terrain.
Conçue de plain-pied, elle comporte trois chambres, une cuisine et deux salles de bains.
Les nationales N13 et N154 sont accessibles à moins de 8 km.
Ce projet Maison + terrain est au prix 336 522€.
Contactez notre agence Maisons Balency Gravigny, pour plus de renseignements.
Notre conseillère commerciale Élodie DUPRÉ ) sera ravie de vous répondre.
Donnez vie à vos projets immobiliers avec Maisons Balency Gravigny.
Annonce proposée par un Agent Commercial Partenaire.
Référence : ED2430605_1
Terrain proposé par un partenaire foncier selon disponibilités et autorisation de publicité au prix de 65 000 €. Hors droit d'enregistrement et frais de notaire. Terrain + Maison proposés au prix de 336 522 € (Hors branchements et raccordements, papiers peints, peintures, revêtement de sol dans les chambres. Tarif modifiable sans préavis). Etiquette énergie : A. Différents modèles disponibles pour ce terrain. Assurances et garanties du constructeur (RC professionnelle, décennale, dommage ouvrage, garantie de remboursement de l'acompte, livraison à prix et délai convenu) : HEXAOM Services est enregistré auprès de l'ORIAS en tant que Courtier en financement, Niveau 1, sous le numéro 14001345.
Les informations sur les risques auxquels ce bien est exposé sont disponibles sur le site Géorisques : www.georisques.gouv.fr
A quelques kilomètres d'Évreux, au Cormier (27120), notre agence Maisons Balency Gravigny est ravie de vous proposer cette maison de 5 pièces à construire sur 800 m² de terrain.
Conçue de plain-pied, elle comporte trois chambres, une cuisine et deux salles de bains.
Les nationales N13 et N154 sont accessibles à moins de 8 km.
Ce projet Maison + terrain est au prix 336 522€.
Contactez notre agence Maisons Balency Gravigny, pour plus de renseignements.
Notre conseillère commerciale Élodie DUPRÉ ) sera ravie de vous répondre.
Donnez vie à vos projets immobiliers avec Maisons Balency Gravigny.
Annonce proposée par un Agent Commercial Partenaire.
Référence : ED2430605_1
Terrain proposé par un partenaire foncier selon disponibilités et autorisation de publicité au prix de 65 000 €. Hors droit d'enregistrement et frais de notaire. Terrain + Maison proposés au prix de 336 522 € (Hors branchements et raccordements, papiers peints, peintures, revêtement de sol dans les chambres. Tarif modifiable sans préavis). Etiquette énergie : A. Différents modèles disponibles pour ce terrain. Assurances et garanties du constructeur (RC professionnelle, décennale, dommage ouvrage, garantie de remboursement de l'acompte, livraison à prix et délai convenu) : HEXAOM Services est enregistré auprès de l'ORIAS en tant que Courtier en financement, Niveau 1, sous le numéro 14001345.
Les informations sur les risques auxquels ce bien est exposé sont disponibles sur le site Géorisques : www.georisques.gouv.fr
- Prix
-
- Prix total : 336 522 €
- Prix du modèle de maison : 271 522 €
- Prix du terrain : 65 000 €
- Terrain
-
- Surface : 800 m²
- Maison
-
- Surface : 120 m²
- Pièces : 5
- Chambres : 3
- Garage : 1
- Être rappelé par un conseiller
- Demander plus d’infos
- Demande d'information
Le Cormier (27120)
Maisons à proximité
Maison neuve, 117 m²
Le Cormier (27120)
Le Cormier (27120)
Maison de 6 pièces
Maison neuve, 141 m²
Fresney (27220)
Fresney (27220)
Maison de 6 pièces
Maison neuve, 114 m²
Fresney (27220)
Fresney (27220)
Maison de 6 pièces
Maison neuve, 114 m²
Fresney (27220)
Fresney (27220)
Maison de 5 pièces
Maison neuve, 92 m²
Fresney (27220)
Fresney (27220)
Maison de 5 pièces
Maison neuve, 100 m²
Bretagnolles (27220)
Bretagnolles (27220)
Maison de 6 pièces
Programmes à proximité
Les Terrasses du Château
Ménilles (27120)
Ménilles (27120)
Appartements de 2 à 4 pièces
Livraison 4ème trimestre 2027
Le Jardin des Officiers
Vernon (27200)
Vernon (27200)
Appartements de 2 à 4 pièces
Livraison 2ème trimestre 2026
LE 25 BULLY
Vernon (27200)
Vernon (27200)
Appartements de 1 à 2 pièces
Livraison 3ème trimestre 2027
LES JARDINS DE GAMILLY
Vernon (27200)
Vernon (27200)
Appartement de 2 pièces
Livraison 2ème trimestre 2026
DUC DE SULLY
Rosny-sur-Seine (78710)
Rosny-sur-Seine (78710)
Appartements de 2 à 5 pièces et maison de 4 pièces
Livraison 3ème trimestre 2027
Contacter MAISONS BALENCY pour recevoir plus d'informations
Remplissez le formulaire ci-dessous, vos informations sont transmises directement au constructeur qui vous contactera par email ou par téléphone afin de traiter votre demande. En savoir plus.