Maison neuve, 96 m² - Le Cannet-des-Maures (83340)

365 000 €
Le Cannet-des-Maures (83340)

Proposée par MAISONS FRANCE CONFORT – 4 pièces - 3 chambres - terrain 442 m²

MAISONS FRANCE CONFORT
MAISONS FRANCE CONFORT
(241 avis)
  • Demande d'information
MAISON À CONSTRUIRE : ceci est une annonce d'une maison neuve à construire.
Projet de construction au Cannet des Maures
Venez découvrir cette belle villa neuve très lumineuse qui vous séduira par son agencement optimal, et ses volumes.
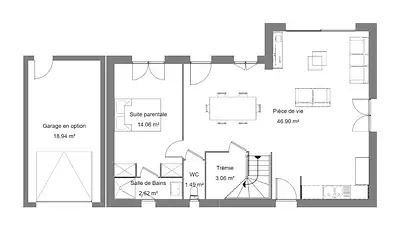
Elle dispose au rez de chaussée d'un hall d'entrée, une belle pièce de vie avec cuisine us, un cellier, et une suite parentale avec sa salle d'eau privative.
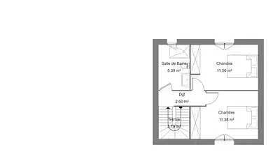
A l'étage, vous y trouverez un espace nuit avec 2 chambres et une salle de bain. Nombreux rangements.
Villa aux normes RE2020.
L'ensemble sur un terrain de 442m² situé dans un environnement calme sans vis à vis, à deux pas du centre-ville et de toutes ces commodités. L'autoroute A8/A57 se trouve à 5mn.
Votre projet clefs en mains à 365 000 euros incluant votre villa neuve, le terrain ainsi que le coût des raccordements.
.
Maisons France Confort constructeur de maisons individuelles leader en France. Entreprise familiale fondée en 1919.
Référence : VC2296545_2
Terrain proposé par un partenaire foncier selon disponibilités et autorisation de publicité au prix de 148 500 €. Hors droit d'enregistrement et frais de notaire. Maison proposée, avec un contrat de construction de maison individuelle, dans le cadre de la loi du 19/12/1990, au prix de 216 500 € (Hors branchements et raccordements, papiers peints, peintures, revêtement de sol dans les chambres, qui sont chiffrés dans les travaux qui restent à charge du client. Tarif modifiable sans préavis). Étiquette énergie : A. Différents modèles disponibles pour ce terrain. Assurances et garanties du constructeur comprises (RC professionnelle, décennale, dommage ouvrage).

Les informations sur les risques auxquels ce bien est exposé sont disponibles sur le site Géorisques : www.georisques.gouv.fr


Prix
  • Prix total : 365 000 €
  • Prix du modèle de maison : 216 500 €
  • Prix du terrain : 148 500 €

Terrain
  • Surface : 442 m²

Maison
  • Surface : 96 m²
  • Pièces : 4
  • Chambres : 3
  • Garage : 1

  • Être rappelé par un conseiller
  • Demander plus d’infos
  • Demande d'information
Le Cannet-des-Maures (83340)

Programmes à proximité

Castanea
Castanea
La Garde-Freinet (83680)

Appartements de 2 à 4 pièces
Livraison 1er trimestre 2028

Fleur du Nil
Fleur du Nil
Draguignan (83300)

Appartements de 2 à 3 pièces
Livraison 4ème trimestre 2026

Le domaine de la Fée
Le domaine de la Fée
Draguignan (83300)

Appartements de 2 pièces
Livraison 2ème trimestre 2026

Les Jardins de Novaia
Les Jardins de Novaia
Draguignan (83300)

Appartements de 2 à 3 pièces
Livraison 4ème trimestre 2027

Le Domaine des Tourdres
Le Domaine des Tourdres
Draguignan (83300)

Appartements de 3 à 4 pièces
Livraison 3ème trimestre 2029

Emménagez cette année au cœur du village
Emménagez cette année au cœur du village
Grimaud (83310)

Appartement de 4 pièces
Livraison 4ème trimestre 2025

Contacter MAISONS FRANCE CONFORT pour recevoir plus d'informations

Remplissez le formulaire ci-dessous, vos informations sont transmises directement au constructeur qui vous contactera par email ou par téléphone afin de traiter votre demande. En savoir plus.

Voir tous nos programmes immobiliers neufs au Cannet-des-Maures