Maison neuve, 100 m² - Le Breuil (03120)
215 044 €
Le Breuil (03120)
Proposée par MAISON ET JARDIN – 5 pièces - 4 chambres - terrain 977 m²
|
|
| Maison et Jardin |
- Demande d'information
- Prendre rendez-vous
MAISON À CONSTRUIRE : ceci est une annonce d'une maison neuve à construire.
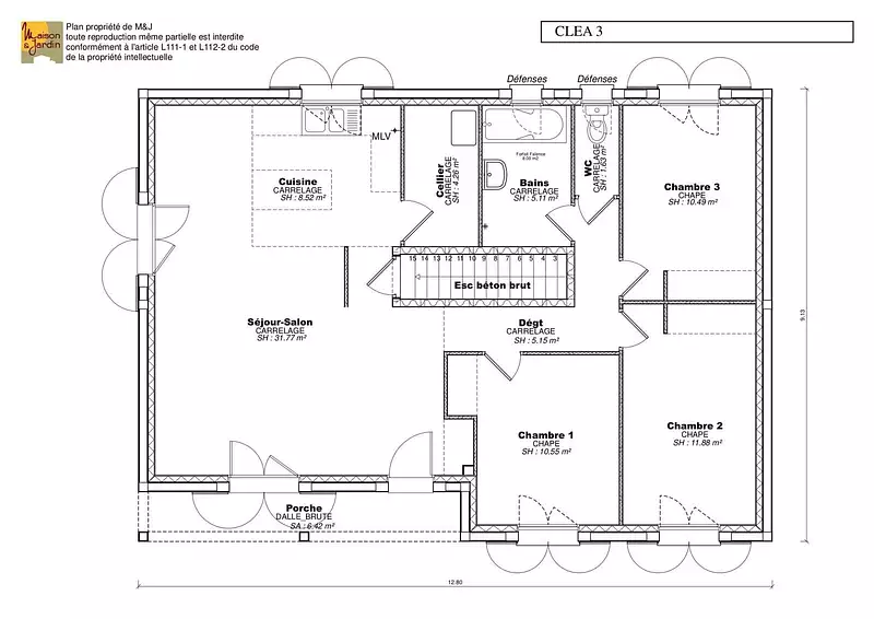
Nous vous proposons cette maison neuve, modèle Cléa, une conception architecturale idéale pour les terrains en pente, alliant fonctionnalité et esthétique. Avec une surface habitable de 100 m², cette demeure est parfaitement adaptée pour accueillir confortablement toute la famille, offrant 4 chambres réparties dans un agencement de 4 pièces bien pensé pour maximiser l'espace et la luminosité.
La maison Cléa se distingue par son vaste sous-sol et sa toiture modulable à 2 ou 4 versants, permettant une intégration harmonieuse au sein du paysage environnant. Cette caractéristique, en plus de son garage intégré, fait de Cléa le choix idéal pour les terrains pentus, offrant non seulement un espace de stationnement sécurisé mais aussi un volume supplémentaire pouvant être aménagé selon vos besoins – que ce soit pour une salle de jeux, un atelier, ou simplement pour du rangement supplémentaire.
L'aspect extérieur de la maison est entièrement personnalisable. Vous pouvez choisir la couleur de l'enduit de la façade pour qu'elle s'harmonise parfaitement avec la toiture à 4 pans, conférant à la maison un look élégant et accueillant. La galerie, située à l'avant, ajoute une dimension esthétique et pratique, offrant un espace extérieur couvert pour profiter des journées ensoleillées ou des soirées douces, tout en embellissant l'entrée de votre domicile.
Au-delà de son design et de sa fonctionnalité, la maison Cléa est conçue pour être basse consommation et répond aux exigences de la norme RE2020. Cela signifie que vous bénéficierez d'une maison non seulement respectueuse de l'environnement, mais aussi économique à long terme grâce à une réduction significative de vos factures énergétiques.
Choisir la maison Cléa, c'est opter pour une demeure qui s'adapte à vos envies et à votre mode de vie, tout en vous assurant confort, sécurité et durabilité. Ne manquez pas l'opportunité de construire la maison de vos rêves, parfaitement intégrée à son environnement et conçue pour répondre
Référence : 13679
Les informations sur les risques auxquels ce bien est exposé sont disponibles sur le site Géorisques : www.georisques.gouv.fr
La maison Cléa se distingue par son vaste sous-sol et sa toiture modulable à 2 ou 4 versants, permettant une intégration harmonieuse au sein du paysage environnant. Cette caractéristique, en plus de son garage intégré, fait de Cléa le choix idéal pour les terrains pentus, offrant non seulement un espace de stationnement sécurisé mais aussi un volume supplémentaire pouvant être aménagé selon vos besoins – que ce soit pour une salle de jeux, un atelier, ou simplement pour du rangement supplémentaire.
L'aspect extérieur de la maison est entièrement personnalisable. Vous pouvez choisir la couleur de l'enduit de la façade pour qu'elle s'harmonise parfaitement avec la toiture à 4 pans, conférant à la maison un look élégant et accueillant. La galerie, située à l'avant, ajoute une dimension esthétique et pratique, offrant un espace extérieur couvert pour profiter des journées ensoleillées ou des soirées douces, tout en embellissant l'entrée de votre domicile.
Au-delà de son design et de sa fonctionnalité, la maison Cléa est conçue pour être basse consommation et répond aux exigences de la norme RE2020. Cela signifie que vous bénéficierez d'une maison non seulement respectueuse de l'environnement, mais aussi économique à long terme grâce à une réduction significative de vos factures énergétiques.
Choisir la maison Cléa, c'est opter pour une demeure qui s'adapte à vos envies et à votre mode de vie, tout en vous assurant confort, sécurité et durabilité. Ne manquez pas l'opportunité de construire la maison de vos rêves, parfaitement intégrée à son environnement et conçue pour répondre
Référence : 13679
Les informations sur les risques auxquels ce bien est exposé sont disponibles sur le site Géorisques : www.georisques.gouv.fr
- Prix
-
- Prix total : 215 044 €
- Prix du modèle de maison : 203 320 €
- Prix du terrain : 11 724 €
- Terrain
-
- Surface : 977 m²
- Maison
-
- Surface : 100 m²
- Pièces : 5
- Chambres : 4
- Être rappelé par un conseiller
- Demander plus d’infos
- Demande d'information
Le Breuil (03120)
Maisons à proximité
Maison neuve, 85 m²
Le Breuil (03120)
Le Breuil (03120)
Maison de 4 pièces
Maison neuve, 75 m²
Le Breuil (03120)
Le Breuil (03120)
Maison de 3 pièces
Maison neuve, 90 m²
Lapalisse (03120)
Lapalisse (03120)
Maison de 4 pièces
Maison neuve, 93 m²
Lapalisse (03120)
Lapalisse (03120)
Maison de 4 pièces
Maison neuve, 100 m²
Lapalisse (03120)
Lapalisse (03120)
Maison de 5 pièces
Maison neuve, 96 m²
Saint-Etienne-de-Vicq (03300)
Saint-Etienne-de-Vicq (03300)
Maison de 5 pièces
Programmes à proximité
A 10min à pied du centre-ville de Vichy
Vichy (03200)
Vichy (03200)
Appartements de 2 à 4 pièces
Livraison 4ème trimestre 2027
Contacter MAISON ET JARDIN pour recevoir plus d'informations
Remplissez le formulaire ci-dessous, vos informations sont transmises directement au constructeur qui vous contactera par email ou par téléphone afin de traiter votre demande. En savoir plus.