Maison neuve, 80 m² - Lannemezan (65300)
163 000 €
Lannemezan (65300)
Proposée par MAISONS BRUNO PETIT GHPA – 3 pièces - 2 chambres - terrain 900 m²
|
|
| MAISONS BRUNO PETIT GHPA |
| (25 avis) |
- Demande d'information
- Prendre rendez-vous
MAISON À CONSTRUIRE : ceci est une annonce d'une maison neuve à construire.
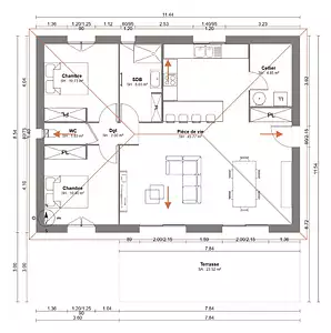
Belle maison plain pied de 80m2.Profitez d'une grande pièce de vie fonctionnelle et baignée de lumière, un coin nuit séparé avec 2 chambres équipées de placards, 1 salle de bain avec grande douche à l'italienne, 1 WC séparé.
Construite selon les normes RE2020, cette maison vous garantit efficacité énergétique, confort thermique et économie d'énergie. .
Référence : VP2323807_1
Terrain proposé par un partenaire foncier selon disponibilités et autorisation de publicité au prix de 28 000 €. Hors droit d'enregistrement et frais de notaire. Maison proposée, avec un contrat de construction de maison individuelle, dans le cadre de la loi du 19/12/1990, au prix de 135 000 € (Hors branchements et raccordements, papiers peints, peintures, revêtement de sol dans les chambres, qui sont chiffrés dans les travaux qui restent à charge du client. Tarif modifiable sans préavis). Étiquette énergie : A. Différents modèles disponibles pour ce terrain. Assurances et garanties du constructeur comprises (RC professionnelle, décennale, dommage ouvrage).
Les informations sur les risques auxquels ce bien est exposé sont disponibles sur le site Géorisques : www.georisques.gouv.fr
Construite selon les normes RE2020, cette maison vous garantit efficacité énergétique, confort thermique et économie d'énergie. .
Référence : VP2323807_1
Terrain proposé par un partenaire foncier selon disponibilités et autorisation de publicité au prix de 28 000 €. Hors droit d'enregistrement et frais de notaire. Maison proposée, avec un contrat de construction de maison individuelle, dans le cadre de la loi du 19/12/1990, au prix de 135 000 € (Hors branchements et raccordements, papiers peints, peintures, revêtement de sol dans les chambres, qui sont chiffrés dans les travaux qui restent à charge du client. Tarif modifiable sans préavis). Étiquette énergie : A. Différents modèles disponibles pour ce terrain. Assurances et garanties du constructeur comprises (RC professionnelle, décennale, dommage ouvrage).
Les informations sur les risques auxquels ce bien est exposé sont disponibles sur le site Géorisques : www.georisques.gouv.fr
- Prix
-
- Prix total : 163 000 €
- Prix du modèle de maison : 135 000 €
- Prix du terrain : 28 000 €
- Terrain
-
- Surface : 900 m²
- Maison
-
- Surface : 80 m²
- Pièces : 3
- Chambres : 2
- Être rappelé par un conseiller
- Demander plus d’infos
- Demande d'information
Lannemezan (65300)
Maisons à proximité
Maison neuve, 75 m²
Lannemezan (65300)
Lannemezan (65300)
Maison de 3 pièces
Maison neuve, 115 m²
Capvern (65130)
Capvern (65130)
Maison de 5 pièces
Maison neuve, 100 m²
Capvern (65130)
Capvern (65130)
Maison de 4 pièces
Maison neuve, 85 m²
Capvern (65130)
Capvern (65130)
Maison de 3 pièces
Maison neuve, 103 m²
Capvern (65130)
Capvern (65130)
Maison de 5 pièces
Maison neuve, 115 m²
Cuguron (31210)
Cuguron (31210)
Maison de 5 pièces
Programmes à proximité
Contacter MAISONS BRUNO PETIT GHPA pour recevoir plus d'informations
Remplissez le formulaire ci-dessous, vos informations sont transmises directement au constructeur qui vous contactera par email ou par téléphone afin de traiter votre demande. En savoir plus.