Maison neuve, 821 m² - Lachy (51120)
156 197 €
Lachy (51120)
Proposée par BABEAU SEGUIN AGENCE DE SÉZANNE (51) – CONSTRUCTE – 4 pièces - 3 chambres - terrain 801 m²
|
|
| Babeau Seguin Agence de Sézanne (51) – Constructe |
- Demande d'information
- Prendre rendez-vous
MAISON À CONSTRUIRE : ceci est une annonce d'une maison neuve à construire.
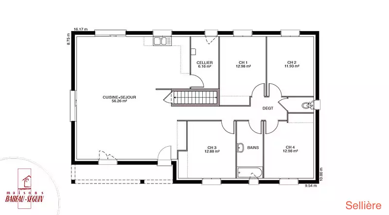
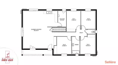
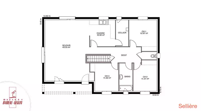
Sur ce terrain, nous vous proposons cette maison neuve, le modèle Sellière, conçue par Babeau-Seguin, constructeur reconnu pour offrir le meilleur rapport qualité/prix du marché. Avec une surface de 81 m², cette maison de plain-pied à combles perdus dispose de 4 pièces, dont 3 chambres, et est disponible en toiture 2 pans ou 4 pans, sans surcoût !
La priorité est ici donnée au séjour traversant qui offre une belle superficie et une superbe luminosité, quelle que soit l’implantation et l’orientation. Grâce à cela et à sa basse consommation, la Sellière vous offre un confort exemplaire.
Cette maison est conforme à la norme RE2020, garantissant une performance énergétique optimale et des économies sur vos factures. De plus, elle est équipée de domotique pour un confort de vie moderne et pratique.
Les options les plus demandées par nos clients, telles que la toiture 2 pans ou 4 pans et la domotique, sont disponibles pour personnaliser votre maison selon vos préférences. Vous avez également le choix entre un garage ou un sous-sol pour répondre à vos besoins de rangement et de stationnement.
Ne manquez pas cette opportunité de construire la maison de vos rêves avec Babeau-Seguin, et profitez d’un confort de vie exceptionnel dans une maison basse consommation et respectueuse de l’environnement.
Référence : 22912
Les informations sur les risques auxquels ce bien est exposé sont disponibles sur le site Géorisques : www.georisques.gouv.fr
La priorité est ici donnée au séjour traversant qui offre une belle superficie et une superbe luminosité, quelle que soit l’implantation et l’orientation. Grâce à cela et à sa basse consommation, la Sellière vous offre un confort exemplaire.
Cette maison est conforme à la norme RE2020, garantissant une performance énergétique optimale et des économies sur vos factures. De plus, elle est équipée de domotique pour un confort de vie moderne et pratique.
Les options les plus demandées par nos clients, telles que la toiture 2 pans ou 4 pans et la domotique, sont disponibles pour personnaliser votre maison selon vos préférences. Vous avez également le choix entre un garage ou un sous-sol pour répondre à vos besoins de rangement et de stationnement.
Ne manquez pas cette opportunité de construire la maison de vos rêves avec Babeau-Seguin, et profitez d’un confort de vie exceptionnel dans une maison basse consommation et respectueuse de l’environnement.
Référence : 22912
Les informations sur les risques auxquels ce bien est exposé sont disponibles sur le site Géorisques : www.georisques.gouv.fr
- Prix
-
- Prix total : 156 197 €
- Prix du modèle de maison : 128 197 €
- Prix du terrain : 28 000 €
- Terrain
-
- Surface : 801 m²
- Maison
-
- Surface : 821 m²
- Pièces : 4
- Chambres : 3
- Être rappelé par un conseiller
- Demander plus d’infos
- Demande d'information
Lachy (51120)
Maisons à proximité
Maison neuve, 79 m²
Lachy (51120)
Lachy (51120)
Maison de 4 pièces
Maison neuve, 96 m²
Lachy (51120)
Lachy (51120)
Maison de 5 pièces
Maison neuve, 97 m²
Lachy (51120)
Lachy (51120)
Maison de 4 pièces
Maison neuve, 89 m²
Broyes (51120)
Broyes (51120)
Maison de 5 pièces
Maison neuve, 97 m²
Broyes (51120)
Broyes (51120)
Maison de 4 pièces
Maison neuve, 88 m²
Soizy-aux-Bois (51120)
Soizy-aux-Bois (51120)
Maison de 4 pièces
Programmes à proximité
Contacter BABEAU SEGUIN AGENCE DE SÉZANNE (51) – CONSTRUCTE pour recevoir plus d'informations
Remplissez le formulaire ci-dessous, vos informations sont transmises directement au constructeur qui vous contactera par email ou par téléphone afin de traiter votre demande. En savoir plus.