Maison neuve, 216 m² - Lacanau (33680)
1 185 000 €
Lacanau (33680)
Proposée par COULEUR VILLAS – 6 pièces - 5 chambres - terrain 800 m²
|
|
| Couleur Villas |
- Demande d'information
- Prendre rendez-vous
MAISON À CONSTRUIRE : ceci est une annonce d'une maison neuve à construire.
Situé sur les hauteurs de Lacanau Océan, dans un cadre résidentiel d'exception, ce terrain de 800 m² offre une opportunité rare au coeur d'un environnement recherché, calme et verdoyant.
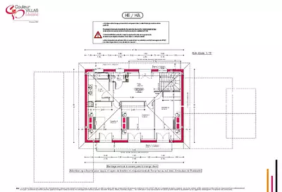
Le projet prévoit une maison de 216 m² habitables à l'architecture typique BOIS. Répartie sur deux niveaux, elle comprend 5 chambres ddont 3 salles de bain, ainsi qu'un vaste espace de vie lumineux avec un plafond rampant traditionnel ouvert sur l'extérieur et la piscine.
Le tout est agrémenté de balcon et terrasse pour vous offrir un véritable confort de vie extérieur.
Un projet d'exception, au coeur d'un secteur préservé et recherché de Lacanau Océan
.
Référence : AF2329518
Terrain proposé par un partenaire foncier selon disponibilité dans le cadre d’un projet de construction avec Couleur Villas. Les descriptions, photographies, surfaces et prix illustrant l’annonce sont fournies à titre indicatif et ne sont pas contractuels. Non soumis au DPE. Différents modèles disponibles.
Les informations sur les risques auxquels ce bien est exposé sont disponibles sur le site Géorisques : www.georisques.gouv.fr
Le projet prévoit une maison de 216 m² habitables à l'architecture typique BOIS. Répartie sur deux niveaux, elle comprend 5 chambres ddont 3 salles de bain, ainsi qu'un vaste espace de vie lumineux avec un plafond rampant traditionnel ouvert sur l'extérieur et la piscine.
Le tout est agrémenté de balcon et terrasse pour vous offrir un véritable confort de vie extérieur.
Un projet d'exception, au coeur d'un secteur préservé et recherché de Lacanau Océan
.
Référence : AF2329518
Terrain proposé par un partenaire foncier selon disponibilité dans le cadre d’un projet de construction avec Couleur Villas. Les descriptions, photographies, surfaces et prix illustrant l’annonce sont fournies à titre indicatif et ne sont pas contractuels. Non soumis au DPE. Différents modèles disponibles.
Les informations sur les risques auxquels ce bien est exposé sont disponibles sur le site Géorisques : www.georisques.gouv.fr
- Prix
-
- Prix total : 1 185 000 €
- Prix du modèle de maison : N.C.
- Prix du terrain : N.C.
- Terrain
-
- Surface : 800 m²
- Maison
-
- Surface : 216 m²
- Pièces : 6
- Chambres : 5
- Garage : 1
- Être rappelé par un conseiller
- Demander plus d’infos
- Demande d'information
Lacanau (33680)
Maisons à proximité
Maison neuve, 98 m²
Lacanau (33680)
Lacanau (33680)
Maison de 5 pièces
Maison neuve, 90 m²
Lacanau (33680)
Lacanau (33680)
Maison de 4 pièces
Maison neuve, 101 m²
Lacanau (33680)
Lacanau (33680)
Maison de 4 pièces
Maison neuve, 120 m²
Lacanau (33680)
Lacanau (33680)
Maison de 4 pièces
Maison neuve, 63 m²
Lacanau (33680)
Lacanau (33680)
Maison de 3 pièces
Maison neuve, 180 m²
Lacanau (33680)
Lacanau (33680)
Maison de 5 pièces
Programmes à proximité
Le Hameau des Ardillères
Salaunes (33160)
Salaunes (33160)
Appartement de 1 pièce et maison de 4 pièces
Livraison 4ème trimestre 2027
Les Allées Ostréica
Arès (33740)
Arès (33740)
Appartements de 1 à 5 pièces
Livraison 2ème trimestre 2026
Villa Aéria - ARES (33)
Arès (33740)
Arès (33740)
Appartements de 3 à 4 pièces
Livraison 1er trimestre 2026
Contacter COULEUR VILLAS pour recevoir plus d'informations
Remplissez le formulaire ci-dessous, vos informations sont transmises directement au constructeur qui vous contactera par email ou par téléphone afin de traiter votre demande. En savoir plus.