Maison neuve, 90 m² - Labastide-de-Virac (07150)
259 800 €
Labastide-de-Virac (07150)
Proposée par MAISONS FRANCE CONFORT – 4 pièces - 3 chambres - terrain 1 338 m²
|
|
| MAISONS FRANCE CONFORT |
- Demande d'information
- Prendre rendez-vous
MAISON À CONSTRUIRE : ceci est une annonce d'une maison neuve à construire.
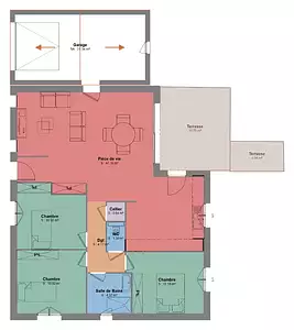
Maison de plain-pied de 90 m² - style traditionnel
Charmante maison de plain-pied en L d'environ 90 m², au style traditionnel et fonctionnel, idéale pour une famille ou pour un projet de résidence secondaire.
Elle se compose de :
Une belle pièce de vie traversante, lumineuse et conviviale,
Trois chambres confortables,
Une salle d'eau moderne équipée d'une grande douche, d'une vasque et d'un WC suspendu indépendant,
Un garage accolé pouvant être ajouté selon vos besoins.
Maison pensée pour allier confort, praticité et charme de l'habitat de plain-pied.
Référence : CB2319739_1
Terrain proposé par un partenaire foncier selon disponibilités et autorisation de publicité au prix de 93 900 €. Hors droit d'enregistrement et frais de notaire. Terrain + Maison proposés au prix de 165 900 € (Hors branchements et raccordements, papiers peints, peintures, revêtement de sol dans les chambres. Tarif modifiable sans préavis). Etiquette énergie : A. Différents modèles disponibles pour ce terrain. Assurances et garanties du constructeur (RC professionnelle, décennale, dommage ouvrage, garantie de remboursement de l'acompte, livraison à prix et délai convenu) : https://www.maisons-france-confort.fr/mentions-legales/. HEXAOM Services est enregistré auprès de l'ORIAS en tant que Courtier en financement, Niveau 1, sous le numéro 14001345.
Les informations sur les risques auxquels ce bien est exposé sont disponibles sur le site Géorisques : www.georisques.gouv.fr
Charmante maison de plain-pied en L d'environ 90 m², au style traditionnel et fonctionnel, idéale pour une famille ou pour un projet de résidence secondaire.
Elle se compose de :
Une belle pièce de vie traversante, lumineuse et conviviale,
Trois chambres confortables,
Une salle d'eau moderne équipée d'une grande douche, d'une vasque et d'un WC suspendu indépendant,
Un garage accolé pouvant être ajouté selon vos besoins.
Maison pensée pour allier confort, praticité et charme de l'habitat de plain-pied.
Référence : CB2319739_1
Terrain proposé par un partenaire foncier selon disponibilités et autorisation de publicité au prix de 93 900 €. Hors droit d'enregistrement et frais de notaire. Terrain + Maison proposés au prix de 165 900 € (Hors branchements et raccordements, papiers peints, peintures, revêtement de sol dans les chambres. Tarif modifiable sans préavis). Etiquette énergie : A. Différents modèles disponibles pour ce terrain. Assurances et garanties du constructeur (RC professionnelle, décennale, dommage ouvrage, garantie de remboursement de l'acompte, livraison à prix et délai convenu) : https://www.maisons-france-confort.fr/mentions-legales/. HEXAOM Services est enregistré auprès de l'ORIAS en tant que Courtier en financement, Niveau 1, sous le numéro 14001345.
Les informations sur les risques auxquels ce bien est exposé sont disponibles sur le site Géorisques : www.georisques.gouv.fr
- Prix
-
- Prix total : 259 800 €
- Prix du modèle de maison : 165 900 €
- Prix du terrain : 93 900 €
- Terrain
-
- Surface : 1 338 m²
- Maison
-
- Surface : 90 m²
- Pièces : 4
- Chambres : 3
- Garage : 1
- Être rappelé par un conseiller
- Demander plus d’infos
- Demande d'information
Labastide-de-Virac (07150)
Maisons à proximité
Maison neuve, 83 m²
Labastide-de-Virac (07150)
Labastide-de-Virac (07150)
Maison de 5 pièces
Maison neuve, 96 m²
Labastide-de-Virac (07150)
Labastide-de-Virac (07150)
Maison de 6 pièces
Maison neuve, 110 m²
Labastide-de-Virac (07150)
Labastide-de-Virac (07150)
Maison de 4 pièces
Maison neuve, 90 m²
Labastide-de-Virac (07150)
Labastide-de-Virac (07150)
Maison de 4 pièces
Maison neuve, 100 m²
Labastide-de-Virac (07150)
Labastide-de-Virac (07150)
Maison de 4 pièces
Maison neuve, 96 m²
Labastide-de-Virac (07150)
Labastide-de-Virac (07150)
Maison de 6 pièces
Programmes à proximité
Contacter MAISONS FRANCE CONFORT pour recevoir plus d'informations
Remplissez le formulaire ci-dessous, vos informations sont transmises directement au constructeur qui vous contactera par email ou par téléphone afin de traiter votre demande. En savoir plus.
Voir tous nos programmes immobiliers neufs à Labastide-de-Virac