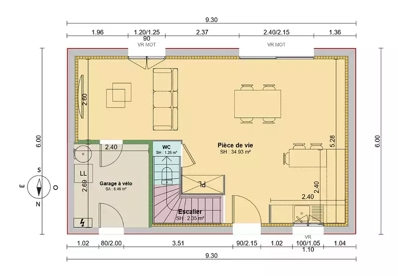
Maison neuve, 80 m² - La Rochette (05000)
229 000 €
La Rochette (05000)
Proposée par MAISONS FRANCE CONFORT – 4 pièces - 3 chambres - terrain 209 m²
|
|
| MAISONS FRANCE CONFORT |
- Demande d'information
- Prendre rendez-vous
MAISON À CONSTRUIRE : ceci est une annonce d'une maison neuve à construire.
🏡 Devenez propriétaire à La Rochette - Maison 80 m² + Terrain - 229 000 €
Maisons France Confort - Agence de Gap vous propose, dans un nouveau lotissement à La Rochette, à proximité immédiate de Gap, la construction d'une maison moderne de 80 m² parfaitement pensée pour les primo-accédants.
✨ Atouts de votre projet :
Maison neuve, moderne et économe en énergie
Espaces fonctionnels et lumineux
Terrain idéalement situé, proche des écoles, commerces et services
Accession facilitée grâce au PTZ (Prêt à Taux Zéro)
💶 Prix clé en main : 229 000 € (terrain + maison)
Avec Maisons France Confort, vous bénéficiez de l'expérience du constructeur N°1 en France et sur le département depuis plus de 18 ans, ainsi que de toutes les garanties du contrat CCMI pour construire en toute sérénité.💡 Déjà plus de 100 000 familles nous ont fait confiance, pourquoi pas vous ?
Référence : BDS2280197_2
Terrain proposé par un partenaire foncier selon disponibilités et autorisation de publicité au prix de 52 000 €. Hors droit d'enregistrement et frais de notaire. Maison proposée, avec un contrat de construction de maison individuelle, dans le cadre de la loi du 19/12/1990, au prix de 177 000 € (Hors branchements et raccordements, papiers peints, peintures, revêtement de sol dans les chambres, qui sont chiffrés dans les travaux qui restent à charge du client. Tarif modifiable sans préavis). Étiquette énergie : A. Différents modèles disponibles pour ce terrain. Assurances et garanties du constructeur comprises (RC professionnelle, décennale, dommage ouvrage).
Les informations sur les risques auxquels ce bien est exposé sont disponibles sur le site Géorisques : www.georisques.gouv.fr
Maisons France Confort - Agence de Gap vous propose, dans un nouveau lotissement à La Rochette, à proximité immédiate de Gap, la construction d'une maison moderne de 80 m² parfaitement pensée pour les primo-accédants.
✨ Atouts de votre projet :
Maison neuve, moderne et économe en énergie
Espaces fonctionnels et lumineux
Terrain idéalement situé, proche des écoles, commerces et services
Accession facilitée grâce au PTZ (Prêt à Taux Zéro)
💶 Prix clé en main : 229 000 € (terrain + maison)
Avec Maisons France Confort, vous bénéficiez de l'expérience du constructeur N°1 en France et sur le département depuis plus de 18 ans, ainsi que de toutes les garanties du contrat CCMI pour construire en toute sérénité.💡 Déjà plus de 100 000 familles nous ont fait confiance, pourquoi pas vous ?
Référence : BDS2280197_2
Terrain proposé par un partenaire foncier selon disponibilités et autorisation de publicité au prix de 52 000 €. Hors droit d'enregistrement et frais de notaire. Maison proposée, avec un contrat de construction de maison individuelle, dans le cadre de la loi du 19/12/1990, au prix de 177 000 € (Hors branchements et raccordements, papiers peints, peintures, revêtement de sol dans les chambres, qui sont chiffrés dans les travaux qui restent à charge du client. Tarif modifiable sans préavis). Étiquette énergie : A. Différents modèles disponibles pour ce terrain. Assurances et garanties du constructeur comprises (RC professionnelle, décennale, dommage ouvrage).
Les informations sur les risques auxquels ce bien est exposé sont disponibles sur le site Géorisques : www.georisques.gouv.fr
- Prix
-
- Prix total : 229 000 €
- Prix du modèle de maison : 177 000 €
- Prix du terrain : 52 000 €
- Terrain
-
- Surface : 209 m²
- Maison
-
- Surface : 80 m²
- Pièces : 4
- Chambres : 3
- Garage : 1
- Être rappelé par un conseiller
- Demander plus d’infos
- Demande d'information
La Rochette (05000)
Maisons à proximité
Maison neuve, 78 m²
La Rochette (05000)
La Rochette (05000)
Maison de 4 pièces
Maison neuve, 65 m²
La Rochette (05000)
La Rochette (05000)
Maison de 3 pièces
Maison neuve, 50 m²
La Rochette (05000)
La Rochette (05000)
Maison de 3 pièces
Maison neuve, 105 m²
La Rochette (05000)
La Rochette (05000)
Maison de 5 pièces
Maison neuve, 70 m²
La Rochette (05000)
La Rochette (05000)
Maison de 3 pièces
Maison neuve, 65 m²
La Rochette (05000)
La Rochette (05000)
Maison de 3 pièces
Programmes à proximité
COEUR NATURE
Gap (05000)
Gap (05000)
Appartements de 2 à 5 pièces
Livraison 4ème trimestre 2026
Le Domaine de Romette
Gap (05000)
Gap (05000)
Appartements de 4 pièces et maisons de 3 à 4 pièces
Livraison 1er trimestre 2027
Le Clos de Chabanas
Gap (05000)
Gap (05000)
Appartements de 2 à 4 pièces
Livraison 4ème trimestre 2027
Contacter MAISONS FRANCE CONFORT pour recevoir plus d'informations
Remplissez le formulaire ci-dessous, vos informations sont transmises directement au constructeur qui vous contactera par email ou par téléphone afin de traiter votre demande. En savoir plus.