Maison neuve, 108 m² - La Rochefoucauld-en-Angoumois (16110)
185 420 €
La Rochefoucauld-en-Angoumois (16110)
Proposée par BABEAU SEGUIN AGENCE D’ANGOULÊME – CHARENTE (16) – 5 pièces - 4 chambres - terrain 1 290 m²
|
|
| Babeau Seguin Agence d’Angoulême – Charente (16) |
- Demande d'information
- Prendre rendez-vous
MAISON À CONSTRUIRE : ceci est une annonce d'une maison neuve à construire.
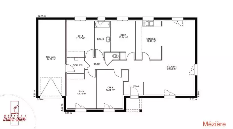
Sur ce terrain, nous vous proposons cette maison neuve, modèle Mézière, conçue par Babeau-Seguin, constructeur offrant le meilleur rapport qualité/prix du marché. Avec une surface de 108 m², cette maison basse consommation, conforme à la RE2020, saura répondre à toutes vos attentes.
La Mézière se distingue par son plan en L, disponible en version 2 pans ou 4 pans, et ses 4 chambres spacieuses réparties sur 4 pièces. Grâce à ses nombreuses versions, elle sait séduire et s’adapter aux besoins de chacun, ce qui fait de la Mézière une véritable maison sur mesure.
Les options les plus demandées par nos clients, telles que les menuiseries en aluminium, la domotique, ainsi que le garage ou le sous-sol, sont disponibles pour personnaliser votre maison selon vos envies et besoins.
Véritable coup de cœur pour de nombreux clients Babeau-Seguin, la Mézière est facilement modifiable, ce qui justifie pleinement son succès. Craquerez-vous aussi pour elle ?
N'attendez plus pour découvrir cette maison qui répondra aux besoins de nombreuses familles. Contactez-nous pour plus d'informations et pour organiser une visite.
Référence : 70383
Les informations sur les risques auxquels ce bien est exposé sont disponibles sur le site Géorisques : www.georisques.gouv.fr
La Mézière se distingue par son plan en L, disponible en version 2 pans ou 4 pans, et ses 4 chambres spacieuses réparties sur 4 pièces. Grâce à ses nombreuses versions, elle sait séduire et s’adapter aux besoins de chacun, ce qui fait de la Mézière une véritable maison sur mesure.
Les options les plus demandées par nos clients, telles que les menuiseries en aluminium, la domotique, ainsi que le garage ou le sous-sol, sont disponibles pour personnaliser votre maison selon vos envies et besoins.
Véritable coup de cœur pour de nombreux clients Babeau-Seguin, la Mézière est facilement modifiable, ce qui justifie pleinement son succès. Craquerez-vous aussi pour elle ?
N'attendez plus pour découvrir cette maison qui répondra aux besoins de nombreuses familles. Contactez-nous pour plus d'informations et pour organiser une visite.
Référence : 70383
Les informations sur les risques auxquels ce bien est exposé sont disponibles sur le site Géorisques : www.georisques.gouv.fr
- Prix
-
- Prix total : 185 420 €
- Prix du modèle de maison : 166 920 €
- Prix du terrain : 18 500 €
- Terrain
-
- Surface : 1 290 m²
- Maison
-
- Surface : 108 m²
- Pièces : 5
- Chambres : 4
- Être rappelé par un conseiller
- Demander plus d’infos
- Demande d'information
La Rochefoucauld-en-Angoumois (16110)
Maisons à proximité
Maison neuve, 89 m²
La Rochefoucauld-en-Angoumois (16110)
La Rochefoucauld-en-Angoumois (16110)
Maison de 4 pièces
Maison neuve, 73 m²
La Rochefoucauld-en-Angoumois (16110)
La Rochefoucauld-en-Angoumois (16110)
Maison de 4 pièces
Maison neuve, 79 m²
Agris (16110)
Agris (16110)
Maison de 4 pièces
Maison neuve, 88 m²
Agris (16110)
Agris (16110)
Maison de 4 pièces
Maison neuve, 79 m²
Pranzac (16110)
Pranzac (16110)
Maison de 4 pièces
Maison neuve, 79 m²
Pranzac (16110)
Pranzac (16110)
Maison de 4 pièces
Programmes à proximité
Contacter BABEAU SEGUIN AGENCE D’ANGOULÊME – CHARENTE (16) pour recevoir plus d'informations
Remplissez le formulaire ci-dessous, vos informations sont transmises directement au constructeur qui vous contactera par email ou par téléphone afin de traiter votre demande. En savoir plus.
Voir tous nos programmes immobiliers neufs à La Rochefoucauld-en-Angoumois