Maison neuve, 129 m² - La Motte (83920)

525 000 €
La Motte (83920)

Proposée par MAISONS FRANCE CONFORT – 5 pièces - 4 chambres - terrain 1 110 m²

MAISONS FRANCE CONFORT
MAISONS FRANCE CONFORT
(244 avis)
  • Demande d'information
MAISON À CONSTRUIRE : ceci est une annonce d'une maison neuve à construire.
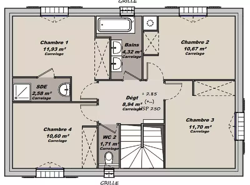
Maisons France Confort vous propose cette belle bastide Provençale qui vous offrira de beaux volumes harmonieux. Agréable et lumineuse, elle se compose d'une grande pièce de vie au RDC avec cuisine ouverte et cellier/buanderie. A l'étage, la partie nuit offre un bel espace palier qui dessert 1 suite parentale ainsi que 3 autres chambres et une SDB. Cet agencement permet une bonne isolation entre la partie nuit et la partie jour, idéal lorsque l'on a besoin de calme pour télétravailler ou pour les enfants... Cette version se décline également en version contemporaine.
CONTACTEZ Alice GELOSA au 06.28.31.68.00 pour l'étude de votre projet personnalisé ! Maisons France Confort Trans en Provence
Référence : AG2401698_1
Terrain proposé par un partenaire foncier selon disponibilités et autorisation de publicité au prix de 250 000 €. Hors droit d'enregistrement et frais de notaire. Terrain + Maison proposés au prix de 275 000 € (Hors branchements et raccordements, papiers peints, peintures, revêtement de sol dans les chambres. Tarif modifiable sans préavis). Etiquette énergie : A. Différents modèles disponibles pour ce terrain. Assurances et garanties du constructeur (RC professionnelle, décennale, dommage ouvrage, garantie de remboursement de l'acompte, livraison à prix et délai convenu) : https://www.maisons-france-confort.fr/mentions-legales/. HEXAOM Services est enregistré auprès de l'ORIAS en tant que Courtier en financement, Niveau 1, sous le numéro 14001345.

Les informations sur les risques auxquels ce bien est exposé sont disponibles sur le site Géorisques : www.georisques.gouv.fr


Prix
  • Prix total : 525 000 €
  • Prix du modèle de maison : 275 000 €
  • Prix du terrain : 250 000 €

Terrain
  • Surface : 1 110 m²

Maison
  • Surface : 129 m²
  • Pièces : 5
  • Chambres : 4

  • Être rappelé par un conseiller
  • Demander plus d’infos
  • Demande d'information
La Motte (83920)

Programmes à proximité

Le Patio des Lys
Le Patio des Lys
Le Muy (83490)

Appartements de 3 à 4 pièces
Livraison 2ème trimestre 2027

FLEUR DU NIL
FLEUR DU NIL
Draguignan (83300)

Appartement
Livraison 4ème trimestre 2026

Les Terrasses du Dragon
Les Terrasses du Dragon
Draguignan (83300)

Appartements de 2 à 3 pièces
Livraison 2ème trimestre 2028

Le domaine de la Fée
Le domaine de la Fée
Draguignan (83300)

Appartements de 2 pièces
Livraison 2ème trimestre 2026

Les Jardins de Novaia
Les Jardins de Novaia
Draguignan (83300)

Appartements de 2 à 3 pièces
Livraison 3ème trimestre 2028

Le Domaine des Tourdres
Le Domaine des Tourdres
Draguignan (83300)

Appartements de 3 à 4 pièces
Livraison 3ème trimestre 2029

Contacter MAISONS FRANCE CONFORT pour recevoir plus d'informations

Remplissez le formulaire ci-dessous, vos informations sont transmises directement au constructeur qui vous contactera par email ou par téléphone afin de traiter votre demande. En savoir plus.

Voir tous nos programmes immobiliers neufs à La Motte