Maison neuve, 76 m² - La Guierche (72380)
224 000 €
La Guierche (72380)
Proposée par MAINE CONSTRUCTION – 4 pièces - 2 chambres - terrain 564 m²
|
|
| Maine Construction |
- Demande d'information
- Prendre rendez-vous
MAISON À CONSTRUIRE : ceci est une annonce d'une maison neuve à construire.
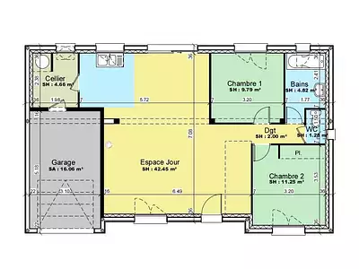
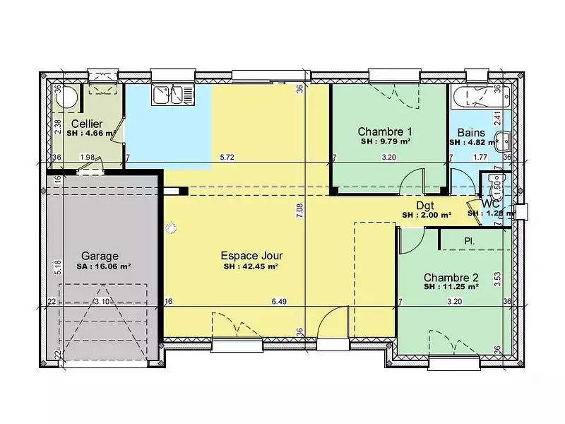
Maison de 4 pièces (76 m²) à vendre à La Guierche
Gare La Guierche à 165 m - En vente, idéalement située dans La Guierche (72380) : maison neuve 4 pièces de 76 m² sur un terrain de 564 m². Elle propose deux chambres, une cuisine et une salle de bains.
À proximité : gare (La Guierche), École Primaire Publique Robert Doisneau, crèche, tennis, bibliothèque, boulangerie et commerce. Accès autoroutes A11 et A28 à 9 km. Le Mans à 15 km.
Cette maison de 4 pièces est à vendre pour la somme de 224 000 €.
N'hésitez pas à prendre contact avec notre agence (LIVET Luc : 07-77-76-37-30) pour obtenir de plus amples renseignements sur la maison. Donnez vie à vos projets immobiliers avec Maine Construction Saint-Saturnin.
Référence : LL2312361_3
Terrain proposé par un partenaire foncier selon disponibilités et autorisation de publicité au prix de 70 000 €. Hors droit d'enregistrement et frais de notaire. Terrain + Maison proposés au prix de 154 000 € (Hors branchements et raccordements, papiers peints, peintures, revêtement de sol dans les chambres. Tarif modifiable sans préavis). Etiquette énergie : A. Différents modèles disponibles pour ce terrain. Assurances et garanties du constructeur (RC professionnelle, décennale, dommage ouvrage, garantie de remboursement de l'acompte, livraison à prix et délai convenu) : https://www.maine-construction.fr/mentions-legales/. HEXAOM Services est enregistré auprès de l'ORIAS en tant que Courtier en financement, Niveau 1, sous le numéro 14001345.
Les informations sur les risques auxquels ce bien est exposé sont disponibles sur le site Géorisques : www.georisques.gouv.fr
Gare La Guierche à 165 m - En vente, idéalement située dans La Guierche (72380) : maison neuve 4 pièces de 76 m² sur un terrain de 564 m². Elle propose deux chambres, une cuisine et une salle de bains.
À proximité : gare (La Guierche), École Primaire Publique Robert Doisneau, crèche, tennis, bibliothèque, boulangerie et commerce. Accès autoroutes A11 et A28 à 9 km. Le Mans à 15 km.
Cette maison de 4 pièces est à vendre pour la somme de 224 000 €.
N'hésitez pas à prendre contact avec notre agence (LIVET Luc : 07-77-76-37-30) pour obtenir de plus amples renseignements sur la maison. Donnez vie à vos projets immobiliers avec Maine Construction Saint-Saturnin.
Référence : LL2312361_3
Terrain proposé par un partenaire foncier selon disponibilités et autorisation de publicité au prix de 70 000 €. Hors droit d'enregistrement et frais de notaire. Terrain + Maison proposés au prix de 154 000 € (Hors branchements et raccordements, papiers peints, peintures, revêtement de sol dans les chambres. Tarif modifiable sans préavis). Etiquette énergie : A. Différents modèles disponibles pour ce terrain. Assurances et garanties du constructeur (RC professionnelle, décennale, dommage ouvrage, garantie de remboursement de l'acompte, livraison à prix et délai convenu) : https://www.maine-construction.fr/mentions-legales/. HEXAOM Services est enregistré auprès de l'ORIAS en tant que Courtier en financement, Niveau 1, sous le numéro 14001345.
Les informations sur les risques auxquels ce bien est exposé sont disponibles sur le site Géorisques : www.georisques.gouv.fr
- Prix
-
- Prix total : 224 000 €
- Prix du modèle de maison : 154 000 €
- Prix du terrain : 70 000 €
- Terrain
-
- Surface : 564 m²
- Maison
-
- Surface : 76 m²
- Pièces : 4
- Chambres : 2
- Garage : 1
- Être rappelé par un conseiller
- Demander plus d’infos
- Demande d'information
La Guierche (72380)
Maisons à proximité
Maison neuve, 103 m²
La Guierche (72380)
La Guierche (72380)
Maison de 5 pièces
Maison neuve, 108 m²
La Guierche (72380)
La Guierche (72380)
Maison de 6 pièces
Maison neuve, 68 m²
La Guierche (72380)
La Guierche (72380)
Maison de 3 pièces
Maison neuve, 91 m²
La Guierche (72380)
La Guierche (72380)
Maison de 5 pièces
Maison neuve, 77 m²
La Guierche (72380)
La Guierche (72380)
Maison de 5 pièces
Maison neuve, 82 m²
La Guierche (72380)
La Guierche (72380)
Maison de 4 pièces
Programmes à proximité
Néméa Le Mans Université
Le Mans (72000)
Le Mans (72000)
Appartements de 1 pièce
Livraison 2ème trimestre 2027
HARMONIE
Le Mans (72000)
Le Mans (72000)
Appartement de 4 pièces
Livraison 2ème trimestre 2026
LES BOSQUETS TR.1
Le Mans (72000)
Le Mans (72000)
Appartements de 1 à 4 pièces
Livraison 4ème trimestre 2027
Epsilon
Le Mans (72000)
Le Mans (72000)
Appartements de 1 à 3 pièces
Livraison 4ème trimestre 2027
Contacter MAINE CONSTRUCTION pour recevoir plus d'informations
Remplissez le formulaire ci-dessous, vos informations sont transmises directement au constructeur qui vous contactera par email ou par téléphone afin de traiter votre demande. En savoir plus.