Maison neuve, 131 m² - La Guerche-sur-l'Aubois (18150)
208 210 €
La Guerche-sur-l'Aubois (18150)
Proposée par STYL HABITAT AGENCE DE VARENNES-VAUZELLES / NEVERS – 5 pièces - 4 chambres - terrain 1 532 m²
|
|
| Styl habitat Agence de Varennes-Vauzelles / Nevers |
- Demande d'information
- Prendre rendez-vous
MAISON À CONSTRUIRE : ceci est une annonce d'une maison neuve à construire.
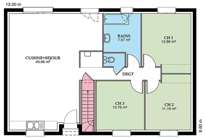
Nous vous proposons cette maison neuve, baptisée ""Aubetière"", un modèle d'habitation qui allie élégance et performance énergétique, conforme aux exigences de la norme RE2020. Avec une surface habitable de 131 m², cette maison est conçue pour offrir confort et bien-être à ses occupants.
L'Aubetière se distingue par son architecture moderne, disponible en versions à 2 ou 4 pans, permettant ainsi de s'adapter à vos préférences esthétiques et aux spécificités de votre terrain. Cette maison basse consommation est pensée pour minimiser son impact environnemental tout en garantissant des économies d'énergie significatives sur le long terme.
Le logement se compose de 4 chambres spacieuses, promettant intimité et confort pour chaque membre de la famille. Les 4 pièces de la maison sont réparties de manière à optimiser les espaces de vie, offrant une circulation fluide et agréable entre les différentes zones de la maison.
L'Aubetière est conçue selon les standards de la RE2020, la réglementation environnementale de 2020, qui vise à réduire les consommations énergétiques des bâtiments neufs et à améliorer leur performance environnementale. Cette maison neuve bénéficie donc des dernières innovations en matière d'isolation, de chauffage, et de production d'énergie renouvelable, assurant un confort optimal en toutes saisons tout en réduisant l'empreinte écologique.
En choisissant l'Aubetière, vous optez pour une maison à la pointe de la technologie, conçue pour répondre aux défis de demain. Son design soigné et ses performances énergétiques en font un lieu de vie idéal pour ceux qui cherchent à allier qualité de vie et respect de l'environnement.
N'attendez plus pour faire de l'Aubetière le foyer de vos rêves, un espace où bien-être rime avec durabilité.
Référence : 11268
Les informations sur les risques auxquels ce bien est exposé sont disponibles sur le site Géorisques : www.georisques.gouv.fr
L'Aubetière se distingue par son architecture moderne, disponible en versions à 2 ou 4 pans, permettant ainsi de s'adapter à vos préférences esthétiques et aux spécificités de votre terrain. Cette maison basse consommation est pensée pour minimiser son impact environnemental tout en garantissant des économies d'énergie significatives sur le long terme.
Le logement se compose de 4 chambres spacieuses, promettant intimité et confort pour chaque membre de la famille. Les 4 pièces de la maison sont réparties de manière à optimiser les espaces de vie, offrant une circulation fluide et agréable entre les différentes zones de la maison.
L'Aubetière est conçue selon les standards de la RE2020, la réglementation environnementale de 2020, qui vise à réduire les consommations énergétiques des bâtiments neufs et à améliorer leur performance environnementale. Cette maison neuve bénéficie donc des dernières innovations en matière d'isolation, de chauffage, et de production d'énergie renouvelable, assurant un confort optimal en toutes saisons tout en réduisant l'empreinte écologique.
En choisissant l'Aubetière, vous optez pour une maison à la pointe de la technologie, conçue pour répondre aux défis de demain. Son design soigné et ses performances énergétiques en font un lieu de vie idéal pour ceux qui cherchent à allier qualité de vie et respect de l'environnement.
N'attendez plus pour faire de l'Aubetière le foyer de vos rêves, un espace où bien-être rime avec durabilité.
Référence : 11268
Les informations sur les risques auxquels ce bien est exposé sont disponibles sur le site Géorisques : www.georisques.gouv.fr
- Prix
-
- Prix total : 208 210 €
- Prix du modèle de maison : 178 710 €
- Prix du terrain : 29 500 €
- Terrain
-
- Surface : 1 532 m²
- Maison
-
- Surface : 131 m²
- Pièces : 5
- Chambres : 4
- Être rappelé par un conseiller
- Demander plus d’infos
- Demande d'information
La Guerche-sur-l'Aubois (18150)
Maisons à proximité
Maison neuve, 109 m²
Menetou-Couture (18320)
Menetou-Couture (18320)
Maison de 5 pièces
Maison neuve, 99 m²
Jouet-sur-l'Aubois (18320)
Jouet-sur-l'Aubois (18320)
Maison de 5 pièces
Maison neuve, 104 m²
Marzy (58180)
Marzy (58180)
Maison de 5 pièces
Maison neuve, 96 m²
Marzy (58180)
Marzy (58180)
Maison de 4 pièces
Maison neuve, 99 m²
Marzy (58180)
Marzy (58180)
Maison de 5 pièces
Maison neuve, 99 m²
Marzy (58180)
Marzy (58180)
Maison de 5 pièces
Programmes à proximité
Contacter STYL HABITAT AGENCE DE VARENNES-VAUZELLES / NEVERS pour recevoir plus d'informations
Remplissez le formulaire ci-dessous, vos informations sont transmises directement au constructeur qui vous contactera par email ou par téléphone afin de traiter votre demande. En savoir plus.
Voir tous nos programmes immobiliers neufs à La Guerche-sur-l'Aubois