Maison neuve, 133 m² - La Chaussée-d'Ivry (28260)

349 000 €
La Chaussée-d'Ivry (28260)

Proposée par MAISONS BALENCY – 6 pièces - 3 chambres - terrain 815 m²

MAISONS BALENCY
MAISONS BALENCY
  • Demande d'information
MAISON À CONSTRUIRE : ceci est une annonce d'une maison neuve à construire.
Maison T6 (133 m²) à vendre à La Chaussée-d'Ivry
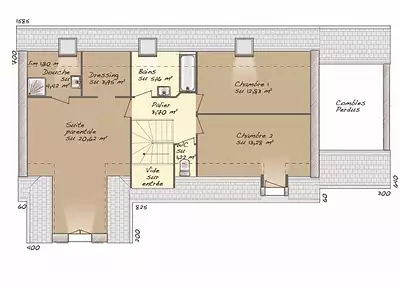
Quartier recherché - À découvrir à La Chaussée-d'Ivry (28260) : maison neuve 6 pièces en vente. 2 niveaux, surface de 133 m² sur 815 m² de terrain. Elle compte trois chambres, une cuisine et deux salles de bains.
Proche gares (Bueil et Bréval), École Élémentaire François Coolen, tennis et boulangerie. Autoroute A13 et nationales N12, N13 et N154 accessibles à 17 km. Évreux à 29 km.
Cette maison de 6 pièces est à vendre pour la somme de 349 000 €.
. Maisons Balency Louviers est là pour vous accompagner dans toutes vos démarches.
Annonce proposée par un Agent Commercial Partenaire.
Référence : SH2265699_1
Terrain proposé par un partenaire foncier selon disponibilités et autorisation de publicité au prix de 79 000 €. Hors droit d'enregistrement et frais de notaire. Maison proposée, avec un contrat de construction de maison individuelle, dans le cadre de la loi du 19/12/1990, au prix de 270 000 € (Hors branchements et raccordements, papiers peints, peintures, revêtement de sol dans les chambres, qui sont chiffrés dans les travaux qui restent à charge du client. Tarif modifiable sans préavis). Étiquette énergie : A. Différents modèles disponibles pour ce terrain. Assurances et garanties du constructeur comprises (RC professionnelle, décennale, dommage ouvrage).

Les informations sur les risques auxquels ce bien est exposé sont disponibles sur le site Géorisques : www.georisques.gouv.fr


Prix
  • Prix total : 349 000 €
  • Prix du modèle de maison : 270 000 €
  • Prix du terrain : 79 000 €

Terrain
  • Surface : 815 m²

Maison
  • Surface : 133 m²
  • Pièces : 6
  • Chambres : 3
  • Garage : 1

  • Être rappelé par un conseiller
  • Demander plus d’infos
  • Demande d'information
La Chaussée-d'Ivry (28260)

Programmes à proximité

Domaine des Longs Champs
Domaine des Longs Champs
Houdan (78550)

Appartements de 2 à 4 pièces et maisons de 4 à 5 pièces
Livraison 4ème trimestre 2027

DUC DE SULLY
DUC DE SULLY
Rosny-sur-Seine (78710)

Appartements de 2 à 5 pièces et maison de 4 pièces
Livraison 3ème trimestre 2027

Métamorphose
Métamorphose
Dreux (28100)

Appartements de 2 à 4 pièces
Livraison 4ème trimestre 2027

Atrium
Atrium
Magnanville (78200)

Appartements de 2 pièces
Livraison 3ème trimestre 2025

LES TEMPORELLES MAGNANVILLE
LES TEMPORELLES MAGNANVILLE
Magnanville (78200)

Appartements de 3 pièces
Livraison 4ème trimestre 2025

Mantes-la-Ville
Mantes-la-Ville
Mantes-la-Ville (78711)

Appartements de 1 à 5 pièces
Livraison 3ème trimestre 2028

Contacter MAISONS BALENCY pour recevoir plus d'informations

Remplissez le formulaire ci-dessous, vos informations sont transmises directement au constructeur qui vous contactera par email ou par téléphone afin de traiter votre demande. En savoir plus.

Voir tous nos programmes immobiliers neufs à La Chaussée-d'Ivry